82 DALHOUSIE Street Unit# 909, Toronto, Ontario, M5B0C5
MLS: 40814843 | Apartment (Condo)
$529,900


Property Description
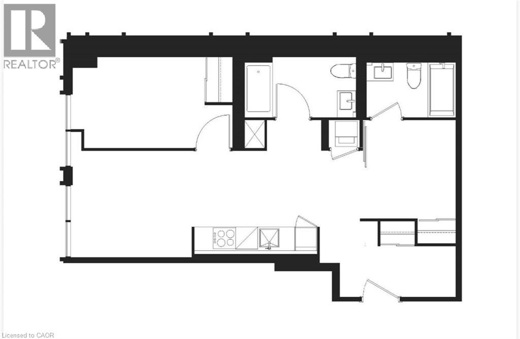
Discover urban living at its finest at 82 Dalhousie Street, ideally situated in downtown Toronto near Dundas & Church. This thoughtfully laid-out suite offers two spacious bedrooms and two full 4-piece bathrooms, providing a comfortable and practical living space for a variety of lifestyles. Residents have access to an excellent selection of building amenities, including a fully equipped fitness centre, steam room, sauna, party room, outdoor BBQ area, and more. Enjoy an unbeatable location just steps from public transit, shopping, restaurants, universities, schools, and cinemas, putting everything the city has to offer within easy reach. (id:64974)
Quick Facts
- Property Type: Apartment (Condo)
- Bedrooms: 2 (2 above)
- Bathrooms: 2
- Living Area: 770 sq ft (71.5 m²)
- Above Grade: 770 sq ft (71.5 m²)
- Ownership: Condo/Strata
- Attached: Yes
Costs
- Annual Taxes: $4,622.55
- Condo/HOA Fee: $728.15 / monthly
- Includes: Insurance
Listing Provided by: RE/MAX Escarpment Realty Inc.
Board: Cornerstone Association of REALTORS®
Data provided via CREA DDF®.
Detailed Features
Interior & Systems
- Heating: Forced air, Natural gas
- Cooling: Central air conditioning
- Basement: None
- Appliances: Washer, Refrigerator, Dishwasher, Stove, Dryer, Microwave, Freezer
Exterior & Construction
- Exterior: Concrete, Brick
- Sewer: Municipal sewage system
- Water: Municipal water
Lot & Land
- Zoning: CR3
Community & Neighbourhood
- Building: Exercise Centre, Party Room
- Subdivision: TCCY - Church-Yonge Corridor
Room Details (7 rooms)
Listing Information
Listing History
MLS listing activity for 82 DALHOUSIE Street Unit# 909, Toronto, Ontario, M5B0C5 — dates reflect when changes were recorded in the DDF
🚗 Travel times
Neighborhood Walkability
Mortgage & Cost Calculators
Nearby Homes ?Nearby Homes — Search CriteriaSearch Radius1 kmPrice Range±5%Match BedroomsYesMatch BathroomsYes

909 - 82 DALHOUSIE STREET, Toronto (Church-Yonge Corridor)
Condo - Apartment$529,900
$4,623/yr taxListing Courtesy of RE/MAX ESCARPMENT REALTY INC.

315 - 100 DALHOUSIE STREET, Toronto (Church-Yonge Corridor)
Condo - Apartment$549,900
$4,310/yr taxListing Courtesy of ROYAL LEPAGE SIGNATURE REALTY

713 - 105 GEORGE STREET, Toronto (Moss Park)
Condo - Apartment$549,000
$3,077/yr taxListing Courtesy of SOTHEBY'S INTERNATIONAL REALTY CANADA

1113 - 60 PRINCESS STREET, Toronto (Waterfront Communities)
Condo - Apartment$529,000
$2,669/yr taxListing Courtesy of RE/MAX CONDOS PLUS CORPORATION

1925A - 70 PRINCESS STREET, Toronto (Waterfront Communities)
Condo - Apartment$549,999
$3,156/yr taxListing Courtesy of RE/MAX REAL ESTATE CENTRE INC.

2516 - 82 DALHOUSIE STREET, Toronto (Church-Yonge Corridor)
Condo - Apartment$2,100/mo
Listing Courtesy of CONDOWONG REAL ESTATE INC.

2006 - 82 DALHOUSIE STREET, Toronto (Church-Yonge Corridor)
Condo - Apartment$779,999
$5,007/yr taxListing Courtesy of REAL BROKER ONTARIO LTD.

2215 - 82 DALHOUSIE STREET, Toronto (Church-Yonge Corridor)
Condo - Apartment$449,000
$3,039/yr taxListing Courtesy of CENTURY 21 ATRIA REALTY INC.

2609 - 82 DALHOUSIE STREET, Toronto (Church-Yonge Corridor)
Condo - Apartment$1,750/mo
Listing Courtesy of BAYTREE REAL ESTATE INC.

2218 - 82 DALHOUSIE STREET, Toronto (Church-Yonge Corridor)
Condo - Apartment$1,800/mo
Listing Courtesy of RE/MAX CROSSROADS REALTY INC.

2803 - 82 DALHOUSIE STREET, Toronto (Church-Yonge Corridor)
Condo - Apartment$594,000
$4,117/yr taxListing Courtesy of CENTURY 21 ATRIA REALTY INC.

2302 - 82 DALHOUSIE STREET, Toronto (Church-Yonge Corridor)
Condo - Apartment$599,000
$3,831/yr taxListing Courtesy of RE/MAX CROSSROADS REALTY INC.

1915 - 82 DALHOUSIE STREET, Toronto (Church-Yonge Corridor)
Condo - Apartment$649,000
$4,502/yr taxListing Courtesy of CENTURY 21 ATRIA REALTY INC.

2003 - 82 DALHOUSIE STREET, Toronto (Church-Yonge Corridor)
Condo - Apartment$3,800/mo
Listing Courtesy of BAY STREET GROUP INC.

501 - 82 DALHOUSIE STREET, Toronto (Church-Yonge Corridor)
Condo - Apartment$364,000
Listing Courtesy of UNION CAPITAL REALTY
Similar Homes ?Similar Homes — Search CriteriaSearch Radius5 kmPrice Range±5%Match Home TypeYesMatch BedroomsYes

2503 - 12 YORK STREET, Toronto (Waterfront Communities)
Condo - Apartment$529,900
$3,559/yr taxListing Courtesy of RE/MAX PROFESSIONALS INC.

909 - 82 DALHOUSIE STREET, Toronto (Church-Yonge Corridor)
Condo - Apartment$529,900
$4,623/yr taxListing Courtesy of RE/MAX ESCARPMENT REALTY INC.

903 - 725 KING STREET W, Toronto (Niagara)
Condo - Apartment$529,000
$2,511/yr taxListing Courtesy of ROYAL LEPAGE SIGNATURE REALTY

1113 - 60 PRINCESS STREET, Toronto (Waterfront Communities)
Condo - Apartment$529,000
$2,669/yr taxListing Courtesy of RE/MAX CONDOS PLUS CORPORATION

N604 - 455 FRONT STREET E, Toronto (Waterfront Communities)
Condo - Apartment$529,000
$2,768/yr taxListing Courtesy of RIGHT AT HOME REALTY

2911 - 159 WELLESLEY STREET E, Toronto (Church-Yonge Corridor)
Condo - Apartment$529,000
$2,881/yr taxListing Courtesy of PROPERTY.CA INC.

915 - 115 BLUE JAYS WAY, Toronto (Waterfront Communities)
Condo - Apartment$529,000
$3,114/yr taxListing Courtesy of RE/MAX REALTY SERVICES INC.

515 - 8 WIDMER STREET, Toronto (Waterfront Communities)
Condo - Apartment$529,000
$2,783/yr taxListing Courtesy of RE/MAX ULTIMATE REALTY INC.

316 - 295 ADELAIDE STREET W, Toronto (Waterfront Communities)
Condo - Apartment$529,000
$3,250/yr taxListing Courtesy of HOMELIFE/BAYVIEW REALTY INC.

1008 - 169 FORT YORK BOULEVARD, Toronto (Niagara)
Condo - Apartment$528,888
$2,398/yr taxListing Courtesy of KELLER WILLIAMS COMPLETE REALTY

169 FORT YORK Boulevard Unit# 1008, Toronto
Condo - Apartment$528,888
$2,398/yr taxListing Courtesy of Keller Williams Complete Realty

1103 - 125 BLUE JAYS WAY, Toronto (Waterfront Communities)
Condo - Apartment$528,000
$3,107/yr taxListing Courtesy of BAY STREET GROUP INC.

921 - 50 POWER STREET, Toronto (Moss Park)
Condo - Apartment$532,000
$3,243/yr taxListing Courtesy of RIGHT AT HOME REALTY

636 - 250 WELLINGTON STREET W, Toronto (Waterfront Communities)
Condo - Apartment$525,000
$3,024/yr taxListing Courtesy of REAL BROKER ONTARIO LTD.

1009 - 1 THE ESPLANADE, Toronto (Waterfront Communities)
Condo - Apartment$525,000
$3,386/yr taxListing Courtesy of ROYAL LEPAGE TERREQUITY REALTY
Similar Properties ?Active Comparables — Search CriteriaSearch Radius2 kmPrice Range±5%Match Home TypeYesMatch BedroomsYes

2503 - 12 YORK STREET, Toronto (Waterfront Communities)
Condo - Apartment$529,900
$3,559/yr taxListing Courtesy of RE/MAX PROFESSIONALS INC.

909 - 82 DALHOUSIE STREET, Toronto (Church-Yonge Corridor)
Condo - Apartment$529,900
$4,623/yr taxListing Courtesy of RE/MAX ESCARPMENT REALTY INC.

1113 - 60 PRINCESS STREET, Toronto (Waterfront Communities)
Condo - Apartment$529,000
$2,669/yr taxListing Courtesy of RE/MAX CONDOS PLUS CORPORATION

N604 - 455 FRONT STREET E, Toronto (Waterfront Communities)
Condo - Apartment$529,000
$2,768/yr taxListing Courtesy of RIGHT AT HOME REALTY

2911 - 159 WELLESLEY STREET E, Toronto (Church-Yonge Corridor)
Condo - Apartment$529,000
$2,881/yr taxListing Courtesy of PROPERTY.CA INC.

915 - 115 BLUE JAYS WAY, Toronto (Waterfront Communities)
Condo - Apartment$529,000
$3,114/yr taxListing Courtesy of RE/MAX REALTY SERVICES INC.

316 - 295 ADELAIDE STREET W, Toronto (Waterfront Communities)
Condo - Apartment$529,000
$3,250/yr taxListing Courtesy of HOMELIFE/BAYVIEW REALTY INC.

515 - 8 WIDMER STREET, Toronto (Waterfront Communities)
Condo - Apartment$529,000
$2,783/yr taxListing Courtesy of RE/MAX ULTIMATE REALTY INC.

1008 - 169 FORT YORK BOULEVARD, Toronto (Niagara)
Condo - Apartment$528,888
$2,398/yr taxListing Courtesy of KELLER WILLIAMS COMPLETE REALTY

169 FORT YORK Boulevard Unit# 1008, Toronto
Condo - Apartment$528,888
$2,398/yr taxListing Courtesy of Keller Williams Complete Realty

1103 - 125 BLUE JAYS WAY, Toronto (Waterfront Communities)
Condo - Apartment$528,000
$3,107/yr taxListing Courtesy of BAY STREET GROUP INC.

921 - 50 POWER STREET, Toronto (Moss Park)
Condo - Apartment$532,000
$3,243/yr taxListing Courtesy of RIGHT AT HOME REALTY

636 - 250 WELLINGTON STREET W, Toronto (Waterfront Communities)
Condo - Apartment$525,000
$3,024/yr taxListing Courtesy of REAL BROKER ONTARIO LTD.

1009 - 1 THE ESPLANADE, Toronto (Waterfront Communities)
Condo - Apartment$525,000
$3,386/yr taxListing Courtesy of ROYAL LEPAGE TERREQUITY REALTY

2007 - 55 CENTRE AVENUE, Toronto (Bay Street Corridor)
Condo - Apartment$534,900
$2,443/yr taxListing Courtesy of LPT REALTY

2701 - 183 WELLINGTON STREET W, Toronto (Waterfront Communities)
Condo - Apartment$11,500/mo
Listing Courtesy of RE/MAX METROPOLIS REALTY

3503 - 183 WELLINGTON STREET W, Toronto (Waterfront Communities)
Condo - Apartment$9,999/mo
Listing Courtesy of REAL BROKER ONTARIO LTD.

1905 - 55 SCOLLARD STREET, Toronto (Annex)
Condo - Apartment$9,980/mo
Listing Courtesy of ROYAL LEPAGE SIGNATURE REALTY

3903 - 183 WELLINGTON STREET W, Toronto (Waterfront Communities)
Condo - Apartment$9,500/mo
Listing Courtesy of REMAX YOUR COMMUNITY REALTY

PH02 - 11 YORKVILLE AVENUE, Toronto (Annex)
Condo - Apartment$9,500/mo
Listing Courtesy of FOREST HILL REAL ESTATE INC.

3001 - 200 CUMBERLAND STREET, Toronto (Annex)
Condo - Apartment$8,000/mo
Listing Courtesy of HAZELTON REAL ESTATE INC.

1105 - 2 AVENUE ROAD, Toronto (Annex)
Condo - Apartment$7,950/mo
Listing Courtesy of FOREST HILL REAL ESTATE INC.

914 - 29 QUEENS QUAY E, Toronto (Waterfront Communities)
Condo - Apartment$7,900/mo
Listing Courtesy of SAM MCDADI REAL ESTATE INC.

3406 - 311 BAY STREET, Toronto (Bay Street Corridor)
Condo - Apartment$7,900/mo
Listing Courtesy of UNION CAPITAL REALTY

902 - 60 COLBORNE STREET, Toronto (Church-Yonge Corridor)
Condo - Apartment$7,500/mo
Listing Courtesy of PSR

1202 - 39 QUEENS QUAY E, Toronto (Waterfront Communities)
Condo - Apartment$6,900/mo
Listing Courtesy of RIGHT AT HOME REALTY

523 - 39 QUEENS QUAY E, Toronto (Waterfront Communities)
Condo - Apartment$6,450/mo
Listing Courtesy of ICI SOURCE REAL ASSET SERVICES INC.

1906 - 1 MARKET STREET, Toronto (Waterfront Communities)
Condo - Apartment$6,000/mo
Listing Courtesy of CHESTNUT PARK REAL ESTATE LIMITED

2307 - 88 CUMBERLAND STREET, Toronto (Annex)
Condo - Apartment$5,950/mo
Listing Courtesy of ROYAL LEPAGE SIGNATURE REALTY

4212 - 403 CHURCH STREET, Toronto (Church-Yonge Corridor)
Condo - Apartment$5,490/mo
Listing Courtesy of WEB MAX REALTY INC.
Sold Comparables
Access to sold property data requires a registered and verified account with TRREB DDF integration.
Coming SoonRented Comparables
Access to rented property data requires a registered and verified account with TRREB DDF integration.
Coming SoonBook a Viewing
82 DALHOUSIE Street Unit# 909, Toronto, Ontario, M5B0C5
