804 - 1 FAIRVIEW ROAD E, Mississauga (Mississauga Valleys), Ontario, L5A4C6
MLS: W12795614 | Apartment (Condo)
Contact for Price























Property Description
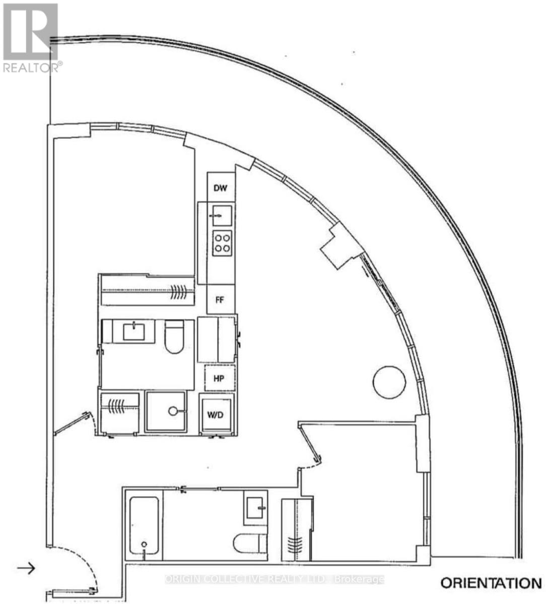
Check out these condominiums by Edenshaw! They feature 2 bedrooms and 2 full bathrooms, plus you've got one parking spot underground. The kitchen is decked out with a stainless steel cooking range, a microwave and exhaust fan over the hood, and there's a concealed fridge and freezer, a dishwasher, and a washer and dryer too. Located at the corner of Hurontario and Fairview, this 5th-floor apartment faces west so you get plenty of sunshine and has an unobstructed view along with a large balcony. It's close to the 403, Square One, offices, and public transportation. As a bonus, you get free internet, 24-hour security, concierge service, and access to a gym for yoga. There's also 20,000 square feet of amenities spread over two full floors, which include a fitness center, a wellness studio for yoga, a coworking lounge, private study pods, rooms for parties and socializing, guest suites, and an outdoor terrace with BBQ areas. It's perfect for remote workers, commuters, or anyone looking for a vibrant lifestyle community (id:65010)
Quick Facts
- Property Type: Apartment (Condo)
- Bedrooms: 2
- Bathrooms: 2
Listing Provided by: CREA DDF® Member Brokerage
Data provided via CREA DDF®.
Detailed Features
Listing Information
Location & Neighborhood
🚗 Travel times
Neighborhood Walkability
Mortgage & Cost Calculators
Similar Properties
No active comparables found in this area.
Sold Comparables
Access to sold property data requires a registered and verified account with TRREB DDF integration.
Coming SoonRented Comparables
Access to rented property data requires a registered and verified account with TRREB DDF integration.
Coming Soon













