803 BURWELL STREET, Fort Erie (Lakeshore), Ontario, L2A0H5
MLS: X12704680 | Townhouse (Freehold)
$529,900


Property Description
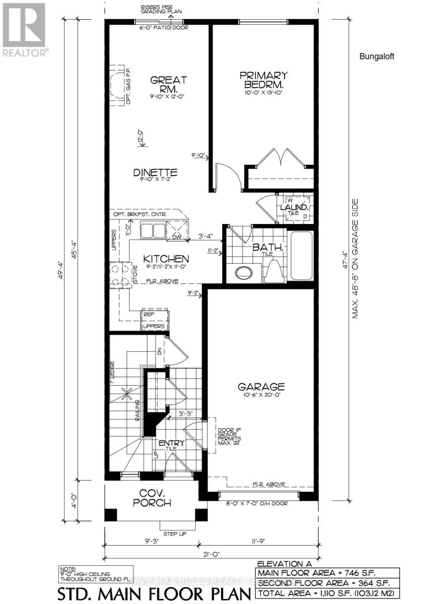
Attractive 2-storey freehold bungalow loft offering a well-planned open-concept design. The main floor features a modern kitchen overlooking a spacious great room and breakfast area, enhanced by 9-foot ceilings, along with a primary bedroom and a 3-piece bathroom for added convenience. The second level includes two additional bedrooms, a 3-piece bathroom, and a dedicated desk area, ideal for a home office or study space. Additional highlights include an asphalt-paved driveway, one garage parking space plus one driveway parking, and a prime location close to everyday amenities, all within a 5-10 minute drive. A perfect combination of comfort, functionality, and thoughtful design. It is very close to the Peace Bridge US Border. (id:64974)
Quick Facts
- Property Type: Townhouse (Freehold)
- Bedrooms: 3 (3 above)
- Bathrooms: 2
- Ownership: Freehold
- Attached: Yes
- Parking: 2 spaces (Attached Garage, Garage)
- Frontage: 21 ft (6.4 m)
Listing Provided by: The Realty Bulls
Board: Toronto Regional Real Estate Board
Data provided via CREA DDF®.
Detailed Features
Interior & Systems
- Heating: Forced air, Natural gas
- Cooling: None
- Basement: Unfinished, N/A
Exterior & Construction
- Exterior: Vinyl siding, Brick Facing
- Foundation: Concrete
- Sewer: Sanitary sewer
- Water: Municipal water
Lot & Land
- Frontage: 21 ft (6.4 m)
Community & Neighbourhood
- Neighbourhood: 333 - Lakeshore
Room Details (6 rooms)
Listing Information
Listing History
Buy/Sell/Terminated/Expired listing history for 803 BURWELL STREET, Fort Erie (Lakeshore), Ontario, L2A0H5
Location & Neighborhood
🚗 Travel times
Neighborhood Walkability
Mortgage & Cost Calculators
Nearby Homes (Within 2km)
Similar Homes
Similar Properties
No rental comparables found in this area.
Sold Comparables
Access to sold property data requires a registered and verified account with TRREB DDF integration.
Coming SoonRented Comparables
Access to rented property data requires a registered and verified account with TRREB DDF integration.
Coming Soon





















