800 GEORGE STREET N, Hearst, Ontario, P0L1N0
MLS: T12777156 | Retail
$899,900



























Property Description
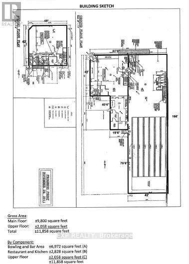
Turnkey Multi-Revenue Opportunity in Hearst, Ontario! Grab this rare chance to own a thriving, diversified business at 800 George Street N-a high-visibility corner lot with frontage on three streets for unbeatable exposure in the heart of Hearst. The 11,858 sq. ft. property delivers proven income from three sources under one roof: the well-loved 241 Pizza restaurant, a lively entertainment complex (bowling, pool tables, bar), and a spacious upstairs banquet hall ideal for events and rentals. Well-maintained with strong financials and minimal local competition, it offers real flexibility-keep the 241 Pizza franchise or go independent. This is a solid foundation ready for your ideas: extend hours for nightlife, add a patio, host more events, or expand catering to become the town's go-to spot. At $899,900$, it's a versatile gem with multiple revenue streams and serious growth potential in a supportive Northern Ontario community. Perfect for an energetic owner ready to build on success! (id:64974)
Quick Facts
- Property Type: Retail
- Bedrooms: None
- Bathrooms: 6
- Living Area: 11,858 sq ft (1,101.6 m²)
- Parking: 6 spaces
- Frontage: 43 ft (13.1 m)
Costs
- Annual Taxes: $14,000.00
Listing Provided by: EXP REALTY
Board: Ottawa Real Estate Board
Data provided via CREA DDF®.
Detailed Features
Interior & Systems
- Heating: Forced air, Natural gas
- Cooling: Fully air conditioned
Exterior & Construction
- Sewer: Sanitary sewer
- Water: Municipal water
Lot & Land
- Frontage: 43 ft (13.1 m)
- Zoning: Commercial 1
Community & Neighbourhood
- Neighbourhood: Hearst
Listing Information
Listing History
Buy/Sell/Terminated/Expired listing history for 800 GEORGE STREET N, Hearst, Ontario, P0L1N0
Location & Neighborhood
🚗 Travel times
Neighborhood Walkability
Mortgage & Cost Calculators
Nearby Homes (Within 2km)
Similar Homes
Similar Properties
No active comparables found in this area.
No rental comparables found in this area.
Sold Comparables
Access to sold property data requires a registered and verified account with TRREB DDF integration.
Coming SoonRented Comparables
Access to rented property data requires a registered and verified account with TRREB DDF integration.
Coming Soon











