80 SEVENOAKS AVENUE, Brockville, Ontario, K6V2V4
MLS: X12932746 | House (Freehold)
$374,900


















Property Description
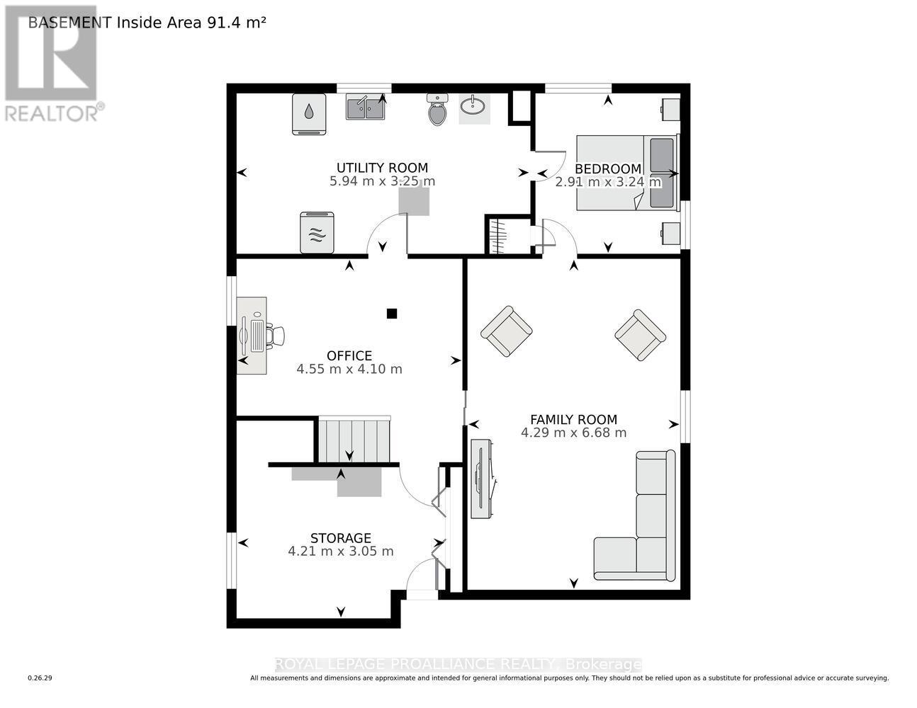
80 Sevenoaks Avenue, is the perfect opportunity for first-time home buyers, retirees, or savvy investors alike. Nestled in a wonderful, established neighbourhood, this charming 2-bedroom, 1.5-bathroom home offers 1,063 sq. ft. of above-grade living space (as per MPAC).A bright, south-facing heated enclosed porch welcomes you in-doubling as an ideal mudroom or cozy sitting area. From here, step into a spacious eat-in kitchen featuring ample cabinetry and functionality for everyday living. Walk down a long hallway into a bright, inviting living room, highlighted by gleaming hardwood flooring, elegant cove moulding and warm natural light.Both generously sized bedrooms have been tastefully updated with fresh paint and newer laminate flooring. The main 4-piece bathroom has also seen updates, including new flooring and a modern vanity with sink.The lower level expands your living space with a large rec room complete with newer laminate flooring and Dri-Core subflooring for added comfort. You'll also find a utility room, bonus room, and 2 pc bathroom, a dedicated laundry area-offering flexibility for storage, hobbies, or future development.Notable features include an oversized single-car detached garage, a double-wide, double-deep driveway, a furnace approximately 10 years old, central air (older but in good working order), and a durable steel roof. The home is further enhanced by newer vinyl windows on the main level.Step outside to a backyard with a patio area that holds endless potential to create your own private oasis.Currently tenanted with reliable tenants who would love to stay, this property offers immediate investment appeal. Centrally located and close to all amenities, schools, parks, and with quick access to Highway 401 for an easy commute-this is a smart move in today's market.Don't miss your chance to own a home that checks all the boxes-whether you're starting out, slowing down, or building your portfolio. (id:64974)
Quick Facts
- Property Type: House (Freehold)
- Style: Bungalow
- Bedrooms: 2 (2 above)
- Bathrooms: 2 (1 half)
- Ownership: Freehold
- Attached: No
- Parking: 5.0 spaces (Detached Garage, Garage)
- Frontage: 60 ft (18.3 m)
Costs
- Annual Taxes: $3,154.00 (2026)
Listing Provided by: ROYAL LEPAGE PROALLIANCE REALTY
Board: Rideau - St. Lawrence Real Estate Board
Data provided via CREA DDF®.
Detailed Features
Interior & Systems
- Heating: Forced air, Natural gas
- Cooling: Central air conditioning
- Basement: Full
- Appliances: Washer, Refrigerator, Water meter, Stove, Dryer, Water Heater
- Utilities: Sewer, Electricity, Cable
Exterior & Construction
- Style: Bungalow
- Exterior: Brick
- Foundation: Block
- Fencing: Fenced yard
- Sewer: Sanitary sewer
- Water: Municipal water
Lot & Land
- Frontage: 60 ft (18.3 m)
- Zoning: Residential
Community & Neighbourhood
- Community: School Bus, Community Centre
- Neighbourhood: 810 - Brockville
Room Details (12 rooms)
Listing Information
Listing History
MLS listing activity for 80 SEVENOAKS AVENUE, Brockville, Ontario, K6V2V4 — dates reflect when changes were recorded in the DDF
🚗 Travel times
Neighborhood Walkability
Mortgage & Cost Calculators
Nearby Homes ?Nearby Homes — Search CriteriaSearch Radius1 kmPrice Range±5%Match BedroomsYesMatch BathroomsYes

94 BISLEY CRESCENT, Brockville
House$359,900
$2,620/yr taxListing Courtesy of MODERN BROCK GROUP REALTY

68 ALDERSHOT AVENUE, Brockville
House$450,000
$3,120/yr taxListing Courtesy of CENTURY 21 RIVER'S EDGE LTD

142 MANOR DRIVE, Brockville
House$419,000
$3,223/yr taxListing Courtesy of SUTTON ESSENTIAL REALTY

9 - 27 ALDERSHOT AVENUE, Brockville
Condo - Row / Townhouse$269,900
$2,775/yr taxListing Courtesy of RE/MAX HOMETOWN REALTY INC

189 REYNOLDS DRIVE, Brockville
House$439,000
$3,130/yr taxListing Courtesy of RE/MAX HOMETOWN REALTY INC

209 REYNOLDS DRIVE E, Brockville
House$489,900
$3,682/yr taxListing Courtesy of SOLID ROCK REALTY

243 BARTHOLOMEW STREET, Brockville
House$399,999
$2,827/yr taxListing Courtesy of SOTHEBY'S INTERNATIONAL REALTY CANADA

219 BARTHOLOMEW STREET, Brockville
House$225,000
$2,517/yr taxListing Courtesy of EXP REALTY

222 BARTHOLOMEW STREET, Brockville
House$249,900
$1,793/yr taxListing Courtesy of LPT REALTY

17 - 6 CHARLOTTE PLACE, Brockville
Condo - Apartment$227,900
$1,913/yr taxListing Courtesy of RE/MAX HOMETOWN REALTY INC

82 BROOKVIEW CRESCENT, Brockville
House$469,900
$2,870/yr taxListing Courtesy of HOMELIFE/DLK REAL ESTATE LTD

7 - 1871 OXFORD AVENUE, Elizabethtown-Kitley
Modular$219,900
Listing Courtesy of EXP REALTY

3 - 1871 OXFORD AVENUE, Elizabethtown-Kitley
Mobile Home$105,000
Listing Courtesy of RE/MAX HOMETOWN REALTY INC

116 MARGARET PLACE, Brockville
House$649,900
$4,740/yr taxListing Courtesy of EXP REALTY, BROKERAGE

42 DAVISON AVENUE, Brockville
House$499,900
$3,827/yr taxListing Courtesy of ROYAL LEPAGE PROALLIANCE REALTY
Similar Homes ?Similar Homes — Search CriteriaSearch Radius5 kmPrice Range±5%Match Home TypeYesMatch BedroomsYes

44 HAVELOCK STREET, Brockville
House$389,900
$2,723/yr taxListing Courtesy of MODERN BROCK GROUP REALTY

811 - 238 BESSERER STREET, Ottawa
Condo - Apartment$374,900
$3,701/yr taxListing Courtesy of ENGEL & VOLKERS OTTAWA

25 HAWTHORNE DRIVE, Innisfil
Modular$374,900
$1,393/yr taxListing Courtesy of ROYAL LEPAGE FIRST CONTACT REALTY

543 FIFTH STREET E, Cornwall
House$374,900
$2,407/yr taxListing Courtesy of RE/MAX AFFILIATES MARQUIS LTD.

UNIT 13 - 3202 VIVIAN LINE, Stratford
Condo - Apartment$374,900
Listing Courtesy of Sutton Group - First Choice Realty Ltd.

UNIT 27 - 3202 VIVIAN LINE, Stratford
Condo - Apartment$374,900
Listing Courtesy of Sutton Group - First Choice Realty Ltd.

35 SOUTHSHORE Crescent Unit# 413, Stoney Creek
Condo - Apartment$374,900
$3,491/yr taxListing Courtesy of RE/MAX Real Estate Centre Inc.

413 - 35 SOUTHSHORE CRESCENT, Hamilton (Lakeshore)
Condo - Apartment$374,900
$3,491/yr taxListing Courtesy of RE/MAX REAL ESTATE CENTRE INC.

15 QUEEN Street S Unit# 2308, Hamilton
Condo - Apartment$374,900
$3,174/yr taxListing Courtesy of RE/MAX Escarpment Realty Inc.

424 - 5055 GREENLANE ROAD, Lincoln (Beamsville)
Condo - Apartment$374,900
$2,791/yr taxListing Courtesy of RE/MAX ESCARPMENT REALTY INC.

303 - 705 BEAUPARC PRIVATE, Ottawa
Condo - Apartment$374,900
$2,646/yr taxListing Courtesy of ROYAL LEPAGE INTEGRITY REALTY

2402 - 1 KING STREET W, Toronto (Bay Street Corridor)
Condo - Apartment$374,900
$1,893/yr taxListing Courtesy of EXIT REALTY LEGACY

2405 - 6 DAYSPRING CIRCLE, Brampton (Goreway Drive Corridor)
Condo - Apartment$374,900
$2,521/yr taxListing Courtesy of ROYAL LEPAGE TERREQUITY REALTY

2308 - 15 QUEEN STREET, Hamilton (Central)
Condo - Apartment$374,900
$3,174/yr taxListing Courtesy of RE/MAX ESCARPMENT REALTY INC.

628 - 15 JAMES FINLAY WAY N, Toronto (Downsview-Roding-CFB)
Condo - Apartment$374,900
$1,850/yr taxListing Courtesy of HOMELIFE/MIRACLE REALTY LTD
Similar Properties ?Active Comparables — Search CriteriaSearch Radius2 kmPrice Range±5%Match Home TypeYesMatch BedroomsYes
No rental comparables found in this area.
Sold Comparables
Access to sold property data requires a registered and verified account with TRREB DDF integration.
Coming SoonRented Comparables
Access to rented property data requires a registered and verified account with TRREB DDF integration.
Coming SoonBook a Viewing
80 SEVENOAKS AVENUE, Brockville, Ontario, K6V2V4
