80 GENEVA STREET, St. Catharines (Downtown), Ontario, L2R4M8
MLS: X12931980 | Vacant Land
$599,900
















Property Description
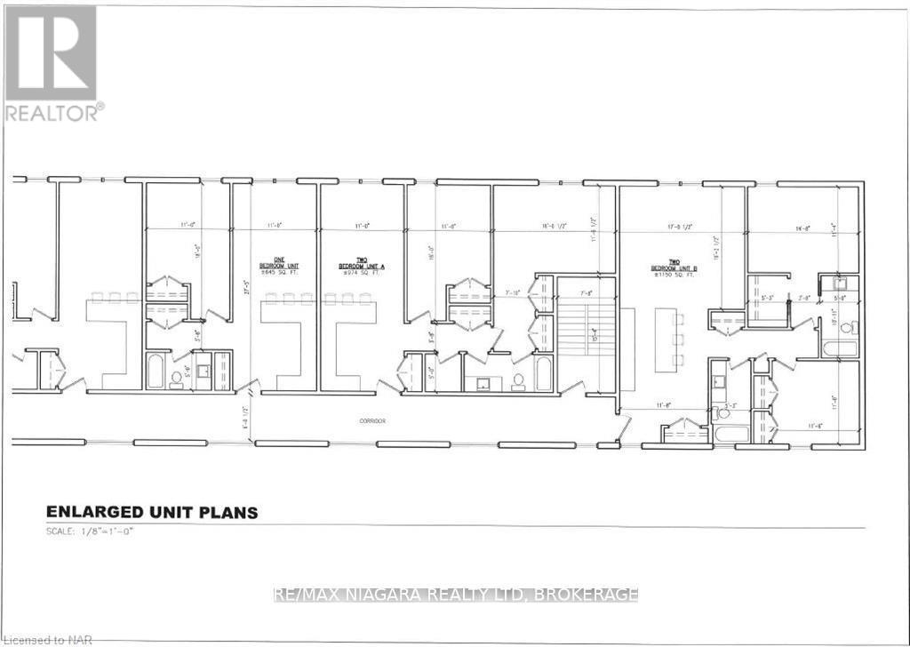
Attention investors, builders, and developers: A prime opportunity awaits to construct a 15+ unit low-rise apartment building mere steps from historic downtown St. Catharines. With the previous structure demolished and numerous trees cleared, the draft site plan for the new building is one idea of many possibilities. Includes right-of-way access across two properties to North Street at the rear. Ideally situated, the location offers proximity to schools, transit, shopping, and restaurants, making it a highly desirable area. Envision the possibilities this exceptional property holds for your next development project. Zoned M1 - Mixed Use for endless possibilities. (id:64974)
Quick Facts
- Property Type: Vacant Land
- Bedrooms: None
- Bathrooms: None
- Living Area: 233 sq ft (21.6 m²)
- Frontage: 83 ft (25.2 m)
Costs
- Annual Taxes: $1,278.51
Listing Provided by: RE/MAX NIAGARA REALTY LTD, BROKERAGE
Board: Niagara Association of REALTORS®
Data provided via CREA DDF®.
Detailed Features
Exterior & Construction
- Sewer: Septic System
- Water: Municipal water
Lot & Land
- Frontage: 83 ft (25.2 m)
- Zoning: M1
Community & Neighbourhood
- Neighbourhood: 451 - Downtown
Listing Information
Listing History
MLS listing activity for 80 GENEVA STREET, St. Catharines (Downtown), Ontario, L2R4M8 — dates reflect when changes were recorded in the DDF
🚗 Travel times
Neighborhood Walkability
Mortgage & Cost Calculators
Nearby Homes ?Nearby Homes — Search CriteriaSearch Radius1 kmPrice Range±5%Match BedroomsYesMatch BathroomsYes
Similar Homes ?Similar Homes — Search CriteriaSearch Radius5 kmPrice Range±5%Match Home TypeYesMatch BedroomsYes

13261A HIGHWAY 17, West Nipissing (Sturgeon Falls)
Vacant Land$599,900
$824/yr taxListing Courtesy of Century 21 Blue Sky Region Realty Inc., Brokerage

N/A CEMENT ROAD, Wainfleet (Marshville/Winger)
Vacant Land$599,900
$1,546/yr taxListing Courtesy of RIGHT CHOICE HAPPENINGS REALTY LTD.

20 - 2040 SHORE ROAD, London South (South A)
Condo$599,900
$4,543/yr taxListing Courtesy of SUTTON GROUP - SELECT REALTY

51 WILSON STREET E, Hamilton (Ancaster)
Vacant Land$599,900
$4,671/yr taxListing Courtesy of RE/MAX ESCARPMENT REALTY INC.

16 TEETER Place, Grimsby
Vacant Land$599,900
$2,811/yr taxListing Courtesy of RE/MAX Escarpment Realty Inc.

37 SOUTHWOOD Drive, Cambridge
Vacant Land$599,900
$1,752/yr taxListing Courtesy of Exit Integrity Realty

40-A RIVERGLEN DRIVE, Georgina (Keswick South)
Vacant Land$599,900
$3,848/yr taxListing Courtesy of RE/MAX ALL-STARS REALTY INC.

4 - 279 BOARDWALK WAY, Thames Centre (Dorchester)
Condo$599,900
Listing Courtesy of BLUE FOREST REALTY INC.

24 CAMPBELL FARM ROAD, Brant (Brantford Twp)
Vacant Land$599,900
$1/yr taxListing Courtesy of CENTURY 21 FIRST CANADIAN CORP

3025 RIVARD AVENUE, Windsor
No Building$599,900
Listing Courtesy of PINNACLE PLUS REALTY LTD.

3772 HIGHWAY 520 EXPRESSWAY, Magnetawan
Vacant Land$599,900
$650/yr taxListing Courtesy of CENTURY 21 PARKLAND LTD.

325 HARVEST LANE, Thames Centre (Dorchester)
Condo$599,900
Listing Courtesy of BLUE FOREST REALTY INC.

348 WOODROFFE AVENUE, Ottawa
Vacant Land$599,900
$6,997/yr taxListing Courtesy of RIGHT AT HOME REALTY

N/A 2 LINE, Oro-Medonte
Vacant Land$599,900
$1,678/yr taxListing Courtesy of REAL BROKER ONTARIO LTD.

51 WILSON Street E, Ancaster
Vacant Land$599,900
$4,671/yr taxListing Courtesy of RE/MAX Escarpment Realty Inc.
Similar Properties ?Active Comparables — Search CriteriaSearch Radius2 kmPrice Range±5%Match Home TypeYesMatch BedroomsYes
No active comparables found in this area.
No rental comparables found in this area.
Sold Comparables
Access to sold property data requires a registered and verified account with TRREB DDF integration.
Coming SoonRented Comparables
Access to rented property data requires a registered and verified account with TRREB DDF integration.
Coming SoonBook a Viewing
80 GENEVA STREET, St. Catharines (Downtown), Ontario, L2R4M8

