8 VALLEY VISTA DRIVE, Vaughan (Patterson), Ontario, L6A0Z2
MLS: N12739428 | House (Freehold)
$1,840,000














































Property Description
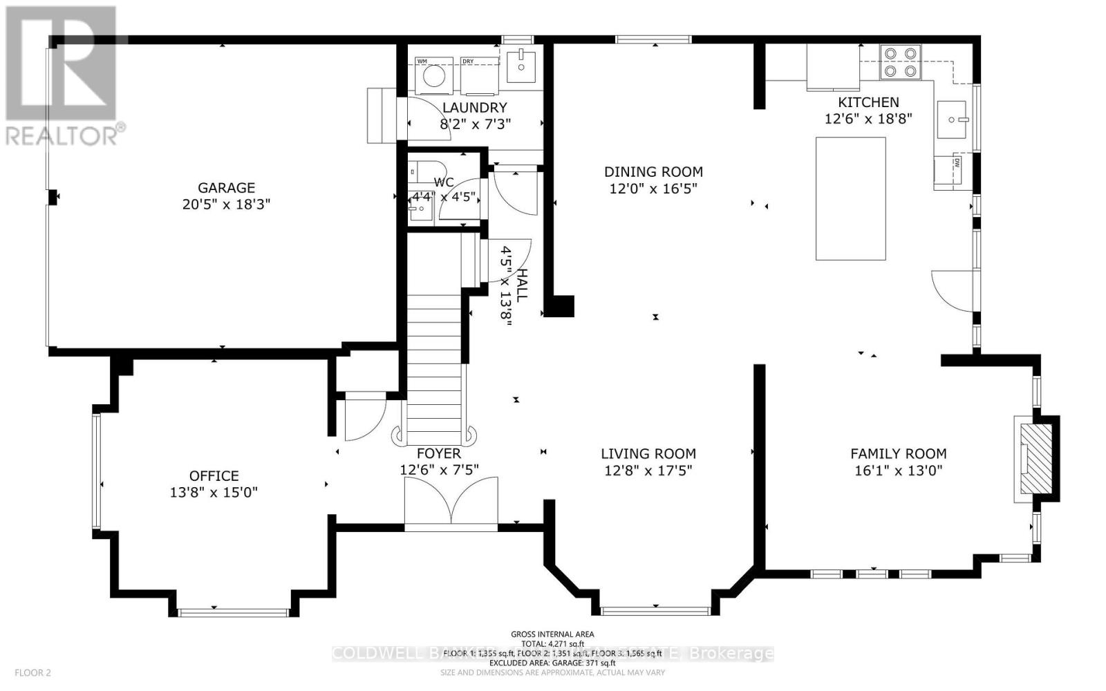
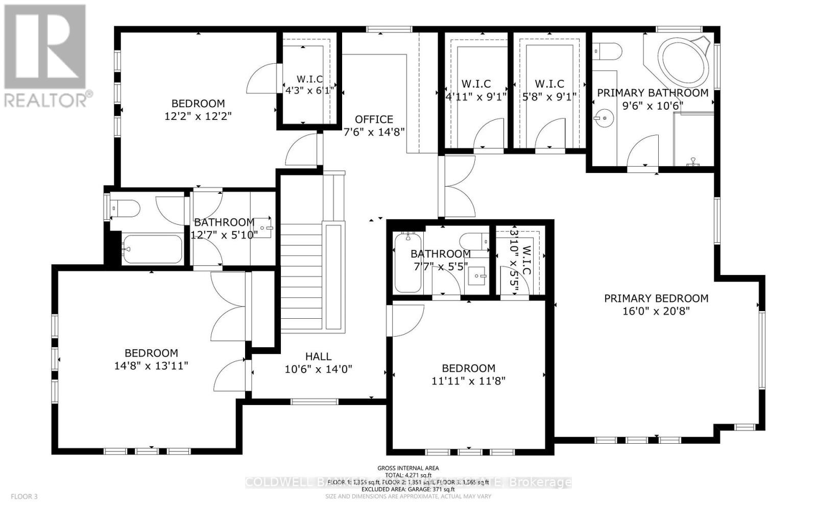
Welcome to this impeccably maintained and tastefully upgraded 4+1 bedroom, 5-bathroom executive home, built in 2006 by H&R Developments and thoughtfully enhanced ever since by it's One Owner. Set on one of the largest lots in the community, this property offers exceptional living space inside and out, with a beautifully finished builder-completed basement and modern upgrades throughout. The open-concept main floor is bright and inviting, featuring engineered wood flooring (2023), upgraded pot lights, and a recently renovated main-floor library/office - perfect for working from home. The gourmet kitchen was updated in 2023 with contemporary finishes, seamlessly connecting to the spacious family and dining areas. Upstairs, the double-door entry to the primary bedroom reveals an expansive retreat with two separate walk-in closets and a luxurious ensuite showcasing marble tile and a frameless glass shower. A built-in desk with bookshelves enhances the 2nd floor office nook - ideal for study or workstation needs. The basement offers fantastic additional living space with laminate flooring, one bedroom, a full bathroom, cold storage, additional storage rooms and a dedicated wine cellar complete with built-in cabinetry and ceramic flooring. Outdoor features include a fully fenced backyard, a heated slate shingle roof system on the front porch. The double garage offers inside access through the laundry/mudroom. Recent improvements such as new asphalt shingles (2023) ensure peace of mind and longevity. Located just minutes from major highways, key arterial routes, public transit, and top-ranked Public, Catholic, and French Immersion schools, this home delivers convenience, comfort, and unmatched value. A rare opportunity to own a premium, meticulously maintained home in a highly desirable neighbourhood - Truly a MUST SEE! (id:64974)
Quick Facts
- Property Type: House (Freehold)
- Bedrooms: 5 (4 above, 1 below)
- Bathrooms: 5 (1 half)
- Ownership: Freehold
- Attached: No
- Fireplaces: Yes
- Parking: 4 spaces (Attached Garage, Garage)
- Frontage: 53 ft (16.1 m)
Costs
- Annual Taxes: $8,499.17
Listing Provided by: COLDWELL BANKER - R.M.R. REAL ESTATE
Board: Central Lakes Association of REALTORS®
Data provided via CREA DDF®.
Detailed Features
Interior & Systems
- Heating: Forced air, Natural gas
- Cooling: Central air conditioning
- Basement: Finished, N/A
- Appliances: Washer, Refrigerator, Central Vacuum, Dishwasher, Range, Oven, Dryer, Microwave, Cooktop, Oven - Built-In, Window Coverings, Garage door opener remote(s), Water Heater
- Flooring: Hardwood, Laminate, Ceramic
Exterior & Construction
- Exterior: Brick, Stone
- Foundation: Concrete
- Sewer: Sanitary sewer
- Water: Municipal water
Lot & Land
- Frontage: 53 ft (16.1 m)
Community & Neighbourhood
- Neighbourhood: Patterson
Room Details (13 rooms)
Listing Information
Listing History
Buy/Sell/Terminated/Expired listing history for 8 VALLEY VISTA DRIVE, Vaughan (Patterson), Ontario, L6A0Z2
Location & Neighborhood
🚗 Travel times
Neighborhood Walkability
Mortgage & Cost Calculators
Nearby Homes (Within 2km)
Similar Homes
Similar Properties
No rental comparables found in this area.
Sold Comparables
Access to sold property data requires a registered and verified account with TRREB DDF integration.
Coming SoonRented Comparables
Access to rented property data requires a registered and verified account with TRREB DDF integration.
Coming Soon
























