8 MATTEO TRAIL, Hamilton (Sheldon), Ontario, L9B0E8
MLS: X12491590 | House (Freehold)
$969,000


































Property Description
Step into the welcoming embrace of this pristine Spallacci masterpiece, where executive living meets undeniable charm in a highly coveted West Mountain setting. Every detail of this home has been thoughtfully curated, promising a truly effortless, turn-key transition. At the heart of it all, the gourmet, eat-in kitchen awaits, a vision of elegance with rich granite countertops, a delicate marble backsplash, refined cabinetry, a gas stove, and top-tier stainless steel appliances-a perfect space for morning coffee or hosting cherished gatherings. Throughout the main levels, the home delights the senses with the warmth of gleaming hardwood flooring, leading the eye to a graceful staircase, while sophisticated porcelain and ceramic tilework adds a touch of enduring quality. Downstairs, the professionally finished basement offers a sophisticated retreat for leisure and comfort. Outside, your private oasis beckons: a beautiful, maintenance-free yard featuring a sparkling saltwater pool(2022), perfect for luxurious summer relaxation. Perfectly situated near excellent schools, amenities, and highway links, this upgraded home is not just a residence; it is a rare opportunity to acquire a space where beauty, quality, and convenience reside in perfect harmony. (id:64974)
Quick Facts
- Property Type: House (Freehold)
- Bedrooms: 4 (4 above)
- Bathrooms: 4 (1 half)
- Ownership: Freehold
- Attached: No
- Fireplaces: Yes
- Parking: 4 spaces (Attached Garage, Garage, Inside Entry)
- Frontage: 32 ft (9.8 m)
Costs
- Annual Taxes: $7,187.00 (2025)
Listing Provided by: RE/MAX ESCARPMENT REALTY INC.
Board: Toronto Regional Real Estate Board
Data provided via CREA DDF®.
Detailed Features
Interior & Systems
- Heating: Forced air, Natural gas
- Cooling: Central air conditioning
- Basement: Finished, Full
- Appliances: Washer, Refrigerator, Central Vacuum, Gas stove(s), Dishwasher, Range, Dryer, Window Coverings
Exterior & Construction
- Exterior: Brick
- Foundation: Poured Concrete
- Fencing: Fenced yard
- Sewer: Sanitary sewer
- Water: Municipal water
Lot & Land
- Frontage: 32 ft (9.8 m)
- Pool: Inground pool, Salt Water Pool
Community & Neighbourhood
- Building: Fireplace(s)
- Neighbourhood: Sheldon
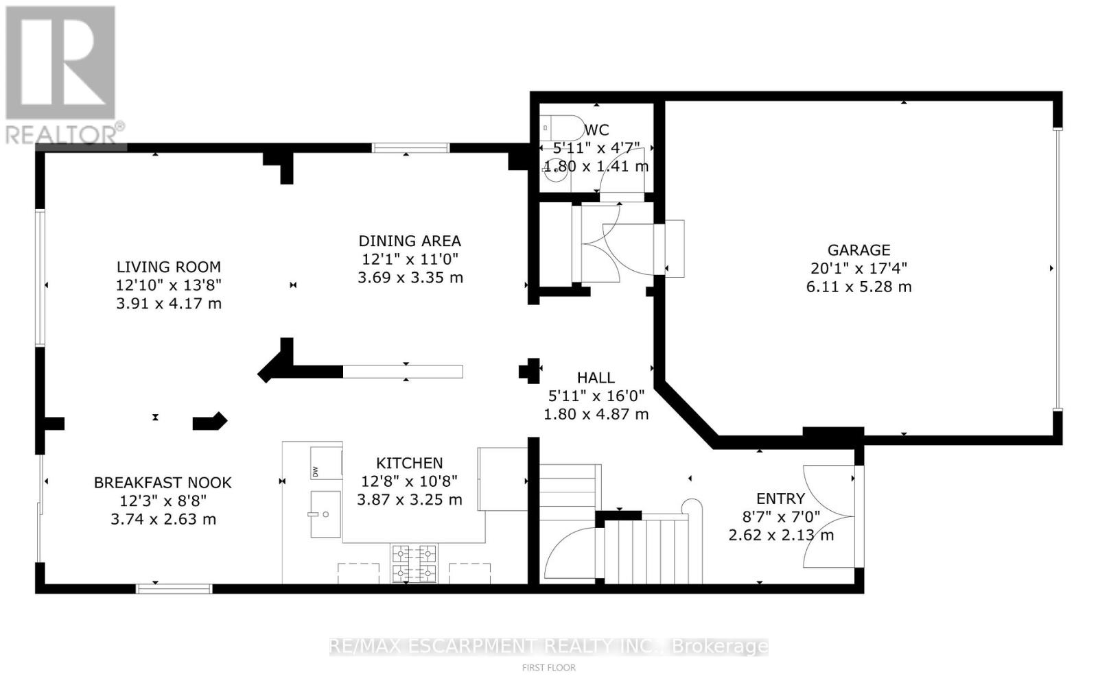
Room Details (15 rooms)
Listing Information
Listing History
Buy/Sell/Terminated/Expired listing history for 8 MATTEO TRAIL, Hamilton (Sheldon), Ontario, L9B0E8
Location & Neighborhood
🚗 Travel times
Neighborhood Walkability
Mortgage & Cost Calculators
Nearby Homes (Within 2km)
Similar Homes
Similar Properties
No rental comparables found in this area.
Sold Comparables
Access to sold property data requires a registered and verified account with TRREB DDF integration.
Coming SoonRented Comparables
Access to rented property data requires a registered and verified account with TRREB DDF integration.
Coming Soon























