79 BROWN STREET, Barrie (Holly), Ontario, L4N7V6
MLS: S12756458 | House (Freehold)
$899,000





















































Property Description
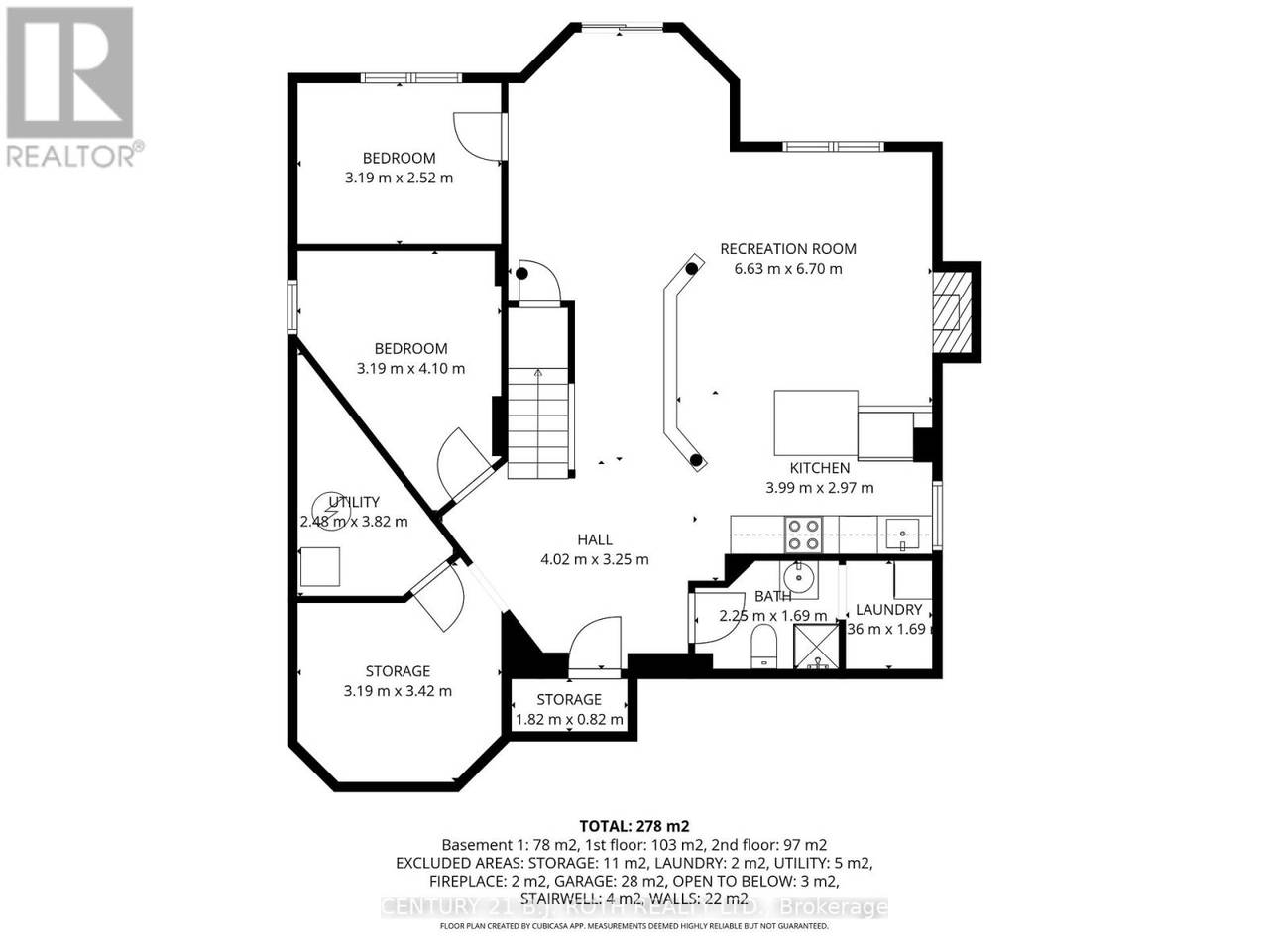
Welcome to a home that actually works for real family life. Tucked away on a quiet street in Barrie's Ardagh neighbourhood, this spacious home is made for busy mornings, big family dinners, and relaxed evenings spent together. The main floor offers a fantastic layout designed for everyday family life, featuring a spacious eat-in kitchen, dining room, and two comfortable living areas, one with a cozy gas fireplace. Main floor laundry and inside access to the garage add everyday convenience, while the beautiful hardwood staircase with elegant spindles creates a stunning first impression. Upstairs, you'll find four generously sized bedrooms, including a relaxing primary retreat with a spa-inspired ensuite and soaker tub. The walk-out lower level in-law suite is ideal for extended family, teens, or guests, offering two additional bedrooms, a spacious living area with a new gas fireplace, a kitchen added in 2020, a bathroom with an added shower, and its own separate side entrance. Outside, the backyard is made for family fun, featuring an impressive two-storey deck for entertaining and an above-ground pool with surrounding deck-perfect for summer days spent together. Ideally located near schools, parks, shopping, groceries, and highway access, this home provides a well-designed layout and ample space for family life. (id:64974)
Quick Facts
- Property Type: House (Freehold)
- Bedrooms: 6 (4 above, 2 below)
- Bathrooms: 4 (1 half)
- Ownership: Freehold
- Attached: No
- Fireplaces: 2
- Parking: 6 spaces (Attached Garage, Garage)
- Frontage: 49 ft (15.1 m)
Costs
- Annual Taxes: $6,452.00 (2025)
Listing Provided by: CENTURY 21 B.J. ROTH REALTY LTD.
Board: Toronto Regional Real Estate Board
Data provided via CREA DDF®.
Detailed Features
Interior & Systems
- Heating: Forced air, Natural gas
- Cooling: Central air conditioning
- Basement: Finished, Full, Separate entrance, Walk out, N/A, N/A
- Appliances: Washer, Refrigerator, Central Vacuum, Dishwasher, Stove, Dryer, Microwave, Blinds, Garage door opener remote(s)
Exterior & Construction
- Exterior: Brick
- Foundation: Concrete
- Fencing: Fully Fenced
- Sewer: Sanitary sewer
- Water: Municipal water
Lot & Land
- Frontage: 49 ft (15.1 m)
- Features: Gazebo, In-Law Suite
- Pool: Above ground pool
- Zoning: R2
Community & Neighbourhood
- Building: Fireplace(s)
- Neighbourhood: Holly
Room Details (18 rooms)
Listing Information
Listing History
Buy/Sell/Terminated/Expired listing history for 79 BROWN STREET, Barrie (Holly), Ontario, L4N7V6
Location & Neighborhood
🚗 Travel times
Neighborhood Walkability
Mortgage & Cost Calculators
Nearby Homes (Within 2km)
Similar Homes
Similar Properties
No rental comparables found in this area.
Sold Comparables
Access to sold property data requires a registered and verified account with TRREB DDF integration.
Coming SoonRented Comparables
Access to rented property data requires a registered and verified account with TRREB DDF integration.
Coming Soon
























