76 KINGSTON ROAD, Toronto (Woodbine Corridor), Ontario, M4L1S6
MLS: E12714542 | Retail
Contact for Price





Property Description
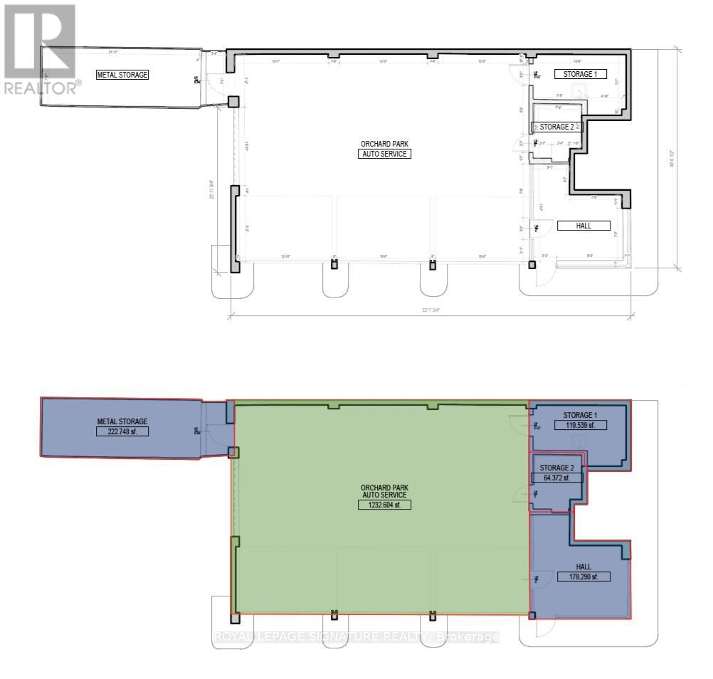
Prime automotive garage use. Located just north of Kingston Road and Queen Street East, this versatile property includes an approximately 1,800 sq. ft. building on a 0.19-acre (8,200 sq. ft.) lot. Features include a showroom/customer area and three functional service bays, offering excellent visibility and strong traffic exposure in a high-demand corridor. Rental rate is per month, semi-gross, plus HST. Utilities are separately metered and/or separately charged. The utilities are the responsibility of the tenant. This is a sub-lease, with an expiry of December 30th, 2027.Landlord will consider an extension beyond sublease expiry. (id:65010)
Quick Facts
- Property Type: Retail
- Bedrooms: None
- Bathrooms: None
Listing Provided by: CREA DDF® Member Brokerage
Data provided via CREA DDF®.
Detailed Features
Listing Information
Location & Neighborhood
🚗 Travel times
Neighborhood Walkability
Mortgage & Cost Calculators
Similar Properties
No active comparables found in this area.
Sold Comparables
Access to sold property data requires a registered and verified account with TRREB DDF integration.
Coming SoonRented Comparables
Access to rented property data requires a registered and verified account with TRREB DDF integration.
Coming Soon













