76 BELLEVIEW DRIVE, Kingsville, Ontario, N0R1B0
MLS: 26002006 | House (Freehold)
$779,900


































Property Description
Polished, move-in ready, and built to impress—this stunning 1,600 sq ft ranch in the quiet town of Cottam showcases the quality craftsmanship Wiebe Custom Homes is known for. Eye-catching curb appeal features a brick and stone exterior with a welcoming covered porch. Inside, 9’ ceilings and a bright open-concept layout connect the great room with fireplace, dining space, and a beautiful white kitchen highlighted by floor-to-ceiling cabinetry. The spacious primary suite offers a walk-in closet and a 4-piece ensuite with glass shower, while two additional generously sized bedrooms, a full bath, and main-floor laundry complete the layout. An attached two-car garage and a full basement—ready to finish or perfect for storage—add even more value. A home that truly reflects pride of ownership and exceptional build quality. (id:64974)
Quick Facts
- Property Type: House (Freehold)
- Style: Bungalow, Ranch
- Bedrooms: 3 (3 above)
- Bathrooms: 2
- Year Built: 2025
- Ownership: Freehold
- Attached: No
- Fireplaces: 1
Listing Provided by: REMAX PREFERRED REALTY LTD. - 585
Board: Windsor-Essex County Association of REALTORS®
Data provided via CREA DDF®.
Detailed Features
Interior & Systems
- Heating: Forced air, Heat Recovery Ventilation (HRV), Natural gas, Furnace
- Cooling: Central air conditioning
- Flooring: Hardwood, Ceramic/Porcelain
- Fireplace Features: Insert, Electric
Exterior & Construction
- Style: Bungalow, Ranch
- Exterior: Brick, Stone, Concrete/Stucco
- Foundation: Concrete
Lot & Land
- Features: Front Driveway
- Zoning: RES
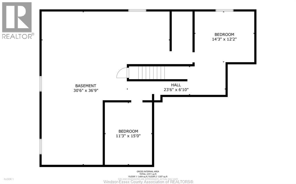
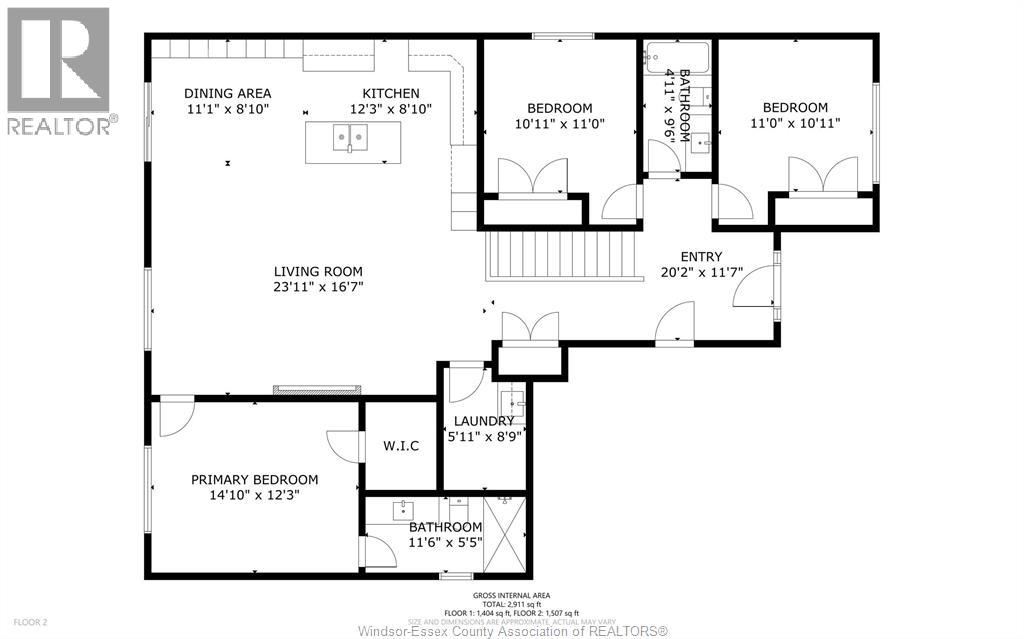
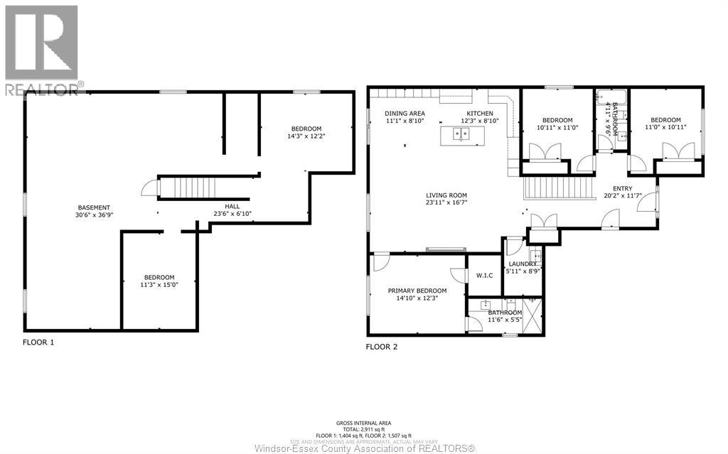
Room Details (12 rooms)
Listing Information
Listing History
Buy/Sell/Terminated/Expired listing history for 76 BELLEVIEW DRIVE, Kingsville, Ontario, N0R1B0
Location & Neighborhood
🚗 Travel times
Neighborhood Walkability
Mortgage & Cost Calculators
Nearby Homes (Within 2km)
Similar Homes
Similar Properties
No rental comparables found in this area.
Sold Comparables
Access to sold property data requires a registered and verified account with TRREB DDF integration.
Coming SoonRented Comparables
Access to rented property data requires a registered and verified account with TRREB DDF integration.
Coming Soon




















