759 MAPLE Avenue, Burlington, Ontario, L7S2K1
MLS: 40818922 | House (Freehold)
$1,350,000





















Property Description
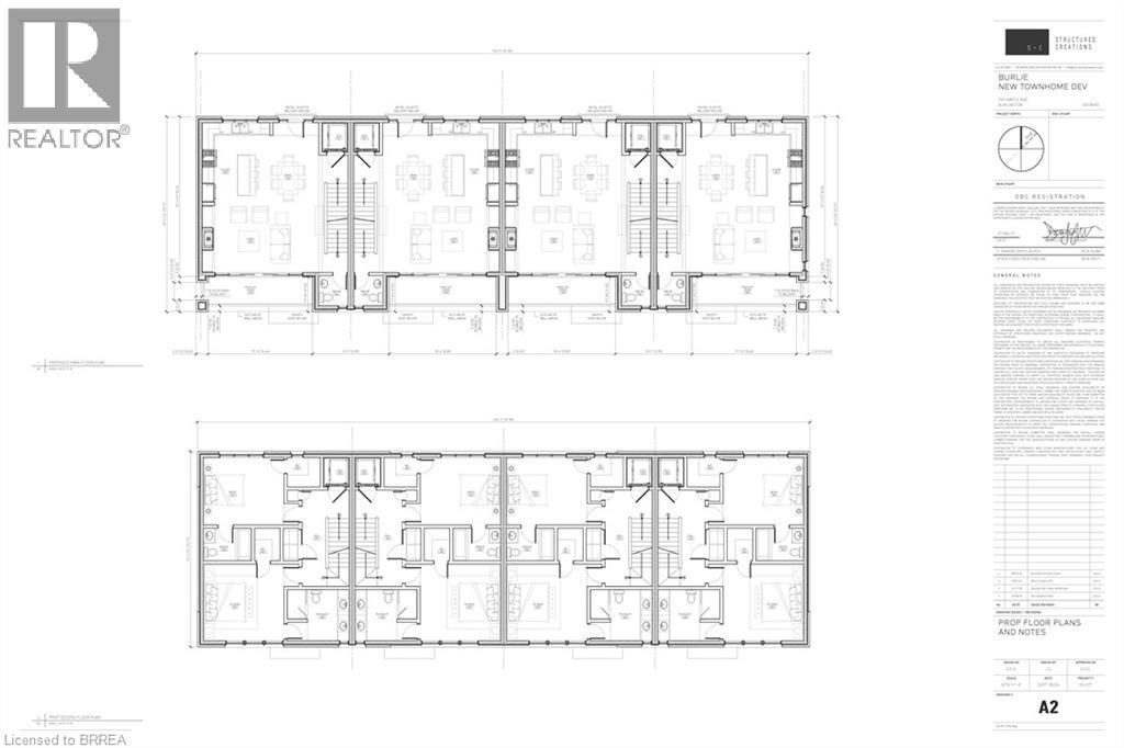
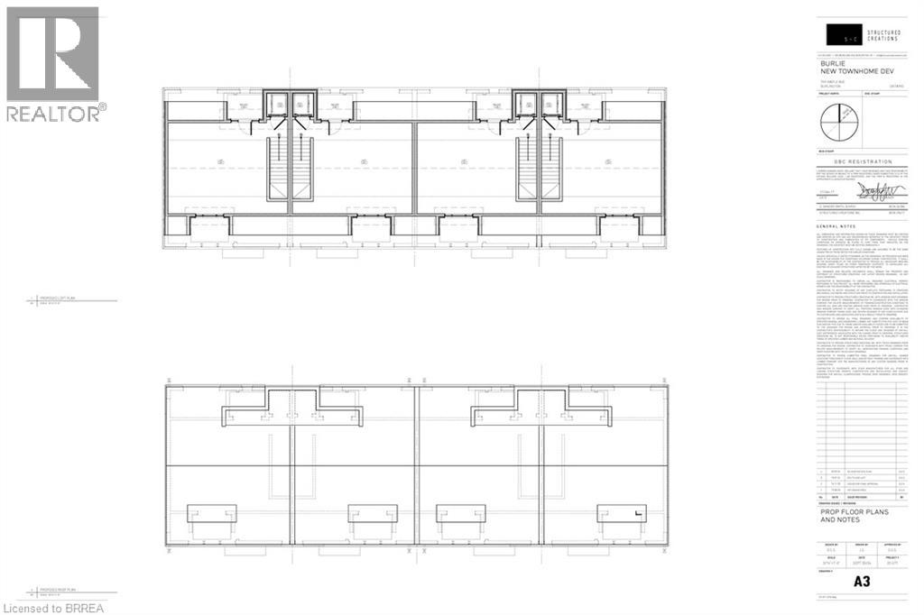
Rare development opportunity in Burlington—fully site-plan approved for four luxury townhomes. Each unit offers ~2,600 sq. ft. above grade across three storeys plus loft, plus ~610 sq. ft. basement. Modern open-concept layouts, large primary suites with ensuites, and flexible loft spaces. Each home includes two parking spaces (garage + exterior) and elevator-ready design for added value. Located near Mapleview Shopping Centre, Spencer Smith Park, and Lake Ontario, with easy access to parks, trails, and cultural amenities. Approvals in place allow for a faster build timeline. Potential development charge reductions up to 50% (buyer to verify) further enhance returns. Plans and reports available upon request Pictures are architectural renderings. Full site-plan approval for four townhomes ~2,600 sq. ft. + ~610 sq. ft. basement + loft per unit Elevator-ready design included in approved plans Three parking spaces per residence Private outdoor space for each unit Strong end-user and resale appeal Potential DC charge reduction (up to 50%, subject to confirmation) HST relief applicable on new construction (buyers to verify) Streamlined timeline to build Plans, municipal correspondence, detailed drawings, and an up-to-date survey are available upon request. (id:64974)
Quick Facts
- Property Type: House (Freehold)
- Style: 2 Level
- Bedrooms: 3 (3 above)
- Bathrooms: 2
- Living Area: 1,318 sq ft (122.4 m²)
- Above Grade: 1,318 sq ft (122.4 m²)
- Ownership: Freehold
- Attached: No
- Parking: 3.0 spaces
- Frontage: 70 ft (21.3 m)
Costs
- Annual Taxes: $4,673.35
Listing Provided by: Century 21 Heritage House LTD
Board: Brantford Regional Real Estate Assn Inc
Data provided via CREA DDF®.
Detailed Features
Interior & Systems
- Heating: No heat
- Cooling: None
- Basement: Unfinished, Partial
Exterior & Construction
- Style: 2 Level
- Exterior: Vinyl siding
- Sewer: Municipal sewage system
- Water: Municipal water
Lot & Land
- Frontage: 70 ft (21.3 m)
- Zoning: MR2
Community & Neighbourhood
- Subdivision: 311 - Maple
Room Details (6 rooms)
Listing Information
Listing History
MLS listing activity for 759 MAPLE Avenue, Burlington, Ontario, L7S2K1 — dates reflect when changes were recorded in the DDF
🚗 Travel times
Neighborhood Walkability
Mortgage & Cost Calculators
Nearby Homes ?Nearby Homes — Search CriteriaSearch Radius2 kmPrice Range±10%Match BedroomsYesMatch BathroomsYes

551 MAPLE Avenue Unit# 607, Burlington
Condo - Apartment$1,387,000
$6,636/yr taxListing Courtesy of Royal LePage Macro Realty

557 STILLWATER Crescent, Burlington
House$1,449,000
$6,600/yr taxListing Courtesy of Apple Park Realty Inc.

755 MAPLE Avenue, Burlington
House$899,900
$4,751/yr taxListing Courtesy of Royal LePage Burloak Real Estate Services

755 MAPLE AVENUE, Burlington (Brant)
House$899,900
$4,751/yr taxListing Courtesy of ROYAL LEPAGE BURLOAK REAL ESTATE SERVICES

15 - 1205 LAMBS COURT, Burlington (Brant)
Condo - Row / Townhouse$825,000
$4,003/yr taxListing Courtesy of RE/MAX ESCARPMENT REALTY INC.

1205 LAMB'S Court Unit# 15, Burlington
Condo - Row / Townhouse$825,000
$4,003/yr taxListing Courtesy of RE/MAX Escarpment Realty Inc.

1078 AUGUSTUS DRIVE, Burlington (Brant)
Single Family$1,575,000
$7,054/yr taxListing Courtesy of ROYAL LEPAGE BURLOAK REAL ESTATE SERVICES

895 MAPLE Avenue Unit# 101, Burlington
Condo - Row / Townhouse$749,000
$3,227/yr taxListing Courtesy of RE/MAX Escarpment Realty Inc.

895 MAPLE Avenue Unit# 617, Burlington
Condo - Row / Townhouse$719,000
$3,167/yr taxListing Courtesy of Real Broker Ontario Ltd.

1229 FREEMAN Street, Burlington
House$1,189,000
$6,111/yr taxListing Courtesy of Chestnut Park Real Estate Ltd.

1229 FREEMAN STREET, Burlington (Brant)
House$1,189,000
$6,111/yr taxListing Courtesy of CHESTNUT PARK REAL ESTATE LIMITED

1055 SHEPHERD'S Drive, Burlington
House$979,900
$5,062/yr taxListing Courtesy of RE/MAX Escarpment Realty Inc.

1055 SHEPHERD'S DRIVE, Burlington (LaSalle)
House$979,900
$5,062/yr taxListing Courtesy of RE/MAX ESCARPMENT REALTY INC.

101 - 895 MAPLE AVENUE, Burlington (Brant)
Condo - Row / Townhouse$749,000
$3,227/yr taxListing Courtesy of RE/MAX ESCARPMENT REALTY INC.

617 - 895 MAPLE AVENUE, Burlington (Brant)
Condo - Row / Townhouse$719,000
$3,167/yr taxListing Courtesy of Real Broker Ontario Ltd.
Similar Homes ?Similar Homes — Search CriteriaSearch Radius20 kmPrice Range±10%Match Home TypeYesMatch BedroomsNo

8036 SHERIDAN COURT, Grimsby (Grimsby Escarpment)
House$1,350,000
$8,039/yr taxListing Courtesy of KELLER WILLIAMS EDGE REALTY

8036 SHERIDAN Court, Grassie
House$1,350,000
$8,039/yr taxListing Courtesy of Keller Williams Edge Realty

87 DOLOMITI COURT, Hamilton
House$1,349,999
$8,431/yr taxListing Courtesy of REALTY ONE GROUP FLAGSHIP

152 7TH CONCESSION Road E, Flamborough
House$1,349,999
$7,411/yr taxListing Courtesy of RE/MAX Escarpment Realty Inc.

2371 PATHFINDER DRIVE, Burlington (Orchard)
House$1,349,900
$6,315/yr taxListing Courtesy of ROYAL LEPAGE STATE REALTY

5 - 2303 HILL RIDGE COURT, Oakville (WT West Oak Trails)
Condo - Row / Townhouse$1,349,900
$6,594/yr taxListing Courtesy of RE/MAX ESCARPMENT REALTY INC.

132 OSBORNE Crescent, Oakville
House$1,349,900
$5,776/yr taxListing Courtesy of Keller Williams Edge Realty

171 HUDDLESTONE CRESCENT, Milton (SC Scott)
House$1,349,900
$5,592/yr taxListing Courtesy of RE/MAX Escarpment Realty Inc., Brokerage

2223 HEADON ROAD, Burlington (Headon)
House$1,349,900
$6,344/yr taxListing Courtesy of ROYAL LEPAGE BURLOAK REAL ESTATE SERVICES

2371 PATHFINDER Drive, Burlington
House$1,349,900
$6,315/yr taxListing Courtesy of Royal LePage State Realty Inc.

2303 HILL RIDGE Court Unit# 5, Oakville
Condo - Row / Townhouse$1,349,900
$6,594/yr taxListing Courtesy of RE/MAX Escarpment Realty Inc.

2223 HEADON Road, Burlington
House$1,349,900
$6,344/yr taxListing Courtesy of Royal LePage Burloak Real Estate Services

628 ARDLEIGH CRESCENT, Burlington (Appleby)
House$1,349,900
$5,703/yr taxListing Courtesy of ROYAL LEPAGE BURLOAK REAL ESTATE SERVICES

628 ARDLEIGH Crescent, Burlington
House$1,349,900
$5,703/yr taxListing Courtesy of Royal LePage Burloak Real Estate Services

461 DOWNES JACKSON HEIGHTS, Milton (HA Harrison)
House$1,349,886
$5,865/yr taxListing Courtesy of ROYAL LEPAGE CERTIFIED REALTY
Similar Properties ?Property Comparables — Search CriteriaSearch Radius2 kmPrice Range±5%Match Home TypeYesMatch BedroomsYes
No rental comparables found in this area.
Sold Comparables
Access to sold property data requires a registered and verified account with TRREB DDF integration.
Coming SoonRented Comparables
Access to rented property data requires a registered and verified account with TRREB DDF integration.
Coming Soon