753 HONEY HARBOUR ROAD, Georgian Bay (Baxter), Ontario, L0K1S0
MLS: X13000184 | House (Freehold)
$849,000


















































Property Description
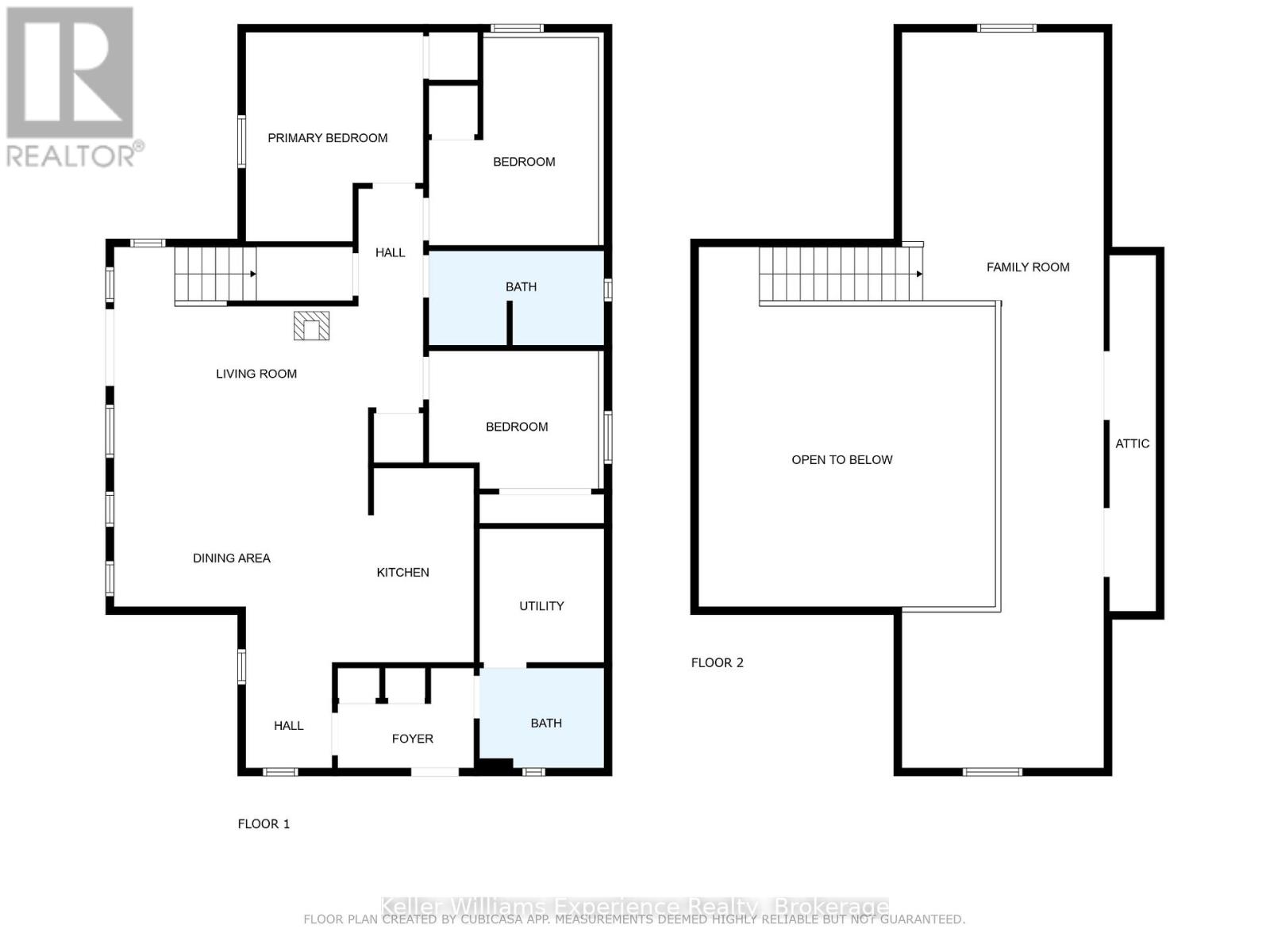
Welcome to 753 Honey Harbour Road, a beautifully crafted custom home nestled on over seven private acres in the heart of Muskokas Georgian Bay Township. Designed with a commitment to energy efficiency, environmental sustainability, and healthy living, this newly built home offers a seamless blend of modern design and natural tranquility. Step inside to a spacious, light-filled layout featuring three main floor bedrooms and two full bathrooms, along with a versatile loft space ideal for additional bedrooms, a home office, or creative studio. Every detail of this home has been considered for maximum efficiency and comfort, from the insulated slab foundation with radiant heating and cooling to the state-of-the-art high efficiency heat pump system. Meticulously constructed with high performance materials and air sealing practices, the home is engineered for superior indoor air quality and year-round energy savings. Additional features include 200 amp electrical service, an onsite meter /EV charger, and a separate utility pole with RV outlet, perfect for camper or trailer hookup. With 230 feet of road frontage along scenic Honey Harbour Road, this property offers easy access to the 30,000 Islands, Georgian Bay Islands National Park, and nearby marinas in Honey Harbour and Port Severn. Enjoy world class boating, hiking, and recreation, plus proximity to Oak Bay Golf Club and year-round amenities in Midland, Orillia, and Barrie, all just 90 minutes from the GTA.Whether youre looking for a full time residence or a peaceful modern retreat, this one of a kind home offers the perfect balance of sustainability, comfort, and natural beauty. Dont miss the opportunity to make it yours. (id:64974)
Quick Facts
- Property Type: House (Freehold)
- Bedrooms: 3 (3 above)
- Bathrooms: 2
- Ownership: Freehold
- Attached: No
- Fireplaces: 1
- Parking: 15.0 spaces (No Garage, RV)
- Frontage: 232 ft (70.6 m)
Listing Provided by: Keller Williams Experience Realty
Board: OnePoint Association of REALTORS®
Data provided via CREA DDF®.
Detailed Features
Interior & Systems
- Heating: Heat Pump, Electric
- Basement: None
- Appliances: Washer, Refrigerator, Water purifier, Dishwasher, Stove, Dryer, Water Treatment, Water Heater
Exterior & Construction
- Exterior: Steel
- Foundation: Poured Concrete, Slab
- Sewer: Septic System
Lot & Land
- Frontage: 232 ft (70.6 m)
- Features: Wooded area, Rocky, Conservation/green belt
- Zoning: R1
Community & Neighbourhood
- Community: Community Centre
- Building: Separate Heating Controls
- Neighbourhood: Baxter
Room Details (10 rooms)
Listing Information
Listing History
MLS listing activity for 753 HONEY HARBOUR ROAD, Georgian Bay (Baxter), Ontario, L0K1S0 — dates reflect when changes were recorded in the DDF
🚗 Travel times
Neighborhood Walkability
Mortgage & Cost Calculators
Nearby Homes ?Nearby Homes — Search CriteriaSearch Radius1 kmPrice Range±5%Match BedroomsYesMatch BathroomsYes
Similar Homes ?Similar Homes — Search CriteriaSearch Radius5 kmPrice Range±5%Match Home TypeYesMatch BedroomsYes

100 MARINA VILLAGE DRIVE, Georgian Bay (Baxter)
Row / Townhouse$849,000
$4,895/yr taxListing Courtesy of RIGHT AT HOME REALTY

80 LINKS TRAIL, Georgian Bay (Baxter)
Row / Townhouse$849,900
$4,276/yr taxListing Courtesy of RE/MAX HALLMARK PEGGY HILL GROUP REALTY

193 GOUETT STREET, Tay
House$819,900
$3,792/yr taxListing Courtesy of FARIS TEAM REAL ESTATE BROKERAGE

210 - 99 LOUISA STREET, Kawartha Lakes (Fenelon Falls)
Condo - Apartment$849,000
Listing Courtesy of KIC REALTY

302 - 8302 ISLINGTON AVENUE, Vaughan (Islington Woods)
Condo - Apartment$849,000
$3,473/yr taxListing Courtesy of SOTHEBY'S INTERNATIONAL REALTY CANADA

2175 COUNTY ROAD 7, Prince Edward County (North Marysburg Ward)
House$849,000
$3,100/yr taxListing Courtesy of HARVEY KALLES REAL ESTATE LTD.

4 POST LANE, Seguin
House$849,000
$1,633/yr taxListing Courtesy of RE/MAX Parry Sound Muskoka Realty Ltd

409 - 81A FRONT STREET E, Toronto (Waterfront Communities)
Condo - Apartment$849,000
$4,502/yr taxListing Courtesy of ROYAL LEPAGE TERREQUITY REALTY

703 - 374 COOPER STREET, Ottawa
Condo - Apartment$849,000
$6,560/yr taxListing Courtesy of ENGEL & VOLKERS OTTAWA

2001 - 71 SIMCOE STREET, Toronto (Bay Street Corridor)
Condo - Apartment$849,000
$4,102/yr taxListing Courtesy of ROYAL LEPAGE TERREQUITY SW REALTY

30 MADSEN CRESCENT, Markham (Markville)
House$849,000
$4,384/yr taxListing Courtesy of CENTURY 21 LEADING EDGE REALTY INC.

19 VALLEY DRIVE, Parry Sound Remote Area (Golden Valley)
House$849,000
$1,890/yr taxListing Courtesy of eXp Realty

119 - 4 KIMBERLY LANE, Collingwood
Condo - Apartment$849,000
$4,730/yr taxListing Courtesy of Royal LePage Locations North

193 BLOOR STREET W, Oshawa (Lakeview)
House$849,000
$3,445/yr taxListing Courtesy of KELLER WILLIAMS ENERGY REAL ESTATE

370 MARTHA Street Unit# 309, Burlington
Condo - Apartment$849,000
$4,790/yr taxListing Courtesy of RE/MAX Escarpment Realty Inc.
Similar Properties ?Active Comparables — Search CriteriaSearch Radius2 kmPrice Range±5%Match Home TypeYesMatch BedroomsYes
No active comparables found in this area.
No rental comparables found in this area.
Sold Comparables
Access to sold property data requires a registered and verified account with TRREB DDF integration.
Coming SoonRented Comparables
Access to rented property data requires a registered and verified account with TRREB DDF integration.
Coming SoonBook a Viewing
753 HONEY HARBOUR ROAD, Georgian Bay (Baxter), Ontario, L0K1S0

