75 HENDERSON Avenue, Brantford, Ontario, N3R4W1
MLS: 40817819 | Duplex (Freehold)
$779,000





























Property Description
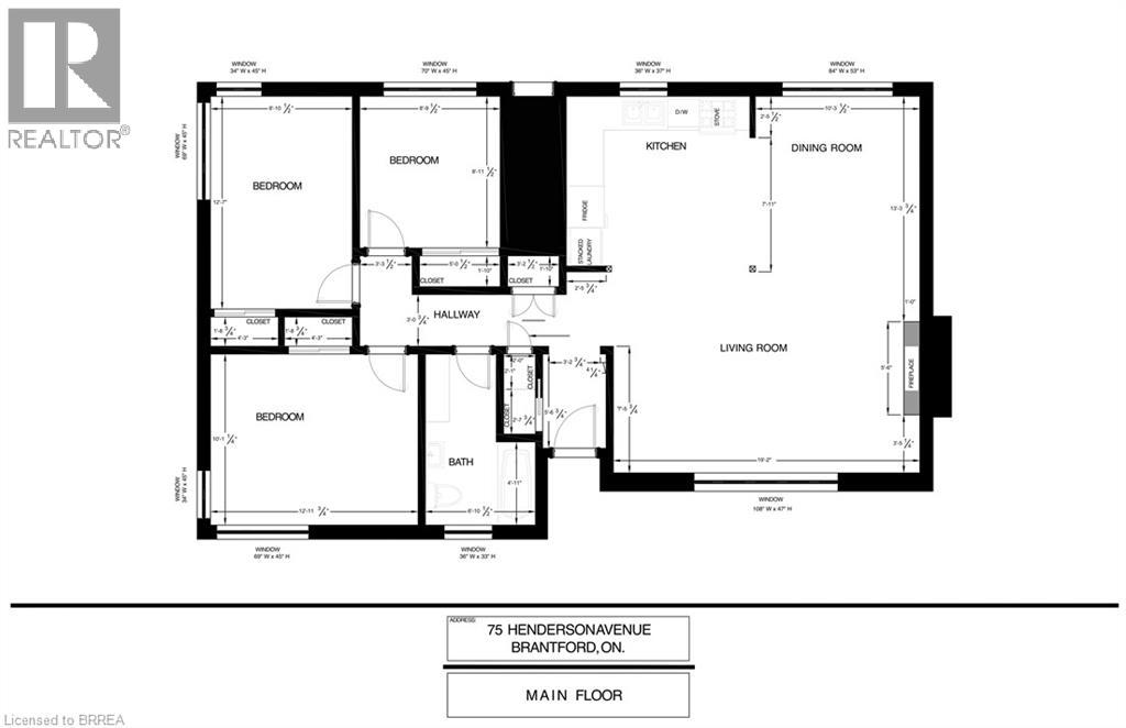
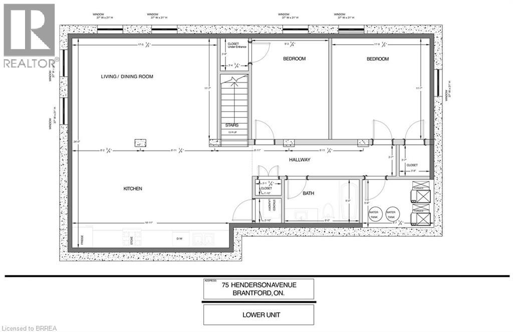
Prime Henderson Survey Location! Imagine life at 75 Henderson Ave! This charming all brick detached home in a sought-after Brantford neighbourhood offers more than just a place to live – it provides a smart financial solution with a built-in mortgage helper for young couple starting out or elderly couple who want a supplementary income. Enjoy comfortable living on the main floor with 3 bedrooms & 4pc bath and 2 bedrooms & full bath on lower level, fully renovated, legal secondary suite downstairs helps offset your mortgage costs or perfect for your inlaws. Main floor is vacant for someone to move into immediately, downstairs is $1,900 per month on a month to month basis plus utilities. Benefit from the peace of mind of separate entrances & utilities, individual HVAC systems, appliances, and tankless water heaters in each unit, all updated in 2021 with full permits and inspections. It's the perfect blend of homeownership and financial flexibility. Attached garage, large lot 74'x133' with fenced yard. Steps to St John's High School & James Hillier School. Location Location Location! Don't miss out on this great opportunity to live in a sought after location! Main floor is vacant for someone to move into immediately perfect for buyer looking to have $1,900 per month plus utilities coming in from lower level to help pay an approx $300,000 mortgage so you can live in Henderson Survey with garage. Don't Miss Out on this Opportunity (id:64974)
Quick Facts
- Property Type: Duplex (Freehold)
- Bedrooms: 0
- Bathrooms: 0
- Living Area: 2,278 sq ft (211.6 m²)
- Above Grade: 1,178 sq ft (109.4 m²)
- Below Grade: 1,100 sq ft (102.2 m²)
- Ownership: Freehold
- Attached: Yes
- Parking: 5.0 spaces (Attached Garage)
- Lot Size: 0.2100 acres (0.08 ha)
- Frontage: 74 ft (22.6 m)
Costs
- Annual Taxes: $6,022.88
Listing Provided by: Century 21 Heritage House LTD
Board: Brantford Regional Real Estate Assn Inc
Data provided via CREA DDF®.
Detailed Features
Interior & Systems
- Heating: Forced air, Natural gas
- Cooling: Central air conditioning, Ductless
- Basement: Finished, Full
Exterior & Construction
- Exterior: Brick
- Foundation: Poured Concrete
- Sewer: Municipal sewage system
- Water: Municipal water
Lot & Land
- Lot Size: 0.2100 acres (0.08 ha)
- Frontage: 74 ft (22.6 m)
- Features: In-Law Suite
- Zoning: R1A
Community & Neighbourhood
- Community: Quiet Area, School Bus, Community Centre
- Subdivision: 2034 - Queensway/Grove
Listing Information
Listing History
MLS listing activity for 75 HENDERSON Avenue, Brantford, Ontario, N3R4W1 — dates reflect when changes were recorded in the DDF
🚗 Travel times
Neighborhood Walkability
Mortgage & Cost Calculators
Nearby Homes ?Nearby Homes — Search CriteriaSearch Radius1 kmPrice Range±5%Match BedroomsYesMatch BathroomsYes

75 HENDERSON Avenue, Brantford
House$779,000
$6,023/yr taxListing Courtesy of Century 21 Heritage House LTD

37 HILLIER Crescent, Brantford
House$749,900
$4,256/yr taxListing Courtesy of Re/Max Twin City Realty Inc
Similar Homes ?Similar Homes — Search CriteriaSearch Radius5 kmPrice Range±5%Match Home TypeYesMatch BedroomsYes

26 WILTSHIRE Drive, Brantford
Duplex$779,900
$4,640/yr taxListing Courtesy of Revel Realty Inc.

169 DARLING Street, Brantford
Fourplex$799,000
$3,964/yr taxListing Courtesy of Pay It Forward Realty

135 SHERWOOD DRIVE, Brantford
Fourplex$799,900
$4,440/yr taxListing Courtesy of RE/MAX ICON REALTY

26 WILTSHIRE DRIVE, Brantford
Multi-family$799,900
$4,640/yr taxListing Courtesy of REVEL REALTY INC.

113 BRANT Avenue, Brantford
Fourplex$799,919
$4,287/yr taxListing Courtesy of Pay It Forward Realty

59 CHURCH Street, Brantford
Triplex$750,000
$4,348/yr taxListing Courtesy of Royal LePage Brant Realty

26 WILTSHIRE Drive, Brantford
Duplex$750,000
$4,640/yr taxListing Courtesy of Revel Realty Inc.

26 WILTSHIRE DRIVE, Brantford
Duplex$750,000
$4,640/yr taxListing Courtesy of REVEL REALTY INC.
Similar Properties ?Active Comparables — Search CriteriaSearch Radius2 kmPrice Range±5%Match Home TypeYesMatch BedroomsYes

26 WILTSHIRE Drive, Brantford
Duplex$779,900
$4,640/yr taxListing Courtesy of Revel Realty Inc.

26 WILTSHIRE DRIVE, Brantford
Multi-family$799,900
$4,640/yr taxListing Courtesy of REVEL REALTY INC.

113 BRANT Avenue, Brantford
Fourplex$799,919
$4,287/yr taxListing Courtesy of Pay It Forward Realty

26 WILTSHIRE Drive, Brantford
Duplex$750,000
$4,640/yr taxListing Courtesy of Revel Realty Inc.

26 WILTSHIRE DRIVE, Brantford
Duplex$750,000
$4,640/yr taxListing Courtesy of REVEL REALTY INC.
Sold Comparables
Access to sold property data requires a registered and verified account with TRREB DDF integration.
Coming SoonRented Comparables
Access to rented property data requires a registered and verified account with TRREB DDF integration.
Coming SoonBook a Viewing
75 HENDERSON Avenue, Brantford, Ontario, N3R4W1


