74A HOWARD AVENUE, Oakville (OO Old Oakville), Ontario, L6J3Y5
MLS: W12893386 | Vacant Land
$2,780,000




Property Description
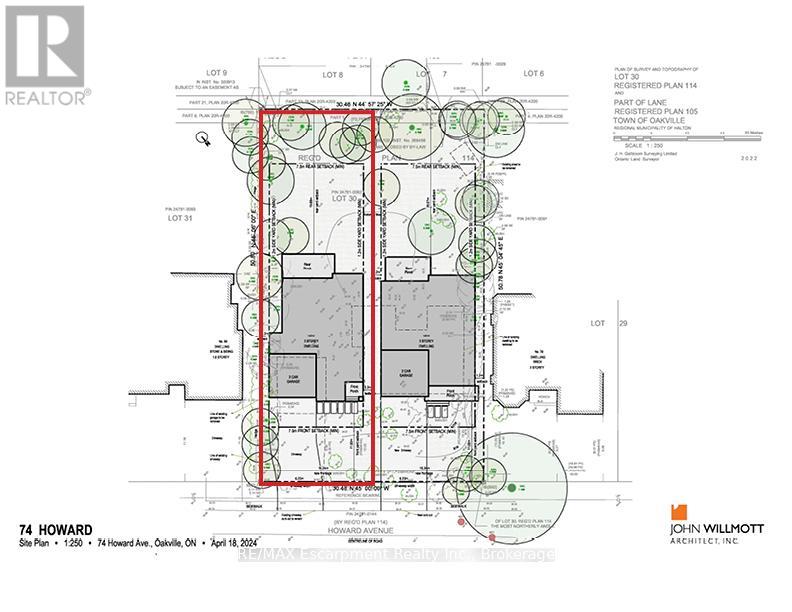
EXCEPTIONAL BUILDING LOT IN OLD OAKVILLE'S MOST SOUGHT-AFTER ENCLAVE Discover an exceptional opportunity to create your bespoke luxury residence on a superior, high-and-dry 50' x 168' lot in the heart of Orchard Beach. Nestled on a quiet two-block street is one of only a handful of streets in Oakville with truly unobstructed views of sparkling Lake Ontario. This parcel enjoys coveted western exposure, filling your future home in glorious golden hour light. PRIME LOCATION & LIFESTYLE HIGHLIGHTS: Prestige Neighbourhood: Orchard Beach, south of Lakeshore Road, renowned for its tree-lined streets, multi-million-dollar homes, and private lakeside Esplanade path. Rare Severance Opportunity: Purchaser will acquire the newly severed southern half of a 100' x 168' property, the final large older-home site to be redeveloped on Howard Avenue. Zoning for Your Vision: RL3-0 zoning permits a double-car garage; conceive the home you've always dreamed of. Architecturally Inspired: Approval to sever based on a Conceptual drawing by John Willmott, Architect, envisions a 4-bedroom, 2-car garage luxury home WHY THIS LOT? Unmatched South Western Exposure: A morning walk to spectacular sunrises at the lake, and long, light-filled evenings ideal for indoor-outdoor entertaining. Serene Yet Connected: Enjoy quiet privacy at day's end, a short stroll to downtown Oakville, boutique shopping, fine dining, with top-rated schools and major highways just moments away. Investment in Rarity: Premium land offerings in Old Oakville are a rarity. Secure your legacy in Oakville's coveted location. (id:64974)
Quick Facts
- Property Type: Vacant Land
- Bedrooms: None
- Bathrooms: 0
- Frontage: 50 ft (15.2 m)
Listing Provided by: RE/MAX Escarpment Realty Inc., Brokerage
Board: The Oakville, Milton & District Real Estate Board
Data provided via CREA DDF®.
Detailed Features
Interior & Systems
- Utilities: Sewer, Electricity, Cable
Exterior & Construction
- Water: Municipal water
Lot & Land
- Frontage: 50 ft (15.2 m)
- Features: Flat site, Dry, Level
- Zoning: RL3-0
Community & Neighbourhood
- Neighbourhood: 1013 - OO Old Oakville
Listing Information
Listing History
MLS listing activity for 74A HOWARD AVENUE, Oakville (OO Old Oakville), Ontario, L6J3Y5 — dates reflect when changes were recorded in the DDF
🚗 Travel times
Neighborhood Walkability
Mortgage & Cost Calculators
Similar Homes ?Similar Homes — Search CriteriaSearch Radius5 kmPrice Range±5%Match Home TypeYesMatch BedroomsYes

3779 MACKLEM STREET, Niagara Falls (Chippawa)
Vacant Land$2,799,000
$9,886/yr taxListing Courtesy of CONDOVILLE REALTY INC.

850 15 LINE N, Oro-Medonte
Vacant Land$2,799,900
$5,032/yr taxListing Courtesy of CENTURY 21 B.J. ROTH REALTY LTD.

5967 VALLEY Way, Niagara Falls
Vacant Land$2,750,000
$6,534/yr taxListing Courtesy of Realty Network

2203 NIAGARA STONE ROAD, Niagara-on-the-Lake (Town)
Vacant Land$2,750,000
$1,842/yr taxListing Courtesy of REVEL Realty Inc., Brokerage

47808 COLLEGE LINE, Malahide
Vacant Land$2,750,000
$2,800/yr taxListing Courtesy of ROYAL LEPAGE TRILAND REALTY

345 JERSEYVILLE Road W, Ancaster
Vacant Land$2,749,800
$9,913/yr taxListing Courtesy of Keller Williams Complete Realty

16 ORMOND STREET S, Thorold (Thorold Downtown)
Vacant Land$2,850,000
$17,337/yr taxListing Courtesy of COLDWELL BANKER MOMENTUM REALTY, BROKERAGE

LOTS1-5 PLAN 35R-17161, Gravenhurst (Morrison)
Vacant Land$2,850,000
$9,500/yr taxListing Courtesy of SOTHEBY'S INTERNATIONAL REALTY CANADA

328 KING STREET E, Mississauga (Cooksville)
Vacant Land$2,699,900
Listing Courtesy of ROYAL LEPAGE CERTIFIED REALTY

906 MAIN Street W, Hamilton
Vacant Land$2,699,900
$31,966/yr taxListing Courtesy of Royal LePage State Realty Inc.

906 MAIN STREET W, Hamilton (Westdale)
Vacant Land$2,699,900
$31,966/yr taxListing Courtesy of ROYAL LEPAGE STATE REALTY

0 HIGHWAY 35, Minden Hills (Lutterworth)
Vacant Land$2,900,000
$1,007/yr taxListing Courtesy of RE/MAX Professionals North

0 GEORGE Street, Dunnville
Vacant Land$2,900,000
Listing Courtesy of Royal LePage State Realty Inc.

5525 CONCESSION RD 4, Adjala-Tosorontio
Vacant Land$2,900,000
$1,637/yr taxListing Courtesy of RE/MAX GOLD REALTY INC.

0 MOUNT PLEASANT ROAD, Brant (Brantford Twp)
Vacant Land$2,900,000
$1,250/yr taxListing Courtesy of Sotheby's International Realty Canada, Brokerage
Similar Properties ?Active Comparables — Search CriteriaSearch Radius2 kmPrice Range±5%Match Home TypeYesMatch BedroomsYes
No active comparables found in this area.
No rental comparables found in this area.
Sold Comparables
Access to sold property data requires a registered and verified account with TRREB DDF integration.
Coming SoonRented Comparables
Access to rented property data requires a registered and verified account with TRREB DDF integration.
Coming SoonRequest a Tour
74A HOWARD AVENUE, Oakville (OO Old Oakville), Ontario, L6J3Y5
