747 VERNON PLACE, Hamilton (Ancaster), Ontario, L9G3H4
MLS: X12839766 | House (Freehold)
$3,149,900



















































Property Description
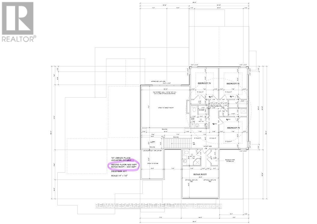
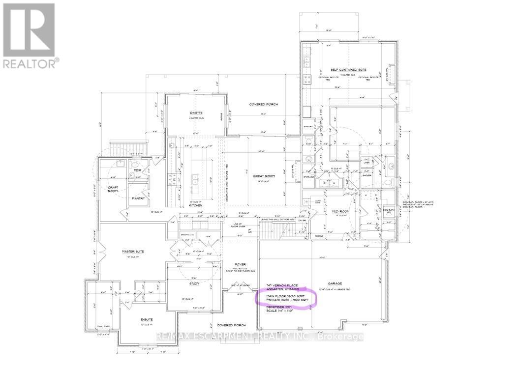
A rare Luxury Home with attached Private Suite in a highly sought after location. This exceptional custom-built residence offers approx. 4,960 sq. ft. of thoughtfully designed living space, including a fully integrated 900 sq. ft. private suite - perfect for multi-generational living, a nanny or caregiver, or potential income opportunities. A rare find that combines elegance, flexibility, and everyday functionality for today's modern family. The 3,800 sq. ft. main home showcases outstanding craftsmanship & premium finishes throughout. The sun-filled main-floor Master retreat provides comfort & convenience, complete with dual walk-in closets & a spa-inspired 5pc ensuite featuring a soaker tub, heated floors, heated towel rack, & custom glass shower. A private den with custom built-ins & wet bar creates the ideal work-from-home space or quiet retreat. Designed for gathering & entertaining, the oversized eat-in kitchen features striking quartzite countertops, a large island, walk-in pantry, separate prep kitchen, wet bar & built-in Thermador appliances. The impressive two-storey family room with custom tile-surround gas fireplace & built-in cabinetry flows seamlessly to the covered rear patio through an oversized triple-pane accordion door system, creating beautiful indoor-outdoor living. A well-appointed mudroom & main-floor laundry complete with custom dog wash add everyday practicality. Venture upstairs to a spacious media room with its own 3-piece ensuite offering flexible living space for teens or guests, along with three additional bedrooms and another full bathroom. The attached 1-bedroom private suite is connected through the mudroom yet fully self-contained, offering a separate side entrance and dedicated garage parking. Featuring vaulted ceilings, a custom fireplace, full kitchen, private laundry, covered patio, & a large bedroom with ensuite bath allowing both independence and comfort while remaining connected to the main home. (id:64974)
Quick Facts
- Property Type: House (Freehold)
- Bedrooms: 5 (5 above)
- Bathrooms: 6 (2 half)
- Ownership: Freehold
- Attached: No
- Fireplaces: 2
- Parking: 12 spaces (Attached Garage, Garage, Inside Entry)
- Frontage: 146 ft (44.5 m)
Costs
- Annual Taxes: $21,393.00
Listing Provided by: RE/MAX ESCARPMENT REALTY INC.
Board: Toronto Regional Real Estate Board
Data provided via CREA DDF®.
Detailed Features
Interior & Systems
- Heating: Forced air, Natural gas
- Cooling: Central air conditioning, Air exchanger
- Basement: Unfinished, Full, Walk-up, N/A, N/A
- Appliances: Washer, Refrigerator, Central Vacuum, Dishwasher, Stove, Range, Oven, Dryer, Microwave, Oven - Built-In, Window Coverings, Garage door opener, Garage door opener remote(s)
- Security: Security system, Smoke Detectors
Exterior & Construction
- Exterior: Brick, Aluminum siding
- Foundation: Poured Concrete
- Fencing: Fenced yard, Fully Fenced
- Sewer: Sanitary sewer
- Water: Municipal water
Lot & Land
- Frontage: 146 ft (44.5 m)
- Features: Cul-de-sac, In-Law Suite
- Zoning: ER
Community & Neighbourhood
- Community: School Bus, Community Centre
- Building: Separate Heating Controls, Fireplace(s)
- Neighbourhood: Ancaster
Room Details (17 rooms)
Listing Information
Listing History
Buy/Sell/Terminated/Expired listing history for 747 VERNON PLACE, Hamilton (Ancaster), Ontario, L9G3H4
Location & Neighborhood
🚗 Travel times
Neighborhood Walkability
Mortgage & Cost Calculators
Nearby Homes (Within 2km)
Similar Homes
Similar Properties
No rental comparables found in this area.
Sold Comparables
Access to sold property data requires a registered and verified account with TRREB DDF integration.
Coming SoonRented Comparables
Access to rented property data requires a registered and verified account with TRREB DDF integration.
Coming Soon
























