745 GLENGROVE AVENUE W, Toronto (Yorkdale-Glen Park), Ontario, M6B2J7
MLS: W12910082 | House (Freehold)
$1,799,900



















































Property Description
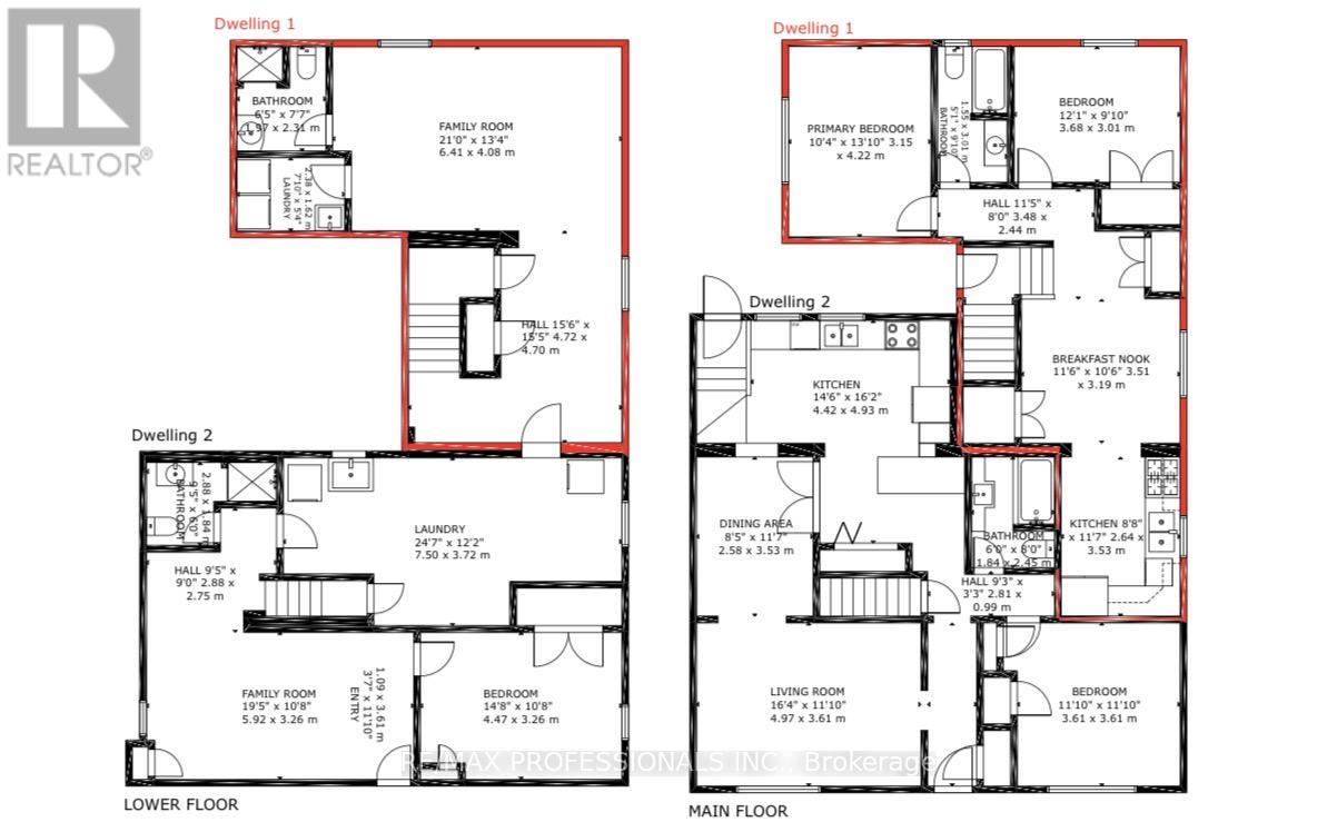
**2 Separate Bungalows!** This unique, turn-key property is an incredible opportunity- a must-see! This Home features 2 separate dwellings- Perfect for multi-family, live-in nanny/in-law suite, prime Investment property with +$6000/ monthly rental potential and so much more! This Home sits on a prime 55.5 x 135 foot estate lot (no sidewalks), surrounded by multi +$3M custom built homes and features approximately 1700 square feet on the main floor. Live-in/rent now/build later- opportunities are endless.*The First dwelling at the front of the house features 1 Bedroom + full bath on main floor, 1 Bedroom + 3Pc bath on the lower level. Dwelling #1 also features large living and dining area, large kitchen and more. *Dwelling #2 features separate entry door at rear of the property and features 2 Bedrooms + 1 Full bath on main floor, large kitchen and dining + separate entrance to lower level that features a 3 Pc bath and large living area. *Both Dwellings are only connected by a door in lower level- Take the virtual tour and walk through the property* Very clean garage with EV Charger. The Home is meticulously clean and well maintained and features a ton of upgrades, including *2021- New concrete driveway and stamped concretes walkways to yard and rear of lot. *2022- Garage door, new shingle roof, front windows. *2023- New gutters and eavestrough. *2024- new 800 square foot composite deck + more! *Both dwellings contain their own Laundry area. Located in prime and desirable Glen Park neighbourhood, close to Hwy 401, TTC Transit- bus and subway, a ton of nearby amenities including Costco, Yorkdale Shopping, restaurants/bakeries/eateries and close to great schools and parks - a perfect family community and home. (id:64974)
Quick Facts
- Property Type: House (Freehold)
- Style: Bungalow
- Bedrooms: 4 (3 above, 1 below)
- Bathrooms: 4
- Ownership: Freehold
- Attached: No
- Parking: 5.0 spaces (Attached Garage, Garage)
- Frontage: 56 ft (16.9 m)
Costs
- Annual Taxes: $6,726.00
Listing Provided by: RE/MAX PROFESSIONALS INC.
Board: Toronto Regional Real Estate Board
Data provided via CREA DDF®.
Detailed Features
Interior & Systems
- Heating: Forced air, Natural gas
- Cooling: Central air conditioning
- Basement: Finished, Separate entrance, N/A, N/A
- Appliances: Washer, Refrigerator, Dishwasher, Dryer, Two stoves, Window Coverings, Garage door opener
Exterior & Construction
- Style: Bungalow
- Exterior: Brick, Stone
- Foundation: Block
- Fencing: Fenced yard
- Sewer: Sanitary sewer
- Water: Municipal water
Lot & Land
- Frontage: 56 ft (16.9 m)
- Features: In-Law Suite
Community & Neighbourhood
- Neighbourhood: Yorkdale-Glen Park
Listing Information
Listing History
MLS listing activity for 745 GLENGROVE AVENUE W, Toronto (Yorkdale-Glen Park), Ontario, M6B2J7 — dates reflect when changes were recorded in the DDF
🚗 Travel times
Neighborhood Walkability
Mortgage & Cost Calculators
Nearby Homes ?Nearby Homes — Search CriteriaSearch Radius1 kmPrice Range±5%Match BedroomsYesMatch BathroomsYes

945 GLENCAIRN AVENUE, Toronto (Yorkdale-Glen Park)
House$1,275,000
$5,784/yr taxListing Courtesy of RE/MAX HALLMARK REALTY LTD.

47 WENDERLY DRIVE, Toronto (Yorkdale-Glen Park)
House$1,399,000
$6,583/yr taxListing Courtesy of BEST SELLERS REAL ESTATE LTD.

976 GLENCAIRN AVENUE, Toronto (Yorkdale-Glen Park)
House$2,349,000
$9,087/yr taxListing Courtesy of SUTTON GROUP-ASSOCIATES REALTY INC.

862 GLENCAIRN AVENUE, Toronto (Yorkdale-Glen Park)
House$2,250/mo
Listing Courtesy of RE/MAX EXPERTS

601 - 2961 DUFFERIN STREET, Toronto (Yorkdale-Glen Park)
Condo - Apartment$2,100/mo
Listing Courtesy of SPECTRUM REALTY SERVICES INC.

B - 592 MARLEE AVENUE, Toronto (Yorkdale-Glen Park)
Residential Commercial Mix$2,050/mo
Listing Courtesy of RARE REAL ESTATE

312 - 556 MARLEE AVENUE, Toronto (Yorkdale-Glen Park)
Condo - Apartment$2,200/mo
Listing Courtesy of ORION REALTY CORPORATION

813 - 556 MARLEE AVENUE, Toronto (Yorkdale-Glen Park)
Condo - Apartment$489,000
$1,674/yr taxListing Courtesy of ROYAL LEPAGE SIGNATURE REALTY

410 - 556 MARLEE AVENUE, Toronto (Yorkdale-Glen Park)
Condo - Apartment$2,650/mo
Listing Courtesy of ORION REALTY CORPORATION

221 - 556 MARLEE AVENUE, Toronto (Yorkdale-Glen Park)
Condo - Apartment$2,159/mo
Listing Courtesy of EXP REALTY

316 - 556 MARLEE AVENUE, Toronto (Yorkdale-Glen Park)
Condo - Apartment$2,500/mo
Listing Courtesy of HOME STANDARDS BRICKSTONE REALTY

331 - 556 MARLEE AVENUE, Toronto (Yorkdale-Glen Park)
Condo - Apartment$2,200/mo
Listing Courtesy of ROYAL LEPAGE SIGNATURE REALTY

221 - 556 MARLEE AVENUE, Toronto (Yorkdale-Glen Park)
Condo - Apartment$549,900
Listing Courtesy of EXP REALTY

521 - 556 MARLEE AVENUE, Toronto (Yorkdale-Glen Park)
Condo - Apartment$629,900
$2,783/yr taxListing Courtesy of RIGHT AT HOME REALTY

715 - 556 MARLEE AVENUE, Toronto (Yorkdale-Glen Park)
Condo - Apartment$2,325/mo
Listing Courtesy of ORION REALTY CORPORATION
Similar Homes ?Similar Homes — Search CriteriaSearch Radius5 kmPrice Range±5%Match Home TypeYesMatch BedroomsYes

388 OAKWOOD AVENUE, Toronto (Oakwood Village)
House$1,799,999
$7,073/yr taxListing Courtesy of HOMELIFE/MIRACLE REALTY LTD

893 DOVERCOURT ROAD, Toronto (Dovercourt-Wallace Emerson-Junction)
House$1,799,000
$1/yr taxListing Courtesy of RARE REAL ESTATE

401 - 55 DELISLE AVENUE, Toronto (Yonge-St. Clair)
Condo - Apartment$1,795,000
$10,776/yr taxListing Courtesy of ROYAL LEPAGE/J & D DIVISION

204 MCROBERTS AVENUE, Toronto (Corso Italia-Davenport)
House$1,795,000
$9,358/yr taxListing Courtesy of ROYAL LEPAGE SIGNATURE REALTY

11A ALCINA AVENUE, Toronto (Wychwood)
House$1,750,000
$7,171/yr taxListing Courtesy of ROYAL LEPAGE SIGNATURE REALTY

440 GLENGARRY AVENUE, Toronto (Bedford Park-Nortown)
House$1,868,000
$10,146/yr taxListing Courtesy of CHESTNUT PARK REAL ESTATE LIMITED

97 ORIOLE PARKWAY, Toronto (Yonge-St. Clair)
House$1,714,900
$8,161/yr taxListing Courtesy of RE/MAX HALLMARK REALTY LTD.

199 GLENGARRY AVENUE, Toronto (Lawrence Park North)
House$1,888,888
$7,186/yr taxListing Courtesy of WEISS REALTY LTD.
Similar Properties ?Active Comparables — Search CriteriaSearch Radius2 kmPrice Range±5%Match Home TypeYesMatch BedroomsYes
No active comparables found in this area.
No rental comparables found in this area.
Sold Comparables
Access to sold property data requires a registered and verified account with TRREB DDF integration.
Coming SoonRented Comparables
Access to rented property data requires a registered and verified account with TRREB DDF integration.
Coming SoonBook a Viewing
745 GLENGROVE AVENUE W, Toronto (Yorkdale-Glen Park), Ontario, M6B2J7
