74 ALLNESS ROAD, Brampton (Fletcher's Meadow), Ontario, L7A3N7
MLS: W12966008 | House (Freehold)
$798,000



Property Description
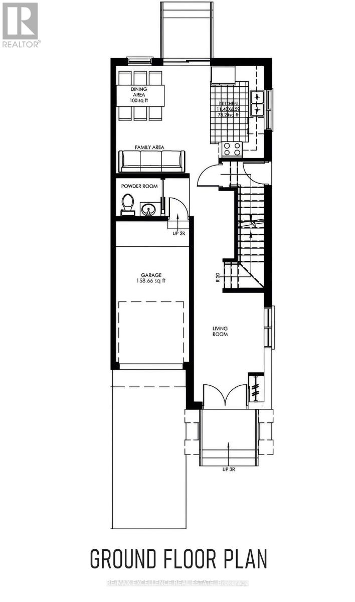
Brand-new semi-detached home eligible for the First-Time Home Buyer / Investor HST Rebate (13% HST eligible) located in a desirable Brampton neighbourhood. This 3-bedroom, 4-bathroom home features a legal basement apartment and no rear neighbours, offering a rare combination of privacy, modern design, and built-in income potential. The main floor offers a bright, open-concept layout with a natural flow between the living, dining, and kitchen areas-ideal for both everyday living and entertaining. Large windows bring in plenty of natural light, creating a warm and inviting atmosphere throughout. Upstairs, the primary bedroom features a spacious 5-piece ensuite, while two additional bedrooms provide flexibility for family, guests, or a home office. A second full bathroom and a main-floor powder room add to the home's overall convenience. The legal basement apartment adds significant value, offering a fully finished, self-contained space that is ready to use from day one, whether for rental income or extended family living, with no additional work required. Enjoy the added benefit of no homes at the back, providing a more open and private outdoor setting-something not often found in similar properties. Located in the highly desirable Fletcher's Meadow community, close to schools, parks, shopping, and everyday amenities. (id:64974)
Quick Facts
- Property Type: House (Freehold)
- Bedrooms: 4 (3 above, 1 below)
- Bathrooms: 4 (1 half)
- Ownership: Freehold
- Attached: Yes
- Parking: 3.0 spaces (Attached Garage, Garage)
- Frontage: 24 ft (7.3 m)
Listing Provided by: RE/MAX EXCELLENCE REAL ESTATE
Board: Toronto Regional Real Estate Board
Data provided via CREA DDF®.
Detailed Features
Interior & Systems
- Heating: Forced air, Natural gas
- Cooling: Central air conditioning
- Basement: Apartment in basement, Separate entrance, N/A, N/A
Exterior & Construction
- Exterior: Brick
- Foundation: Poured Concrete
- Sewer: Sanitary sewer
- Water: Municipal water
Lot & Land
- Frontage: 24 ft (7.3 m)
Community & Neighbourhood
- Neighbourhood: Fletcher's Meadow
Room Details (12 rooms)
Listing Information
Listing History
MLS listing activity for 74 ALLNESS ROAD, Brampton (Fletcher's Meadow), Ontario, L7A3N7 — dates reflect when changes were recorded in the DDF
🚗 Travel times
Neighborhood Walkability
Mortgage & Cost Calculators
Nearby Homes ?Nearby Homes — Search CriteriaSearch Radius1 kmPrice Range±5%Match BedroomsYesMatch BathroomsYes

33 SUGARHILL DRIVE, Brampton (Fletcher's Meadow)
House$799,900
$5,619/yr taxListing Courtesy of ROYAL LEPAGE MEADOWTOWNE REALTY

48 TRUMPET VALLEY BOULEVARD, Brampton (Fletcher's Meadow)
House$799,900
$5,162/yr taxListing Courtesy of MAPLE REALTY INC.

289 EDENBROOK HILL DRIVE, Brampton (Fletcher's Meadow)
House$3,400/mo
Listing Courtesy of ROYAL CANADIAN REALTY

84 TIDELAND DRIVE, Brampton (Fletcher's Meadow)
House$899,000
$5,667/yr taxListing Courtesy of CENTURY 21 PROPERTY ZONE REALTY INC.

MAIN - 36 TRUMPET VALLEY BOULEVARD, Brampton (Fletcher's Meadow)
House$2,900/mo
Listing Courtesy of HOMELIFE/FUTURE REALTY INC.

20 EDENVALLEY ROAD, Brampton (Fletcher's Meadow)
House$899,000
$5,751/yr taxListing Courtesy of CENTURY 21 FINE LIVING REALTY INC.

248 EDENBROOK HILL DRIVE, Brampton (Fletcher's Meadow)
House$1,249,900
$7,804/yr taxListing Courtesy of RE/MAX REALTY SERVICES INC.

BSMNT - 29 JESSOP DRIVE, Brampton (Fletcher's Meadow)
House$1,550/mo
Listing Courtesy of CENTURY 21 PEOPLE'S CHOICE REALTY INC.

23 EDENVALLEY ROAD, Brampton (Fletcher's Meadow)
House$999,999
$7,420/yr taxListing Courtesy of RE/MAX REALTY SERVICES INC.

25 MADRONNA GARDENS, Brampton (Fletcher's Meadow)
House$1,298,000
$7,660/yr taxListing Courtesy of ROYAL LEPAGE SIGNATURE REALTY

5 SAMS CRESCENT, Brampton (Fletcher's Meadow)
House$1,087,300
$6,320/yr taxListing Courtesy of HOMELIFE/MIRACLE REALTY LTD

19 BRENTCLIFF DRIVE, Brampton (Fletcher's Meadow)
House$1,800/mo
Listing Courtesy of CENTURY 21 SKYLARK REAL ESTATE LTD.

222 EDENBROOK HILL DRIVE, Brampton (Fletcher's Meadow)
House$989,700
$6,279/yr taxListing Courtesy of HOMELIFE SILVERCITY REALTY INC.

63 IRENE CRESCENT, Brampton (Fletcher's Meadow)
Row / Townhouse$799,800
$5,139/yr taxListing Courtesy of RE/MAX REALTY SERVICES INC.

11 MIDVALE ROAD, Brampton (Fletcher's Meadow)
House$2,999/mo
Listing Courtesy of EXECUTIVE REAL ESTATE SERVICES LTD.
Similar Homes ?Similar Homes — Search CriteriaSearch Radius5 kmPrice Range±5%Match Home TypeYesMatch BedroomsYes

21 FRESNEL ROAD S, Brampton (Northwest Brampton)
Row / Townhouse$799,000
$6,892/yr taxListing Courtesy of ROYAL LEPAGE SIGNATURE REALTY

45 GRANGE DRIVE, Brampton (Northwood Park)
House$799,000
$5,199/yr taxListing Courtesy of NEWGEN REALTY EXPERTS

3 NOTTAWASAGA CRESCENT, Brampton (Heart Lake West)
House$799,000
$5,000/yr taxListing Courtesy of KING REALTY INC.

13 TRUFFLE COURT, Brampton (Northwest Brampton)
House$799,556
$6,267/yr taxListing Courtesy of HOMELIFE/MIRACLE REALTY LTD

40 DONOMORE DRIVE, Brampton (Northwest Brampton)
Row / Townhouse$799,813
$5,307/yr taxListing Courtesy of CENTURY 21 LEGACY LTD.

43 PROUSE DRIVE, Brampton (Brampton North)
House$799,900
$5,019/yr taxListing Courtesy of THE NOOK REALTY INC.

19 GEMMA PLACE, Brampton (Heart Lake West)
Row / Townhouse$799,900
$5,715/yr taxListing Courtesy of REMAX CONNECT REALTY

71 TOWNLEY CRESCENT, Brampton (Heart Lake West)
House$799,900
$4,731/yr taxListing Courtesy of CENTURY 21 LEGACY LTD.

17 DAWES ROAD, Brampton (Credit Valley)
House$799,999
$5,367/yr taxListing Courtesy of RE/MAX REALTY SERVICES INC.

21 GARDEN AVENUE, Brampton (Brampton West)
House$799,999
$4,959/yr taxListing Courtesy of EXECUTIVE REAL ESTATE SERVICES LTD.

23 LONESTAR CRESCENT, Brampton (Fletcher's Meadow)
House$795,900
$5,055/yr taxListing Courtesy of RE/MAX REAL ESTATE CENTRE INC.

40 STEWARDSHIP RD ROAD E, Brampton (Northwest Brampton)
Row / Townhouse$793,900
$4,983/yr taxListing Courtesy of RIGHT AT HOME REALTY

168 TWIN PINES CRESCENT, Brampton (Northwest Sandalwood Parkway)
Row / Townhouse$789,900
$4,695/yr taxListing Courtesy of CIRCLE REAL ESTATE

3 MONACO COURT, Brampton (Fletcher's Meadow)
Row / Townhouse$789,000
$4,991/yr taxListing Courtesy of RE/MAX GOLD REALTY INC.

82 TWIN PINES CRESCENT, Brampton (Northwest Sandalwood Parkway)
House$789,000
$4,505/yr taxListing Courtesy of RE/MAX EXPERTS
Similar Properties ?Active Comparables — Search CriteriaSearch Radius2 kmPrice Range±5%Match Home TypeYesMatch BedroomsYes

23 LONESTAR CRESCENT, Brampton (Fletcher's Meadow)
House$795,900
$5,055/yr taxListing Courtesy of RE/MAX REAL ESTATE CENTRE INC.

40 STEWARDSHIP RD ROAD E, Brampton (Northwest Brampton)
Row / Townhouse$793,900
$4,983/yr taxListing Courtesy of RIGHT AT HOME REALTY

168 TWIN PINES CRESCENT, Brampton (Northwest Sandalwood Parkway)
Row / Townhouse$789,900
$4,695/yr taxListing Courtesy of CIRCLE REAL ESTATE

82 TWIN PINES CRESCENT, Brampton (Northwest Sandalwood Parkway)
House$789,000
$4,505/yr taxListing Courtesy of RE/MAX EXPERTS

250 BRISDALE DRIVE, Brampton (Fletcher's Meadow)
House$809,700
$4,715/yr taxListing Courtesy of HOMELIFE MAPLE LEAF REALTY LTD.

84 VANHORNE CLOSE, Brampton (Northwest Brampton)
Row / Townhouse$779,000
$4,911/yr taxListing Courtesy of RE/MAX GOLD REALTY INC.

10 VANHORNE CLOSE, Brampton (Northwest Brampton)
Row / Townhouse$778,922
$5,191/yr taxListing Courtesy of RIGHT AT HOME REALTY

433 VETERANS DRIVE, Brampton (Northwest Brampton)
Row / Townhouse$829,000
$5,447/yr taxListing Courtesy of FIRST CLASS REALTY INC.

47 TWIN PINES CRESCENT, Brampton (Northwest Sandalwood Parkway)
House$829,900
$5,487/yr taxListing Courtesy of RE/MAX REALTY SERVICES INC.

UPPER UNIT ONLY - 247 BUICK BOULEVARD, Brampton (Northwest Brampton)
House$3,500/mo
Listing Courtesy of Gold Estate Realty Inc.

64 ENFORD CRESCENT, Brampton (Northwest Brampton)
House$3,500/mo
Listing Courtesy of SAVE MAX REAL ESTATE INC.

6 MYSTCAL ROAD, Brampton (Fletcher's Meadow)
House$3,498/mo
Listing Courtesy of LPT REALTY
Sold Comparables
Access to sold property data requires a registered and verified account with TRREB DDF integration.
Coming SoonRented Comparables
Access to rented property data requires a registered and verified account with TRREB DDF integration.
Coming SoonBook a Viewing
74 ALLNESS ROAD, Brampton (Fletcher's Meadow), Ontario, L7A3N7
