73952 DURAND STREET, Bluewater (Stanley), Ontario, N0M2T0
MLS: X12681500 | House (Freehold)
$1,999,500





















































Property Description
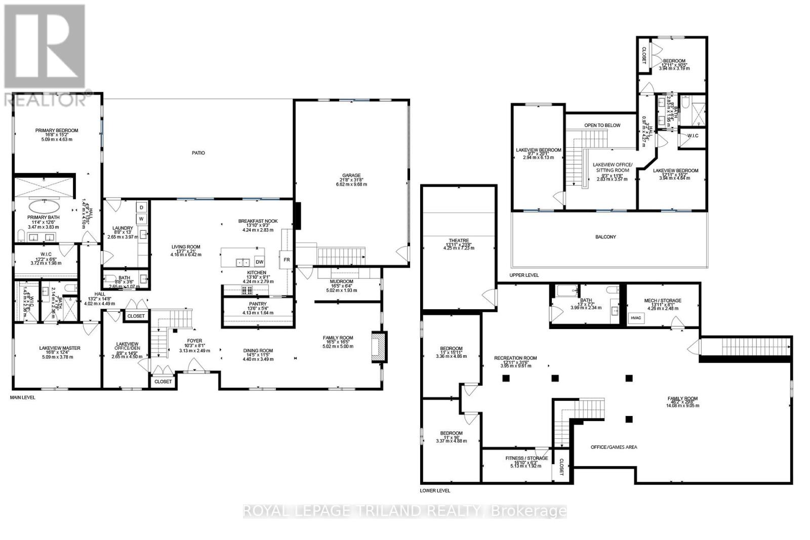
LAKEFRONT BENEFITS & LAKE VIEWS w/ 2ND ROW PRICING | PRICED WELL BELOW REPLACEMENT COST | 5.34 ACRE EXECUTIVE ESTATE STYLE PROPERTY | MODERN 2024 CAPE-COD HOME SURROUNDED BY ROLLING PASTURES & VIEWS OF LAKE HURON & ITS AWARD WINNING SUNETS | 5 MIN WALK TO SECLUDED SANDY BEACH | SHORT DRIVE TO GRAND BEND OR BAYFILED | This 7 bed/5 bath architecturally designed masterpiece offering 6763 sq ft of epically finished living space is one for the magazines. Situated on a 5.34 acre lake view location, its surrounded by other oversized parcels & perched atop the sparkling waters of Lake Huron 145 MTRS from the shoreline! Courtesy of Lakeshore Construction, an esteemed local outfit w/ extensive experience building high-end lakefront & lakeside custom homes; this 1 yr young immaculately finished entertainment paradise is virtually BRAND NEW. The main level, below a variety of vaulted shiplap ceilings features 2 master suites; one lake view & one rural view; w/ hardly any neighbors in sight! These are just 2 of the 7 bedrooms, 2 more of which also provide ensuite access & lake views! The inventive & exceptional layout is ideal for large multi-generational families, providing a variety of vast principal rooms & several home office locations/sitting areas, including a lake view den on the main level. For the parents, the oversized 500 sq ft master suite w/ incredible built-in dressing room & zero edge wet room style ensuite bath w/ heated floors are all finished to the 9s. The chefs kitchen/living/dining areas & oversized walk-in pantry opposite the large mudroom & sprawling main level laundry are absolutely perfect. Just like the vaulted fireplace living room, the lower level all over heated floors w/ separate entrance/movie theatre/gym space & the 3 car garage (also over heated floors), these are best-in-class spaces finished w/ premium materials & fixtures. This is a truly remarkable home when compared to others in this price range, outstanding & unbeatable from top to bottom (id:64974)
Quick Facts
- Property Type: House (Freehold)
- Bedrooms: 6 (4 above, 2 below)
- Bathrooms: 5 (1 half)
- Ownership: Freehold
- Attached: No
- Fireplaces: 1
- Parking: 15 spaces (Attached Garage, Garage, Inside Entry)
- Frontage: 250 ft (76.3 m)
Costs
- Annual Taxes: $8,327.00
Listing Provided by: ROYAL LEPAGE TRILAND REALTY
Board: London and St. Thomas Association of REALTORS®
Data provided via CREA DDF®.
Detailed Features
Interior & Systems
- Heating: Forced air, Natural gas
- Cooling: Central air conditioning, Air exchanger
- Basement: Finished, N/A
- Appliances: Garage door opener, Garage door opener remote(s), Water Heater - Tankless, Water Heater
- Utilities: Electricity, Cable
- Security: Smoke Detectors
- Fireplace Features: Insert
Exterior & Construction
- Exterior: Wood, Shingles
- Foundation: Concrete
- Sewer: Septic System
- Water: Municipal water
Lot & Land
- Frontage: 250 ft (76.3 m)
- Features: Cul-de-sac, Wooded area, Irregular lot size, Rolling, Partially cleared, Backs on greenbelt, Conservation/green belt, Dry
- View: Lake view, View of water, Direct Water View
- Zoning: LR1-3
Community & Neighbourhood
- Community: Fishing
- Building: Separate Heating Controls, Fireplace(s)
- Neighbourhood: Stanley
Room Details (12 rooms)
Listing Information
Listing History
Buy/Sell/Terminated/Expired listing history for 73952 DURAND STREET, Bluewater (Stanley), Ontario, N0M2T0
Location & Neighborhood
🚗 Travel times
Neighborhood Walkability
Mortgage & Cost Calculators
Similar Homes
Similar Properties
No rental comparables found in this area.
Sold Comparables
Access to sold property data requires a registered and verified account with TRREB DDF integration.
Coming SoonRented Comparables
Access to rented property data requires a registered and verified account with TRREB DDF integration.
Coming Soon







