715 - 185 DUNLOP STREET E, Barrie (Lakeshore), Ontario, L4M1B2
MLS: S12972024 | Apartment (Condo)
$649,990





































Property Description
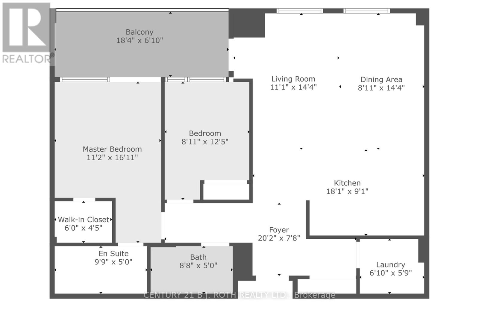
Presenting 185 Dunlop St. Live life by the water in the prestigious LAKHOUSE condos overlooking the vast beauty of Kempenfelt Bay. Enjoy evening walks along the board walk; eat local at the numerous fine dining restaurants located downtown Barrie; be entertained during the summer months with festivals and parades; optimize your health and wellness with access to your own gym, hot-tub/sauna, steam room and lakeside walking trails. Added benefits include concierge, party room, seating areas, two guest suites, rooftop terraces with direct views of water. 1,101 sq.ft of luxury open concept living, airy 9' ceilings, 2 bedrooms, 2 bathrooms, exceptionally large enclosed balcony with railing to roof glass enclosure that opens fully. EXTRAS: Quartz Countertop, high-end SS appliances, built-in dishwasher, stylish backsplash, glass tile shower in master ensuite, top grade laminate flooring throughout, pot lights, largest underground parking in the building complete with storage locker (id:64974)
Quick Facts
- Property Type: Apartment (Condo)
- Bedrooms: 2 (2 above)
- Bathrooms: 2
- Ownership: Condo/Strata
- Attached: Yes
- Parking: 1.0 space (Garage, Underground)
Costs
- Annual Taxes: $6,000.00
- Condo/HOA Fee: $961.66 / monthly
- Corp: Bayshore
- Includes: Common Area Maintenance, Heat, Water, Insurance
Listing Provided by: CENTURY 21 B.J. ROTH REALTY LTD.
Board: Toronto Regional Real Estate Board
Data provided via CREA DDF®.
Detailed Features
Interior & Systems
- Heating: Forced air, Other
- Cooling: Central air conditioning
- Basement: None
- Appliances: Washer, Refrigerator, Dishwasher, Stove, Dryer, Microwave, Garage door opener remote(s)
Exterior & Construction
- Exterior: Stucco
Lot & Land
- Features: Balcony
Community & Neighbourhood
- Community: Pets Allowed With Restrictions
- Building: Storage - Locker, Exercise Centre, Party Room, Sauna, Security/Concierge
- Neighbourhood: Lakeshore
Room Details (8 rooms)
Listing Information
Listing History
Buy/Sell/Terminated/Expired listing history for 715 - 185 DUNLOP STREET E, Barrie (Lakeshore), Ontario, L4M1B2
Location & Neighborhood
🚗 Travel times
Neighborhood Walkability
Mortgage & Cost Calculators
Nearby Homes (Within 2km)
Similar Homes
Similar Properties
No rental comparables found in this area.
Sold Comparables
Access to sold property data requires a registered and verified account with TRREB DDF integration.
Coming SoonRented Comparables
Access to rented property data requires a registered and verified account with TRREB DDF integration.
Coming Soon

























