707 - 350 SPARKS STREET, Ottawa, Ontario, K1R7S8
MLS: X12280658 | Offices
$15.00 / square feet




















Property Description
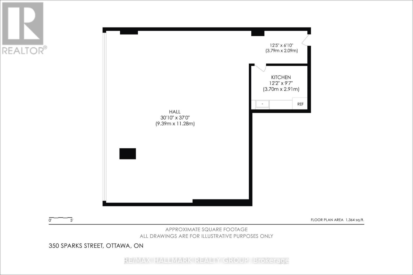
ADDITIONAL DETAILS FOUND IN PROPERTY BROCHURE LINK BELOW. SUB-LEASE: Positioned in the heart of downtown Ottawa, this 1,540 sq. ft. fully open-concept office suite at 350 Sparks Street offers immediate occupancy within a professionally managed, 12-storey building certified WiredScore Gold and BOMA BEST Silver. Located directly across from Lyon LRT and steps to Parliament Hill, the Supreme Court, and key government institutions, the space delivers exceptional transit access and institutional proximity. The building features full-time, 24/7 security as well as shared amenities, including a boardroom and fitness facility, available to tenants in accordance with management policies. Fibre-optic connectivity, a bright, efficient layout, and turnkey readiness make this suite ideally suited to professional firms seeking a refined presence within Ottawa's core business district. Net lease, additional rent is $2,323.00 per month. Lease expiry is March 31, 2029. Please contact Sarah Sleiman for all listing questions, 613-979-6161, [email protected]. Additional Listing Details link can be found under Property Summary. (id:64974)
Quick Facts
- Property Type: Offices
- Bedrooms: None
- Bathrooms: None
- Living Area: 1,540 sq ft (143.1 m²)
- Frontage: 335 ft (102.1 m)
Listing Provided by: RE/MAX HALLMARK REALTY GROUP
Board: Ottawa Real Estate Board
Data provided via CREA DDF®.
Detailed Features
Interior & Systems
- Heating: Forced air, Electric
- Cooling: Fully air conditioned
Exterior & Construction
- Water: Municipal water
Lot & Land
- Frontage: 335 ft (102.1 m)
- Features: Elevator
- Zoning: MD[2329] S352-h
Community & Neighbourhood
- Neighbourhood: 4101 - Ottawa Centre
Listing Information
Listing History
Buy/Sell/Terminated/Expired listing history for 707 - 350 SPARKS STREET, Ottawa, Ontario, K1R7S8
Location & Neighborhood
🚗 Travel times
Neighborhood Walkability
Mortgage & Cost Calculators
Similar Properties
No active comparables found in this area.
Sold Comparables
Access to sold property data requires a registered and verified account with TRREB DDF integration.
Coming SoonRented Comparables
Access to rented property data requires a registered and verified account with TRREB DDF integration.
Coming Soon














