7010 PARKWAY ROAD, Ottawa, Ontario, K4P1A7
MLS: X12900212 | Retail
$1,075,000



















Property Description
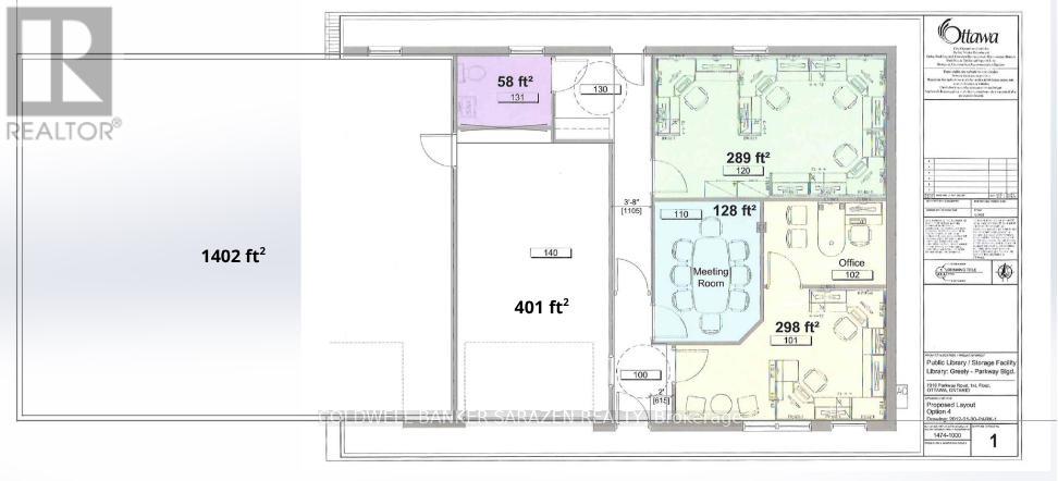
Excellent opportunity to acquire a versatile flex commercial building in the heart of Greely with great exposure on Parkway Rd. This 3,000 sf (approx) building features a large heated multi-bay/warehouse section with 13' clear height and two overhead doors, plus a secondary bay with a 9'10" ceiling and single overhead door. The finished office wing offers a separate entry, multiple offices or meeting rooms. The 22,152 sf corner lot provides high visibility on Parkway Road, with direct access to both Bank Street/Hwy 31 and Old Prescott Rd and is well suited to contractors, service industry, medical and professional uses, among others. Zoned VM - Village Mixed-Use, the property permits a broad range of commercial uses. Please do not visit the site without express consent from the listing representatives. A portion of the building is tenanted; however, vacant possession can provided on closing. Please note, automotive uses of the property may not be approved by the city. (id:64974)
Quick Facts
- Property Type: Retail
- Bedrooms: None
- Bathrooms: 2
- Living Area: 3,000 sq ft (278.7 m²)
- Parking: 12.0 spaces
- Frontage: 140 ft (42.7 m)
Costs
- Annual Taxes: $5,128.00
Listing Provided by: COLDWELL BANKER SARAZEN REALTY
Board: Ottawa Real Estate Board
Data provided via CREA DDF®.
Detailed Features
Interior & Systems
- Heating: Forced air, Natural gas
- Cooling: Fully air conditioned
Lot & Land
- Frontage: 140 ft (42.7 m)
- Zoning: Village Mixed Use
Community & Neighbourhood
- Neighbourhood: 1601 - Greely
Listing Information
Listing History
Buy/Sell/Terminated/Expired listing history for 7010 PARKWAY ROAD, Ottawa, Ontario, K4P1A7
Location & Neighborhood
🚗 Travel times
Neighborhood Walkability
Mortgage & Cost Calculators
Similar Homes
Similar Properties
No rental comparables found in this area.
Sold Comparables
Access to sold property data requires a registered and verified account with TRREB DDF integration.
Coming SoonRented Comparables
Access to rented property data requires a registered and verified account with TRREB DDF integration.
Coming Soon
























