69 ALASKAN HEIGHTS, Barrie (Holly), Ontario, L9J0H9
MLS: S12811962 | House (Freehold)
$749,900



























Property Description
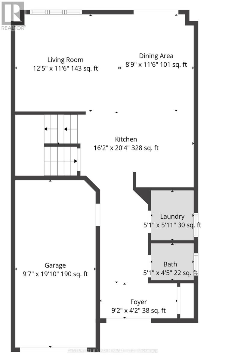
Welcome to 69 Alaskan Heights, a beautifully maintained two-story home nestled in the sought-after, family-friendly Bear Creek community of South Barrie. Offering over 1,500 square feet of thoughtfully designed living space, this home features 3 bedrooms, 3 bathrooms, ideal for growing families or those in need of versatile spaces. Step inside to discover a bright, open-concept layout that's perfect for both daily living and entertaining. The home is enhanced by premium hardwood flooring, and a striking oak staircase. The stylish kitchen is a chefs dream, boasting quartz countertops, stainless steel appliances, a gas range, modern ceramic backsplash and pot lights. Retreat to the spacious primary bedroom complete with ensuite, featuring glass shower and elegant finishes. Outside, enjoy a single-car garage, spacious backyard, and a well-kept lawn, ready for summer barbecues or kids playtime. Conveniently located within walking distance to schools, parks, and trails, and just minutes from Highway 400, the GO Train, shopping, and Barrie's vibrant waterfront, this home offers the perfect blend of comfort, style, and accessibility. Don't miss your chance to call this exceptional property home! (id:64974)
Quick Facts
- Property Type: House (Freehold)
- Bedrooms: 3 (3 above)
- Bathrooms: 3 (1 half)
- Ownership: Freehold
- Attached: No
- Parking: 3 spaces (Attached Garage, Garage)
- Frontage: 29 ft (8.8 m)
Costs
- Annual Taxes: $5,100.00
Listing Provided by: CENTURY 21 B.J. ROTH REALTY LTD.
Board: Toronto Regional Real Estate Board
Data provided via CREA DDF®.
Detailed Features
Interior & Systems
- Heating: Forced air, Natural gas
- Cooling: Central air conditioning
- Basement: Unfinished, N/A
- Appliances: Washer, Refrigerator, Dishwasher, Stove, Dryer
Exterior & Construction
- Exterior: Brick
- Sewer: Sanitary sewer
- Water: Municipal water
Lot & Land
- Frontage: 29 ft (8.8 m)
Community & Neighbourhood
- Community: School Bus
- Neighbourhood: Holly
Room Details (11 rooms)
Listing Information
Listing History
Buy/Sell/Terminated/Expired listing history for 69 ALASKAN HEIGHTS, Barrie (Holly), Ontario, L9J0H9
Location & Neighborhood
🚗 Travel times
Neighborhood Walkability
Mortgage & Cost Calculators
Nearby Homes (Within 2km)
Similar Homes
Similar Properties
No rental comparables found in this area.
Sold Comparables
Access to sold property data requires a registered and verified account with TRREB DDF integration.
Coming SoonRented Comparables
Access to rented property data requires a registered and verified account with TRREB DDF integration.
Coming Soon
























