68 PARKCHESTER ROAD, Toronto (Brookhaven-Amesbury), Ontario, M6M2S3
MLS: W12989164 | House (Freehold)
$899,000







































Property Description
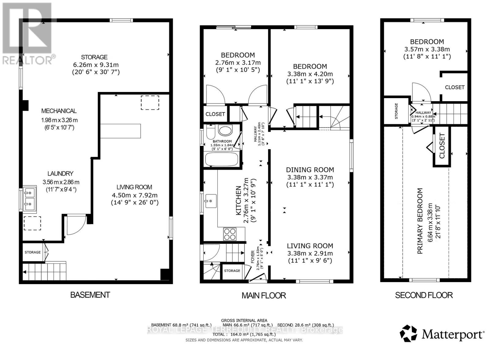
Beautifully Well Kept and Updated Detached 4 Bedroom Toronto Home on a Premium 55x125 Foot Lot in a Gorgeous Enclave of Custom Built Luxury Homes! Move In Ready with a Main Floor Open Concept Spacious Living and Dining Room, Eat In Family Sized Kitchen with South Facing Window, Four Piece Main Floor Bathroom and Two Bedrooms with Walk Out to Large Deck! Upper Level Has a Stunningly Massive Primary Bedroom and Another Large Bedroom! The Lower Level Has a Separate Side Entrance and a Rec Room with Dry Bar and Panelled Walls and Excellent Potential With Spacious Storage Room! Excellent Updates Including Double Car Garage, Large Deck at Rear, 200amp Electrical Service and High Efficiency Gas Furnace with Central Air! Beautiful Fenced Backyard with Pool Sized Dimensions! Fantastic Neighbours in a Great Community of Quality Homeowners and an Enclave of Many Custom Homes! This Fantastic Location Offers Easy Access to TTC, Eglinton LRT, Schools, Shopping, Highway Access and Much More! (id:64974)
Quick Facts
- Property Type: House (Freehold)
- Bedrooms: 4 (4 above)
- Bathrooms: 1
- Ownership: Freehold
- Attached: No
- Parking: 6.0 spaces (Attached Garage, Garage)
- Frontage: 55 ft (16.8 m)
Costs
- Annual Taxes: $4,253.05 (2025)
Listing Provided by: ROYAL LEPAGE TERREQUITY REALTY
Board: Toronto Regional Real Estate Board
Data provided via CREA DDF®.
Detailed Features
Interior & Systems
- Heating: Forced air, Natural gas
- Cooling: Central air conditioning
- Basement: Partially finished, Separate entrance, N/A, N/A
- Appliances: Washer, Refrigerator, Dishwasher, Stove, Garage door opener, Garage door opener remote(s)
- Flooring: Hardwood, Carpeted, Ceramic
Exterior & Construction
- Exterior: Brick
- Foundation: Block
- Fencing: Fenced yard
- Sewer: Sanitary sewer
- Water: Municipal water
Lot & Land
- Frontage: 55 ft (16.8 m)
- Features: Irregular lot size, Flat site, Conservation/green belt
- View: View
- Zoning: Single Family Residential
Community & Neighbourhood
- Neighbourhood: Brookhaven-Amesbury
Room Details (11 rooms)
Listing Information
Listing History
MLS listing activity for 68 PARKCHESTER ROAD, Toronto (Brookhaven-Amesbury), Ontario, M6M2S3 — dates reflect when changes were recorded in the DDF
🚗 Travel times
Neighborhood Walkability
Mortgage & Cost Calculators
Nearby Homes ?Nearby Homes — Search CriteriaSearch Radius1 kmPrice Range±5%Match BedroomsYesMatch BathroomsYes

1811 - 10 MARTHA EATON WAY, Toronto (Brookhaven-Amesbury)
Condo - Apartment$539,900
$1,478/yr taxListing Courtesy of KELLER WILLIAMS REFERRED URBAN REALTY

PH24-2414 - 10 MARTHA EATON WAY, Toronto (Brookhaven-Amesbury)
Condo - Apartment$2,500/mo
Listing Courtesy of HOMELIFE REGIONAL REALTY LTD.

1806 - 10 MARTHA EATON WAY S, Toronto (Brookhaven-Amesbury)
Condo - Apartment$475,000
$1,229/yr taxListing Courtesy of RIGHT AT HOME REALTY

141 HARDING AVENUE, Toronto (Brookhaven-Amesbury)
House$949,900
$4,283/yr taxListing Courtesy of ROYAL LEPAGE TERREQUITY REALTY

304 - 101 BROOKHAVEN DRIVE, Toronto (Brookhaven-Amesbury)
Condo - Apartment$2,300/mo
Listing Courtesy of SUTTON GROUP - SUMMIT REALTY INC.

LOWER LEVEL - 32 HARROW DRIVE, Toronto (Brookhaven-Amesbury)
House$1,800/mo
Listing Courtesy of RE/MAX CONDOS PLUS CORPORATION

12 THURODALE AVENUE, Toronto (Brookhaven-Amesbury)
House$978,800
$3,895/yr taxListing Courtesy of REALTY ONE GROUP REVEAL

117 HARDING AVENUE, Toronto (Brookhaven-Amesbury)
House$1,200,000
$4,864/yr taxListing Courtesy of Royal Lepage Real Estate Associates

95 GEORGE ANDERSON DRIVE, Toronto (Brookhaven-Amesbury)
House$1,498,000
$5,558/yr taxListing Courtesy of EXP REALTY

UPPER - 89 CHISWICK AVENUE, Toronto (Brookhaven-Amesbury)
House$3,400/mo
Listing Courtesy of HOMELIFE LANDMARK REALTY INC.

55 RENFIELD STREET, Toronto (Brookhaven-Amesbury)
House$1,459,000
Listing Courtesy of RE/MAX EXCELLENCE REAL ESTATE

72B RENFIELD STREET, Toronto (Brookhaven-Amesbury)
House$1,499,999
$7,812/yr taxListing Courtesy of HARVEY KALLES REAL ESTATE LTD.

18 DE MARCO BOULEVARD, Toronto (Rustic)
House$999,999
$4,796/yr taxListing Courtesy of RE/MAX CROSSROADS REALTY INC.

18 DEMARCO BOULEVARD, Toronto (Rustic)
Single Family$3,850/mo
Listing Courtesy of RE/MAX CROSSROADS REALTY INC.

ROOM 1 - 1762A LAWRENCE AVENUE W, Toronto (Rustic)
Condo - Row / Townhouse$950/mo
Listing Courtesy of ROYAL LEPAGE CERTIFIED REALTY
Similar Homes ?Similar Homes — Search CriteriaSearch Radius5 kmPrice Range±5%Match Home TypeYesMatch BedroomsYes

38 ESMOND CRESCENT, Toronto (Elms-Old Rexdale)
House$899,900
$3,567/yr taxListing Courtesy of HIGHLAND REALTY

73 BUTTONWOOD AVENUE, Toronto (Mount Dennis)
House$899,901
$4,607/yr taxListing Courtesy of ROYAL LEPAGE SIGNATURE REALTY

131 CHARLTON SETTLEMENT AVENUE, Toronto (Mount Dennis)
Condo - Row / Townhouse$879,900
$2,979/yr taxListing Courtesy of RE/MAX REALTY SERVICES INC.

314 KANE AVENUE, Toronto (Keelesdale-Eglinton West)
House$879,000
$3,966/yr taxListing Courtesy of GOLDENWAY REAL ESTATE LTD.

178 PRESCOTT AVENUE, Toronto (Weston-Pellam Park)
House$879,000
$4,411/yr taxListing Courtesy of SAGE REAL ESTATE LIMITED

32 VICTORIA BOULEVARD, Toronto (Mount Dennis)
House$928,800
$3,635/yr taxListing Courtesy of EXP REALTY

13 CAROLINE CARPENTER GROVE, Toronto (Downsview-Roding-CFB)
Row / Townhouse$930,000
$4,276/yr taxListing Courtesy of RE/MAX ULTIMATE REALTY INC.

119 DALRYMPLE DRIVE, Toronto (Rockcliffe-Smythe)
House$943,000
$3,959/yr taxListing Courtesy of REMAX YOUR COMMUNITY REALTY
Similar Properties ?Active Comparables — Search CriteriaSearch Radius2 kmPrice Range±5%Match Home TypeYesMatch BedroomsYes

73 BUTTONWOOD AVENUE, Toronto (Mount Dennis)
House$899,901
$4,607/yr taxListing Courtesy of ROYAL LEPAGE SIGNATURE REALTY

131 CHARLTON SETTLEMENT AVENUE, Toronto (Mount Dennis)
Condo - Row / Townhouse$879,900
$2,979/yr taxListing Courtesy of RE/MAX REALTY SERVICES INC.

314 KANE AVENUE, Toronto (Keelesdale-Eglinton West)
House$879,000
$3,966/yr taxListing Courtesy of GOLDENWAY REAL ESTATE LTD.

32 VICTORIA BOULEVARD, Toronto (Mount Dennis)
House$928,800
$3,635/yr taxListing Courtesy of EXP REALTY
Sold Comparables
Access to sold property data requires a registered and verified account with TRREB DDF integration.
Coming SoonRented Comparables
Access to rented property data requires a registered and verified account with TRREB DDF integration.
Coming SoonBook a Viewing
68 PARKCHESTER ROAD, Toronto (Brookhaven-Amesbury), Ontario, M6M2S3

