68 LUCAS ROAD, St. Thomas, Ontario, N5R0M2
MLS: X12778804 | House (Freehold)
$964,900



Property Description
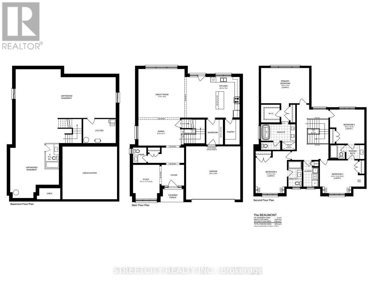
TO BE BUILT - The Beaumont by Mapleton Homes including a LIMITED-TIME $35,000 BUILDER INCENTIVE. Take advantage of this amazing incentive - included on this listing or it can be applied to any other to-be-built property Mapleton Homes has to offer. Exceptional value meets exceptional design. Introducing The Beaumont Mapleton's latest show stopping masterpiece, where modern elegance blends seamlessly with everyday comfort. Perfectly positioned on an oversized lot backing onto mature trees, this meticulously designed 3,092 sq. ft. home offers the ideal mix of space, style, and functionality. Featuring 4 spacious bedrooms and 3.5 beautifully appointed bathrooms, the open-concept layout is ideal for both growing families and effortless entertaining. The heart of the home showcases premium custom cabinetry, large German-engineered tilt-and-turn windows, and upscale finishes that elevate every room. A gourmet chef's kitchen flows into expansive living and dining spaces, while a bright main-floor study/office provides the perfect work-from-home retreat. Second-floor laundry adds practical everyday convenience.Situated in the highly desirable Manor Wood Subdivision, residents enjoy close proximity to parks, walking trails, top-rated schools, shopping, dining, and recreation - offering the perfect balance of tranquility and accessibility. Build your dream home with confidence. With these amazing Builder Incentives, plus multiple customizable plans and pricing options, there has never been a better opportunity to secure a Mapleton Home. Book your private consultation today and lock in the savings (id:64974)
Quick Facts
- Property Type: House (Freehold)
- Bedrooms: 4 (4 above)
- Bathrooms: 4 (1 half)
- Ownership: Freehold
- Attached: No
- Parking: 4 spaces (Attached Garage, Garage)
- Frontage: 39 ft (11.8 m)
Listing Provided by: STREETCITY REALTY INC.
Board: London and St. Thomas Association of REALTORS®
Data provided via CREA DDF®.
Detailed Features
Interior & Systems
- Heating: Forced air, Natural gas
- Cooling: Central air conditioning
- Basement: Unfinished, Full, N/A
- Appliances: Garage door opener remote(s)
- Security: Smoke Detectors
Exterior & Construction
- Exterior: Stone, Brick Facing
- Foundation: Poured Concrete
- Sewer: Sanitary sewer
- Water: Municipal water
Lot & Land
- Frontage: 39 ft (11.8 m)
- Features: Irregular lot size, Flat site, Sump Pump
- Zoning: R3-42
Community & Neighbourhood
- Neighbourhood: St. Thomas
Room Details (8 rooms)
Listing Information
Listing History
Buy/Sell/Terminated/Expired listing history for 68 LUCAS ROAD, St. Thomas, Ontario, N5R0M2
Location & Neighborhood
🚗 Travel times
Neighborhood Walkability
Mortgage & Cost Calculators
Nearby Homes (Within 2km)
Similar Homes
Similar Properties
No rental comparables found in this area.
Sold Comparables
Access to sold property data requires a registered and verified account with TRREB DDF integration.
Coming SoonRented Comparables
Access to rented property data requires a registered and verified account with TRREB DDF integration.
Coming Soon
























