68 HAROLD COURT, Hamilton (Ainslie Wood), Ontario, L8S2R9
MLS: X12868680 | Duplex
$750,000













































Property Description
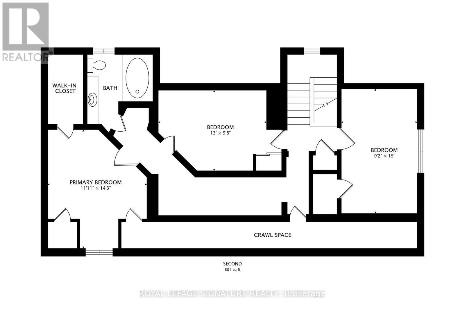
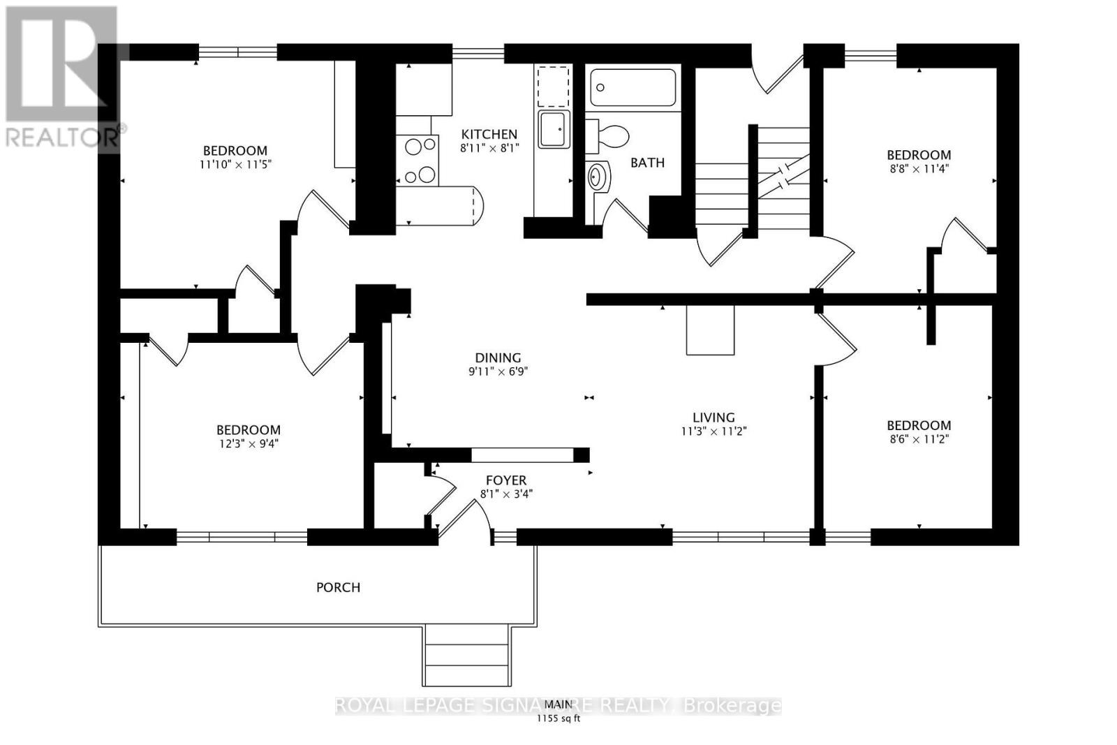
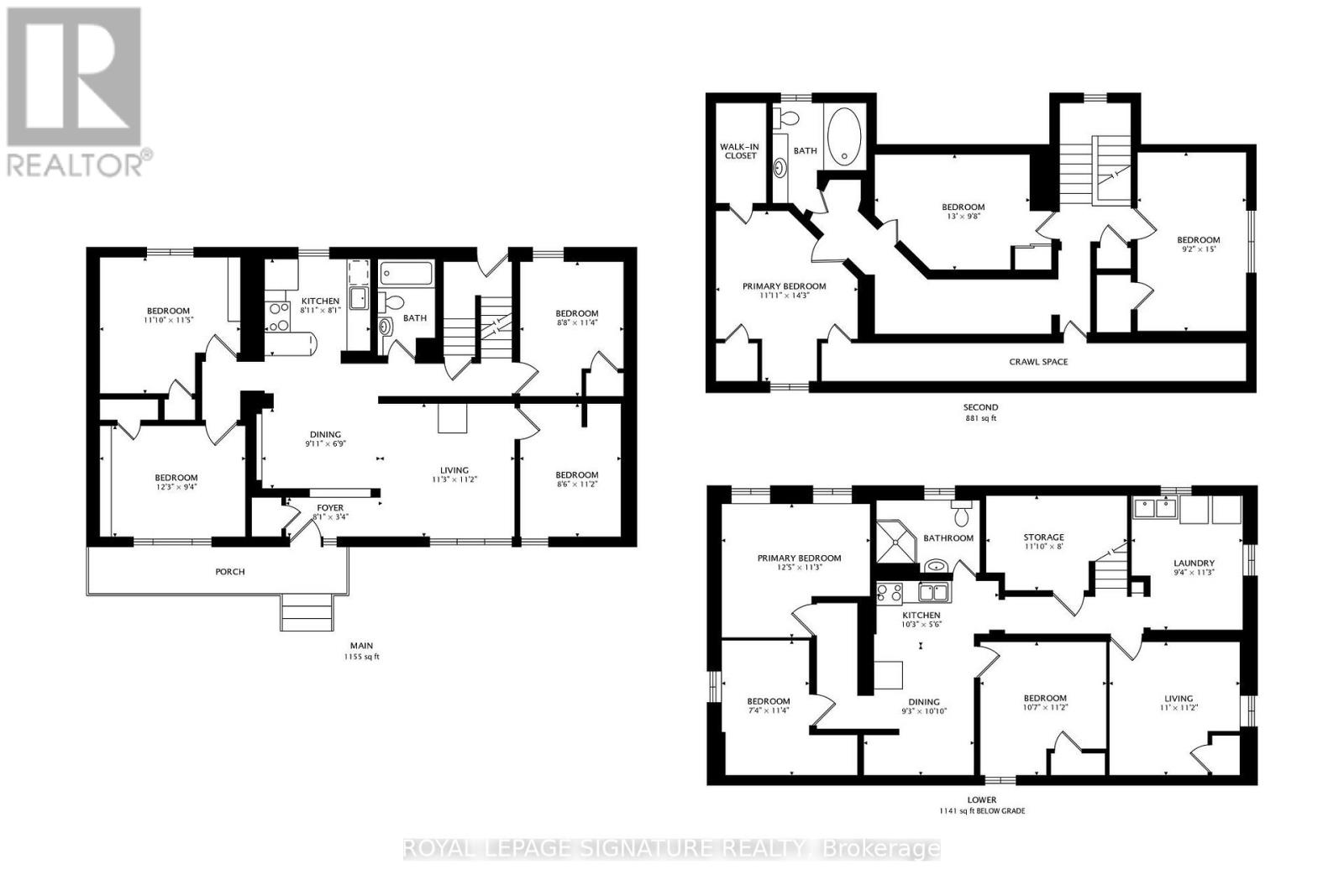
Exceptional Opportunity - Spacious Family Home or Prime Investment!This versatile property truly has it all! Nestled on a quiet court in a desirable neighbourhoodand backing onto peaceful green space, this home features hardwood floors and a flexible layoutacross three levels. With 11 bedrooms, 3 full bathrooms, and 2 kitchens, it's perfect as alarge family residence or an outstanding investment property near McMaster University. (id:64974)
Quick Facts
- Property Type: Duplex
- Bedrooms: 10 (7 above, 3 below)
- Bathrooms: 6
- Attached: Yes
- Parking: 4 spaces (No Garage)
- Frontage: 38 ft (11.6 m)
Costs
- Annual Taxes: $6,100.00
Listing Provided by: ROYAL LEPAGE SIGNATURE REALTY
Board: Toronto Regional Real Estate Board
Data provided via CREA DDF®.
Detailed Features
Interior & Systems
- Heating: Forced air, Not known, Natural gas, Coil Fan
- Cooling: Central air conditioning
- Basement: Finished, N/A
- Utilities: Sewer, Electricity
Exterior & Construction
- Exterior: Brick
- Foundation: Concrete
- Sewer: Sanitary sewer
- Water: Municipal water
Lot & Land
- Frontage: 38 ft (11.6 m)
- Features: Cul-de-sac
Community & Neighbourhood
- Neighbourhood: Ainslie Wood
Room Details (11 rooms)
Listing Information
Listing History
Buy/Sell/Terminated/Expired listing history for 68 HAROLD COURT, Hamilton (Ainslie Wood), Ontario, L8S2R9
Location & Neighborhood
🚗 Travel times
Neighborhood Walkability
Mortgage & Cost Calculators
Nearby Homes (Within 2km)
Similar Homes
Similar Properties
No rental comparables found in this area.
Sold Comparables
Access to sold property data requires a registered and verified account with TRREB DDF integration.
Coming SoonRented Comparables
Access to rented property data requires a registered and verified account with TRREB DDF integration.
Coming Soon






























