66 WILLIAM STREET N, Kawartha Lakes (Lindsay), Ontario, K9V4A2
MLS: X12755538 | Retail
$1.00 / monthly





Property Description
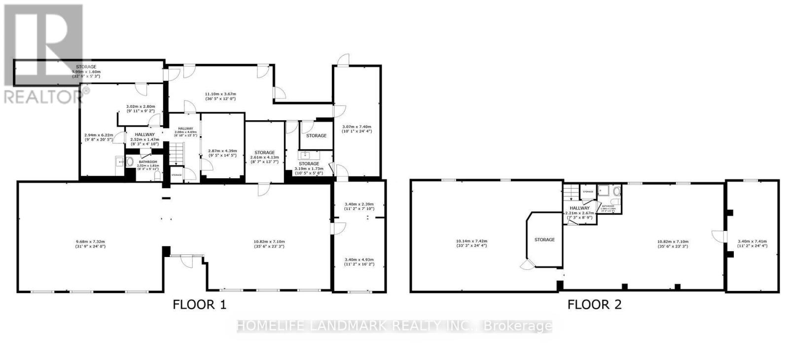
Fantastic downtown 5000 square foot location in Lindsay with plenty of onsite parking. Many potential uses such as office space, retail store, fitness, daycare & much more! Great exposure on a large busy corner site. Main floor approximately 3000 square feet with two washrooms plus 2000 square foot second level with washroom. Direct access off William St N or off North parking lot through common shared hallway. South parking lot could be used for parking as well. (id:64974)
Quick Facts
- Property Type: Retail
- Bedrooms: None
- Bathrooms: None
- Living Area: 5,000 sq ft (464.5 m²)
- Frontage: 179 ft (54.6 m)
Listing Provided by: HOMELIFE LANDMARK REALTY INC.
Board: Toronto Regional Real Estate Board
Data provided via CREA DDF®.
Detailed Features
Interior & Systems
- Heating: Forced air, Natural gas
- Cooling: Fully air conditioned
Exterior & Construction
- Water: Municipal water
Lot & Land
- Frontage: 179 ft (54.6 m)
- Zoning: CC (Central Commercial)
Community & Neighbourhood
- Neighbourhood: Lindsay
Listing Information
Listing History
Buy/Sell/Terminated/Expired listing history for 66 WILLIAM STREET N, Kawartha Lakes (Lindsay), Ontario, K9V4A2
Location & Neighborhood
🚗 Travel times
Neighborhood Walkability
Mortgage & Cost Calculators
Similar Properties
No active comparables found in this area.
Sold Comparables
Access to sold property data requires a registered and verified account with TRREB DDF integration.
Coming SoonRented Comparables
Access to rented property data requires a registered and verified account with TRREB DDF integration.
Coming Soon














