66 ELGIN AVENUE W, Renfrew, Ontario, K7V3T7
MLS: X12627654 | Vacant Land
$649,900





Property Description
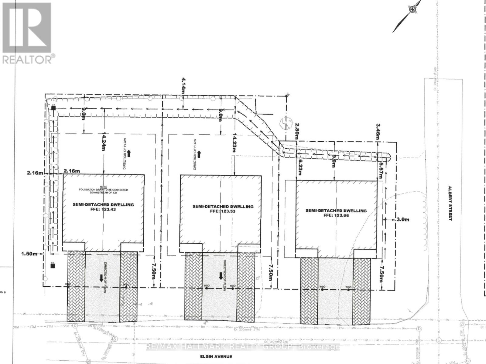
NEW DEVELOPMENT OPPORTUNITY!! Site Plan for 6 SEMI-DETACHED Bungalow Homes with each home designed to include a lower level Secondary Dwelling! A total of 12 DWELLINGS on 6 LOTS. Approx. 255' of street frontage! Located blocks from the Hospital, River, Convenience Store, Tim Hortons, Wendy's and the main Street! Sales includes the Architect Plans and Site Studies. Gas, Hydro, Water and Sewer at the street. Currently zoned CF and requires a zoning Bi-Law amendment to Residential. Newer Back Fence and cleared LOT! Do your due diligence, and see the opportunities. CALL TODAY!! (id:64974)
Quick Facts
- Property Type: Vacant Land
- Bedrooms: None
- Bathrooms: 0
- Frontage: 255 ft (77.8 m)
Costs
- Annual Taxes: $428.00
Listing Provided by: RE/MAX HALLMARK REALTY GROUP
Board: Ottawa Real Estate Board
Data provided via CREA DDF®.
Detailed Features
Interior & Systems
- Heating: Not known, Unknown
- Cooling: Unknown
- Basement: Unknown, Unknown, Unknown
- Utilities: Sewer, Electricity, Cable
Exterior & Construction
- Water: Municipal water
Lot & Land
- Frontage: 255 ft (77.8 m)
- Zoning: CF
Community & Neighbourhood
- Neighbourhood: 540 - Renfrew
Listing Information
Listing History
Buy/Sell/Terminated/Expired listing history for 66 ELGIN AVENUE W, Renfrew, Ontario, K7V3T7
Location & Neighborhood
🚗 Travel times
Neighborhood Walkability
Mortgage & Cost Calculators
Nearby Homes (Within 2km)
Similar Homes
Similar Properties
No rental comparables found in this area.
Sold Comparables
Access to sold property data requires a registered and verified account with TRREB DDF integration.
Coming SoonRented Comparables
Access to rented property data requires a registered and verified account with TRREB DDF integration.
Coming Soon

























