65 DONALD STREET, Barrie (Queen's Park), Ontario, L4N1E5
MLS: S12872928 | House (Freehold)
$614,900



















































Property Description
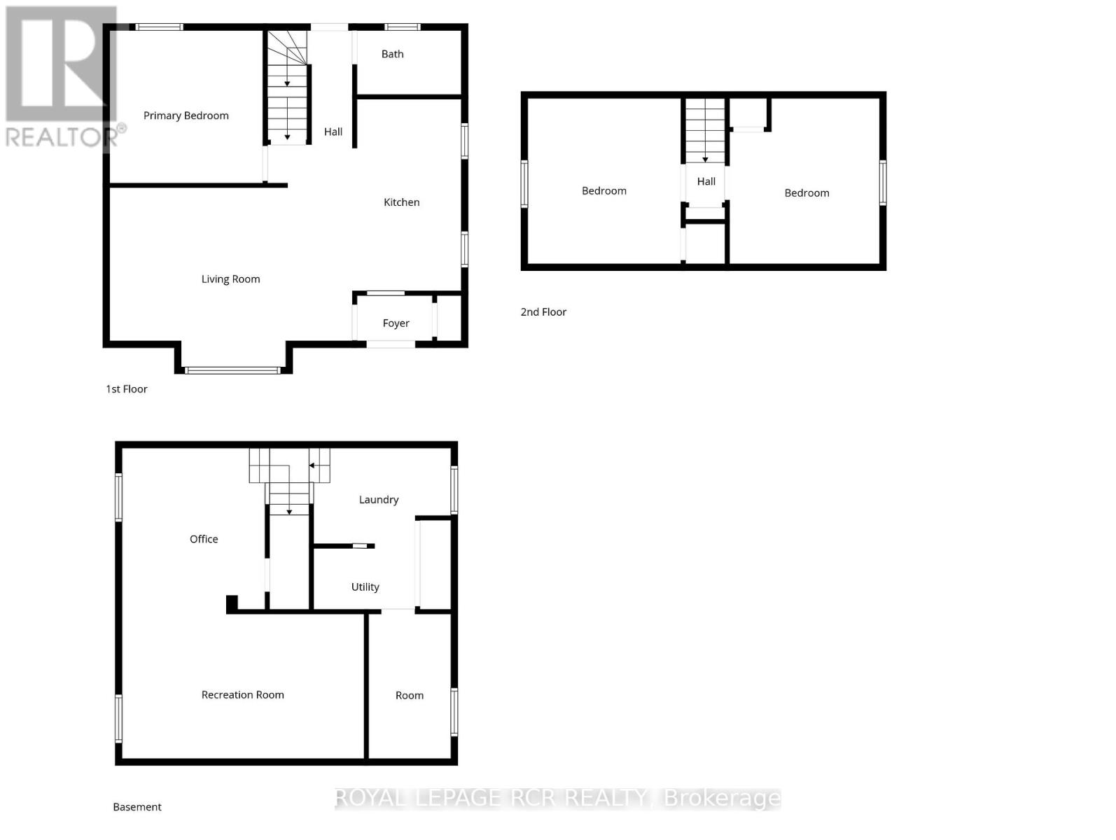
Welcome to this adorable 1.5-storey home full of character and thoughtful updates. Built in 1950, this well-maintained property features beautiful original hardwood floors and a functional layout that suits a variety of buyers. The main floor offers a primary bedroom and convenient 3-piece bathroom, ideal for those seeking main floor living. Upstairs you'll find two additional bedrooms, perfect for kids, guests, or a home office. The finished basement adds extra living space with a cozy family room, office area, laundry, and plenty of storage. Step outside to enjoy the covered back porch overlooking a fully fenced yard, offering a great space to relax or entertain. A detached single-car garage provides additional storage and parking. Important updates have already been completed, including roof (approx. 8 years), windows & doors, furnace, central air all 2010. Plus, a 200-amp breaker panel, giving peace of mind to the next owner. Conveniently located within walking distance to downtown Barrie, parks, and shopping. Available for quick possession, making this a fantastic opportunity for first-time buyers, downsizers, or investors. (id:64974)
Quick Facts
- Property Type: House (Freehold)
- Bedrooms: 3 (3 above)
- Bathrooms: 1
- Ownership: Freehold
- Attached: No
- Parking: 3 spaces (Detached Garage, Garage)
- Frontage: 50 ft (15.2 m)
Costs
- Annual Taxes: $4,263.50
Listing Provided by: ROYAL LEPAGE RCR REALTY
Board: Toronto Regional Real Estate Board
Data provided via CREA DDF®.
Detailed Features
Interior & Systems
- Heating: Forced air, Natural gas
- Cooling: Central air conditioning
- Basement: Partially finished, Full
- Appliances: Washer, Refrigerator, Stove, Dryer, Microwave, Garage door opener, Water Heater
Exterior & Construction
- Exterior: Vinyl siding
- Foundation: Block
- Sewer: Sanitary sewer
- Water: Municipal water
Lot & Land
- Frontage: 50 ft (15.2 m)
- Features: Sump Pump
Community & Neighbourhood
- Neighbourhood: Queen's Park
Room Details (9 rooms)
Listing Information
Listing History
Buy/Sell/Terminated/Expired listing history for 65 DONALD STREET, Barrie (Queen's Park), Ontario, L4N1E5
Location & Neighborhood
🚗 Travel times
Neighborhood Walkability
Mortgage & Cost Calculators
Nearby Homes (Within 2km)
Similar Homes
Similar Properties
No rental comparables found in this area.
Sold Comparables
Access to sold property data requires a registered and verified account with TRREB DDF integration.
Coming SoonRented Comparables
Access to rented property data requires a registered and verified account with TRREB DDF integration.
Coming Soon
























