64 FARNINGHAM CRESCENT, Toronto (Princess-Rosethorn), Ontario, M9B3B6
MLS: W12964778 | House (Freehold)
$1,925,000































Property Description
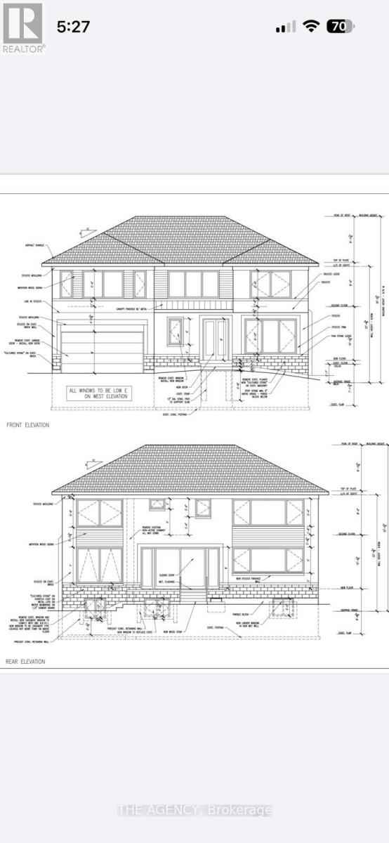
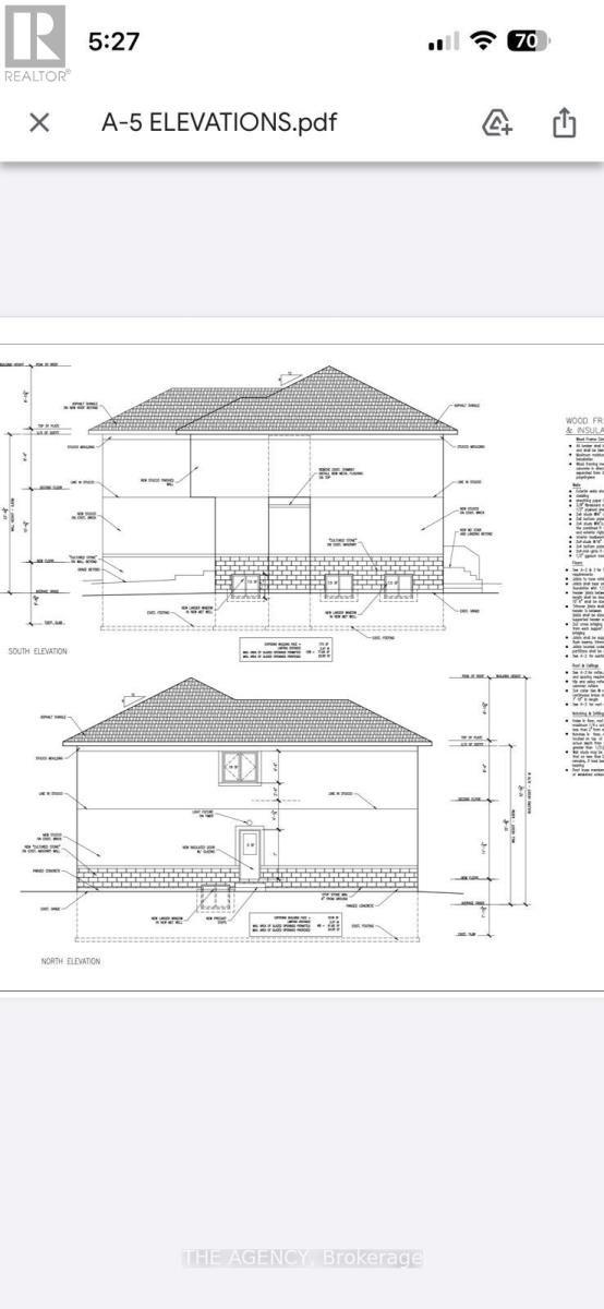
Welcome to 64 Farningham Crescent, an Exceptional Opportunity to Own a Beautifully Maintained 3+2 Bedroom Bungalow on a Very Good Quiet Family Friendly Street in a Highly Desirable Neighborhood. This Move in Ready Home Offers a Bright and Spacious Layout, Featuring; a Welcoming Foyer, Sun-filled Open-concept Living and Dining Area, and a Functional Kitchen Designed for Everyday Comfort and Convenience.the Main Floor Showcases Generous Principal Rooms, Ideal for Both Relaxing and Entertaining, While the Fully Finished Basement Apartment With Additional Bedrooms Provides Incredible Flexibility perfect for Extended Family, in-law Suite Use, or Generating Strong Rental Income to Help Offset Your Mortgage.Situated in a Prime Location Surrounded by Parks, Top rated Schools, and Everyday Amenities, This Home is Just Steps to Public Transit, Minutes to Major Highways, and Offers Quick and Easy Access to the Airport making It Ideal for Commuters and Growing Families Alike.what Truly Sets This Property Apart is Its Rare Dual Appeal-perfect for End Users Looking to Move in and Enjoy, While Also Presenting an Outstanding Opportunity for Builders and Investors. All Permits and Architectural Drawings Are Already Approved and Ready, Allowing You to Build Your Dream Custom Home Without Delays. Live in, Rent Out, or Build-this Property Offers Unmatched Versatility and Future Upside.a Rare Offering in a Sought-after Location-don't Miss This Exceptional Opportunity. (id:64974)
Quick Facts
- Property Type: House (Freehold)
- Style: Bungalow
- Bedrooms: 5 (3 above, 2 below)
- Bathrooms: 3 (1 half)
- Ownership: Freehold
- Attached: No
- Fireplaces: Yes
- Parking: 8.0 spaces (Garage)
- Frontage: 51 ft (15.5 m)
Costs
- Annual Taxes: $7,126.00 (2025)
Listing Provided by: THE AGENCY
Board: Toronto Regional Real Estate Board
Data provided via CREA DDF®.
Detailed Features
Interior & Systems
- Heating: Forced air, Natural gas
- Cooling: Central air conditioning
- Basement: Finished, Apartment in basement, Separate entrance, N/A, N/A, N/A
Exterior & Construction
- Style: Bungalow
- Exterior: Brick
- Foundation: Block
- Sewer: Sanitary sewer
- Water: Municipal water
Lot & Land
- Frontage: 51 ft (15.5 m)
Community & Neighbourhood
- Neighbourhood: Princess-Rosethorn
Listing Information
Listing History
MLS listing activity for 64 FARNINGHAM CRESCENT, Toronto (Princess-Rosethorn), Ontario, M9B3B6 — dates reflect when changes were recorded in the DDF
🚗 Travel times
Neighborhood Walkability
Mortgage & Cost Calculators
Nearby Homes ?Nearby Homes — Search CriteriaSearch Radius1 kmPrice Range±5%Match BedroomsYesMatch BathroomsYes

MAIN - 64 FARNINGHAM CRESCENT, Toronto (Princess-Rosethorn)
House$3,500/mo
Listing Courtesy of THE AGENCY

BASEMENT - 64 FARNINGHAM CRESCENT, Toronto (Princess-Rosethorn)
Other$2,500/mo
Listing Courtesy of THE AGENCY

64 FARNINGHAM CRESCENT, Toronto (Princess-Rosethorn)
House$5,500/mo
Listing Courtesy of THE AGENCY

58 FARNINGHAM CRESCENT, Toronto (Princess-Rosethorn)
House$1,999,999
$11,318/yr taxListing Courtesy of PROPERTY.CA INC.

58 FARNINGHAM CRESCENT, Toronto (Princess-Rosethorn)
House$2,699,000
$11,318/yr taxListing Courtesy of PROPERTY.CA INC.

31 ASHWOOD CRESCENT, Toronto (Princess-Rosethorn)
House$2,849,999
$10,286/yr taxListing Courtesy of SAGE REAL ESTATE LIMITED

159 PRINCESS MARGARET BOULEVARD, Toronto (Princess-Rosethorn)
House$1,299,900
$5,791/yr taxListing Courtesy of KELLER WILLIAMS ENERGY REAL ESTATE

466 THE KINGSWAY, Toronto (Princess-Rosethorn)
House$4,999,000
$20,775/yr taxListing Courtesy of RE/MAX PROFESSIONALS INC.

35 CHESHIRE DRIVE, Toronto (Princess-Rosethorn)
House$1,450,000
$5,579/yr taxListing Courtesy of SOLTANIAN REAL ESTATE INC.

4 NASHLAND AVENUE, Toronto (Princess-Rosethorn)
House$2,200/mo
Listing Courtesy of ROYAL LEPAGE REALTY PLUS

460 MARTIN GROVE ROAD, Toronto (Eringate-Centennial-West Deane)
House$1,199,000
$4,482/yr taxListing Courtesy of CMI REAL ESTATE INC.

88 PRINCESS ANNE CRESCENT, Toronto (Princess-Rosethorn)
House$5,900/mo
Listing Courtesy of LANDLORD REALTY INC.

22 KIPLING GROVE COURT, Toronto (Princess-Rosethorn)
House$1,899,000
$13,362/yr taxListing Courtesy of RE/MAX EXPERTS

BSMT - 44 PRINCESS MARGARET BOULEVARD, Toronto (Princess-Rosethorn)
House$2,200/mo
Listing Courtesy of RE/MAX PROFESSIONALS INC.

66 PONY FARM DRIVE, Toronto (Willowridge-Martingrove-Richview)
Row / Townhouse$1,199,000
$5,256/yr taxListing Courtesy of SAGE REAL ESTATE LIMITED
Similar Homes ?Similar Homes — Search CriteriaSearch Radius5 kmPrice Range±5%Match Home TypeYesMatch BedroomsYes

22 KIPLING GROVE COURT, Toronto (Princess-Rosethorn)
House$1,899,000
$13,362/yr taxListing Courtesy of RE/MAX EXPERTS

32 BRADFIELD AVENUE W, Toronto (Islington-City Centre West)
House$1,995,000
$8,438/yr taxListing Courtesy of RARE REAL ESTATE

50 THORNHILL AVENUE, Toronto (Lambton Baby Point)
House$1,998,000
$8,340/yr taxListing Courtesy of SUTTON GROUP-ASSOCIATES REALTY INC.

324 WENDY LANE, Oakville (WO West)
House$1,925,000
$7,336/yr taxListing Courtesy of CITYSCAPE REAL ESTATE LTD.

209 NOTTINGHAM DRIVE, Oakville (CP College Park)
House$1,925,000
$6,677/yr taxListing Courtesy of EXP REALTY

71 MILL Street, Milton
House$1,925,000
$5,576/yr taxListing Courtesy of RE/MAX Real Estate Centre Inc.

1201 ABBEY ROAD, Pickering (Liverpool)
House$1,925,000
$13,501/yr taxListing Courtesy of UPPERSIDE REAL ESTATE LIMITED

976 GARDEN Lane, Hamilton
House$1,925,000
$7,922/yr taxListing Courtesy of Royal LePage Burloak Real Estate Services

71 MILL STREET, Milton (OM Old Milton)
House$1,925,000
$5,576/yr taxListing Courtesy of RE/MAX REAL ESTATE CENTRE INC.

12282 EIGHTH LINE, Halton Hills (Rural Halton Hills)
House$1,924,900
$7,185/yr taxListing Courtesy of Coldwell Banker Elevate Realty

423 THRESHING MILL BOULEVARD, Oakville (JM Joshua Meadows)
House$1,928,000
$9,390/yr taxListing Courtesy of BAY STREET GROUP INC.

34 GREEN CEDAR DRIVE N, Northern Bruce Peninsula
House$1,929,000
$9,153/yr taxListing Courtesy of LUXE HOME TOWN REALTY INC.

892 TEGAL PLACE, Newmarket (Stonehaven-Wyndham)
House$1,930,000
$10,726/yr taxListing Courtesy of Avenue Group Realty Brokerage Inc.

494 CHARTWELL ROAD, Oakville (OO Old Oakville)
House$1,920,000
$9,136/yr taxListing Courtesy of Re/Max Hallmark Realty Ltd.

3174 + 3170 SPRING LANE E, Selwyn
House$1,919,900
$10,267/yr taxListing Courtesy of BALL REAL ESTATE INC.
Similar Properties ?Active Comparables — Search CriteriaSearch Radius2 kmPrice Range±5%Match Home TypeYesMatch BedroomsYes
Sold Comparables
Access to sold property data requires a registered and verified account with TRREB DDF integration.
Coming SoonRented Comparables
Access to rented property data requires a registered and verified account with TRREB DDF integration.
Coming SoonBook a Viewing
64 FARNINGHAM CRESCENT, Toronto (Princess-Rosethorn), Ontario, M9B3B6

