636 QUEENS AVENUE, London East (East G), Ontario, N5W3H1
MLS: X12910148 | Duplex
$524,900





































Property Description
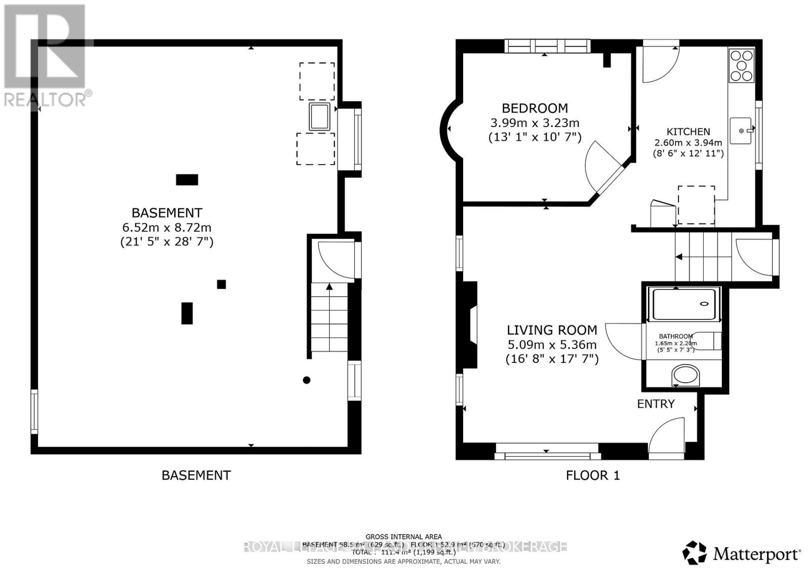
Charming Duplex in the Heart of Old East Village! This beautifully updated and well-maintained duplex is the perfect opportunity for investors or owner-occupiers wanting additional income. The main floor unit features a spacious 1-bedroom layout, including a generous updated eat-in kitchen, 3-piece bathroom, living room with fireplace, basement access for storage and rear patio with space for a BBQ and outdoor enjoyment. The upper unit boasts 2 bedrooms, bright living/dining room, 3-piece bathroom, deck for outdoor enjoyment and a versatile loft space ideal for a home office, studio, or additional living area. Each unit has its own private entrance, in-suite laundry and separate hydro meters for added convenience and flexibility. A detached garage with a third hydro meter offers extra storage or a workshop space. With ample parking and a prime location in one of Londons most vibrant neighbourhoods, this property combines character, functionality, and investment value. Don't miss your chance to own a turnkey property close to transit, downtown, shopping, restaurants and more! (id:64974)
Quick Facts
- Property Type: Duplex
- Bedrooms: 3 (3 above)
- Bathrooms: 2
- Attached: Yes
- Fireplaces: Yes
- Parking: 7.0 spaces (Detached Garage, Garage)
- Frontage: 40 ft (12.2 m)
Costs
- Annual Taxes: $4,191.00
Listing Provided by: ROYAL LEPAGE TRILAND PREMIER BROKERAGE
Board: London and St. Thomas Association of REALTORS®
Data provided via CREA DDF®.
Detailed Features
Interior & Systems
- Heating: Forced air, Natural gas
- Cooling: Central air conditioning
- Basement: Unfinished, Full
- Appliances: Dishwasher, Dryer, Two stoves, Two Washers, Two Refrigerators
Exterior & Construction
- Exterior: Brick
- Sewer: Sanitary sewer
- Water: Municipal water
Lot & Land
- Frontage: 40 ft (12.2 m)
- Zoning: 0C3 R5-
Community & Neighbourhood
- Neighbourhood: East G
Listing Information
Listing History
MLS listing activity for 636 QUEENS AVENUE, London East (East G), Ontario, N5W3H1 — dates reflect when changes were recorded in the DDF
🚗 Travel times
Neighborhood Walkability
Mortgage & Cost Calculators
Nearby Homes ?Nearby Homes — Search CriteriaSearch Radius1 kmPrice Range±5%Match BedroomsYesMatch BathroomsYes

62 PALACE STREET, London East (East F)
House$549,900
$3,906/yr taxListing Courtesy of THE REALTY FIRM INC.

91 CARTWRIGHT STREET, London East (East F)
House$525,000
$3,269/yr taxListing Courtesy of SAKER REALTY CORPORATION

603 QUEENS AVENUE, London East (East F)
Multi-Family$799,900
$5,582/yr taxListing Courtesy of PLATINUM KEY REALTY INC.

532-538 DUNDAS STREET, London East (East F)
Multi-Family$1,899,900
$13,541/yr taxListing Courtesy of THRIVE REALTY GROUP INC.

552 ADELAIDE STREET N, London East (East G)
Duplex$639,000
$2,849/yr taxListing Courtesy of SUTTON GROUP - SELECT REALTY

532-538 DUNDAS STREET, London East (East F)
Other$1,899,900
$13,541/yr taxListing Courtesy of THRIVE REALTY GROUP INC.

358 GLEBE STREET E, London East (East A)
Other$514,900
$1,620/yr taxListing Courtesy of RE/MAX Tri-County Realty Inc Brokerage

848 DUNDAS STREET E, London East (East G)
Fourplex$1,199,900
$5,157/yr taxListing Courtesy of ROYAL LEPAGE TRILAND REALTY

434 DUFFERIN AVENUE, London East (East F)
Multi-Family$1,520,000
$8,265/yr taxListing Courtesy of ROYAL LEPAGE TRILAND REALTY

434 DUFFERIN AVENUE, London East (East F)
Other$1,520,000
$8,265/yr taxListing Courtesy of ROYAL LEPAGE TRILAND REALTY

2 - 279 WILLIAM STREET, London East (East K)
Duplex$1,524/mo
Listing Courtesy of RE/MAX CENTRE CITY REALTY INC.

870 QUEENS AVENUE, London East (East G)
Triplex$1,200,000
$5,544/yr taxListing Courtesy of THE AGENCY REAL ESTATE

867 QUEENS Avenue, London
Duplex$499,900
$3,152/yr taxListing Courtesy of RE/MAX Real Estate Centre Inc.

1 - 389 DUFFERIN AVENUE, London East (East F)
Fourplex$1,749/mo
Listing Courtesy of THRIVE REALTY GROUP INC.

389 DUFFERIN AVENUE, London East (East F)
Fourplex$999,900
$6,152/yr taxListing Courtesy of THRIVE REALTY GROUP INC.
Similar Homes ?Similar Homes — Search CriteriaSearch Radius5 kmPrice Range±5%Match Home TypeYesMatch BedroomsYes

867 QUEENS Avenue, London
Duplex$499,900
$3,152/yr taxListing Courtesy of RE/MAX Real Estate Centre Inc.

332 MAIN STREET, Deseronto (Deseronto (Town))
Duplex$524,900
$4,354/yr taxListing Courtesy of RE/MAX RISE EXECUTIVES, BROKERAGE

704 BENSETTE, Windsor
Duplex$524,900
Listing Courtesy of REMAX PREFERRED REALTY LTD. - 584

41 MAIN STREET E, Bluewater (Zurich)
Multi-Family$524,900
$4,782/yr taxListing Courtesy of ROYAL LEPAGE TRILAND REALTY

39 RUSSELL, Leamington
Duplex$524,900
Listing Courtesy of DEERBROOK REALTY INC.

7 LEEDS STREET, Smiths Falls
Duplex$525,000
$4,491/yr taxListing Courtesy of SOLID ROCK REALTY

853 PILLETTE, Windsor
Duplex$525,000
Listing Courtesy of DEERBROOK REALTY INC.

A - B - 102 ELM STREET N, Port Colborne (Sugarloaf)
Duplex$525,000
$6,500/yr taxListing Courtesy of CONVERGE REALTY INC.

84 BANK STREET N, Renfrew
Duplex$525,000
$3,648/yr taxListing Courtesy of RE/MAX REAL ESTATE CENTRE INC.

9 Second Avenue, Levack
Multi-family$525,000
Listing Courtesy of EXP REALTY, BROKERAGE

54 ST DAVID STREET, Goderich (Goderich (Town))
Triplex$522,900
$4,757/yr taxListing Courtesy of RE/MAX Reliable Realty Inc

221 Oak Street, Sudbury
Multi-family$529,000
Listing Courtesy of EXP REALTY, BROKERAGE (MAIN)

271 MAIN STREET, Central Huron (Hullett)
Duplex$529,000
$3,571/yr taxListing Courtesy of RE/MAX Reliable Realty Inc

141 ONTARIO STREET, Port Hope
Duplex$529,900
$3,552/yr taxListing Courtesy of ROYAL LEPAGE PROALLIANCE REALTY

510 BRITANNIA Avenue, Hamilton
Triplex$529,900
$5,893/yr taxListing Courtesy of Royal LePage State Realty Inc.
Similar Properties ?Active Comparables — Search CriteriaSearch Radius2 kmPrice Range±5%Match Home TypeYesMatch BedroomsYes
Sold Comparables
Access to sold property data requires a registered and verified account with TRREB DDF integration.
Coming SoonRented Comparables
Access to rented property data requires a registered and verified account with TRREB DDF integration.
Coming SoonBook a Viewing
636 QUEENS AVENUE, London East (East G), Ontario, N5W3H1

