629 PENNER STREET, Niagara-on-the-Lake (Virgil), Ontario, L0S1T0
MLS: X12938270 | House (Freehold)
$849,000












































Property Description
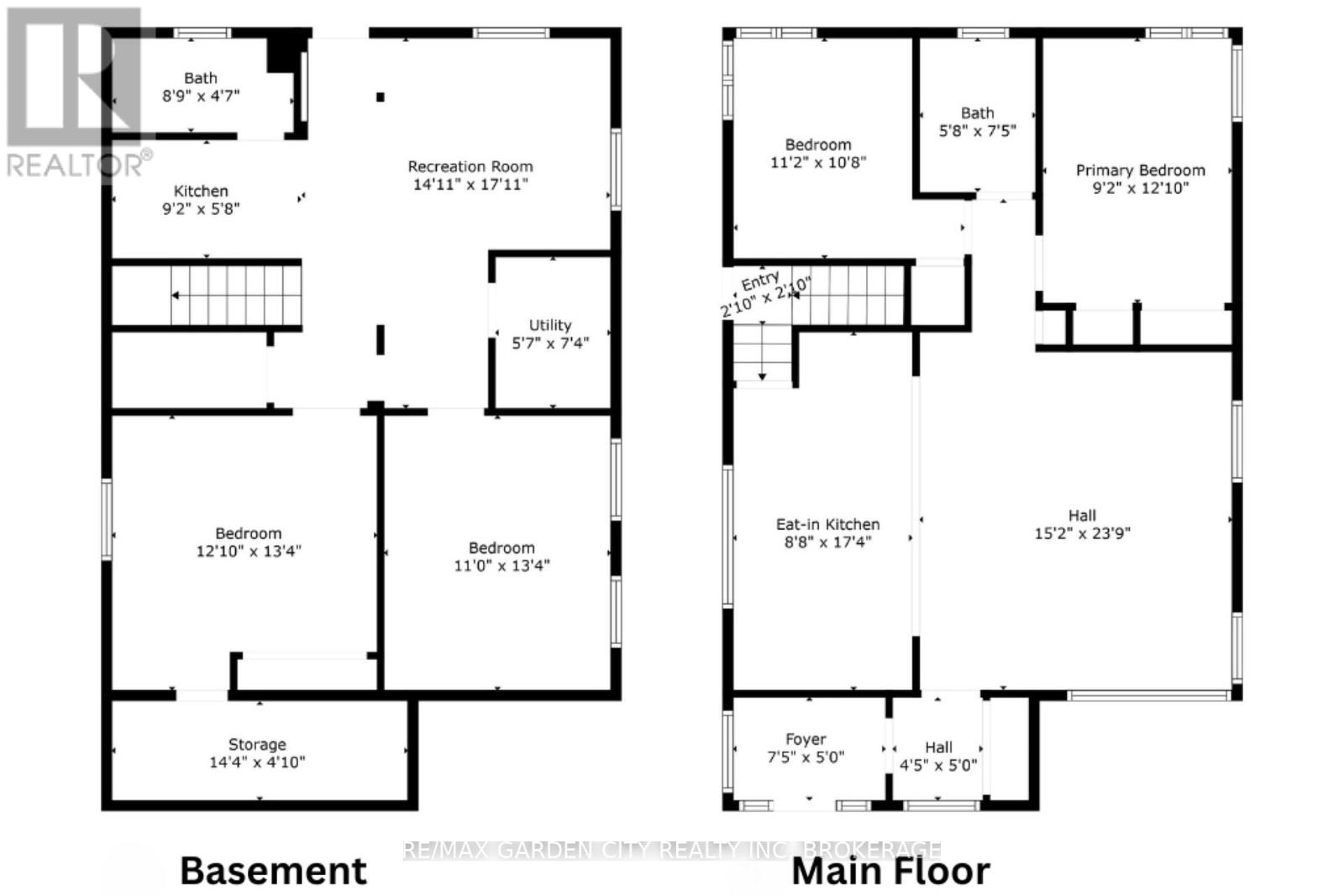
Welcome to 629 Penner Street, a charming, updated bungalow in the heart of Virgil - one of Niagara-on-the-Lake's most loved communities. This is not a large home - and that's exactly its appeal. It offers a right-sized, move-in-ready opportunity for the next chapter of life, where lifestyle, simplicity, and location matter more than excess space- all set on a rare 200-foot private lot. Inside, natural light, hardwood floors, and an open-concept layout make daily living easy. The renovated kitchen features quartz countertops, SS appliances, and a pantry, flowing seamlessly into the dining and living areas - ideal for relaxed evenings or entertaining. Two comfortable bedrooms and a fully renovated 3-piece bathroom complete the main level. The lower walkout adds meaningful versatility with additional bedroom space, a sitting area, a second 3-piece bath, and a kitchenette - well-suited for guests, extended family stays, or flexible use as needs evolve. The private 200-foot-deep lot is a standout feature, surrounded by mature trees and offering a peaceful backyard retreat complete with a hot tub and seamless indoor-outdoor connection rarely found in Niagara-on-the-Lake. Virgil offers everyday amenities, while Old Town, world-class wineries, award-winning dining, boutique shopping, farm markets, craft breweries and the Shaw Festival are just minutes away - all without peak-season congestion. Major updates provide peace of mind, including roofing (2024), furnace (2025), 200-amp electrical service (2023), A/C (2019), an owned hot water tank, and a garage currently used as a workshop with a 240V outlet offering EV potential. Additional features and improvements are detailed in the feature sheet. Ideal for downsizers, empty nesters, second-home buyers, or those seeking lifestyle-forward living in one of Niagara-on-the-Lake's most desirable communities, this thoughtfully updated bungalow offers the opportunity to enjoy less house, more life in a location that simply delivers. (id:64974)
Quick Facts
- Property Type: House (Freehold)
- Style: Bungalow
- Bedrooms: 2 (2 above)
- Bathrooms: 2
- Ownership: Freehold
- Attached: No
- Fireplaces: 1
- Parking: 7.0 spaces (Detached Garage, Garage)
- Frontage: 60 ft (18.3 m)
Costs
- Annual Taxes: $3,626.43
Listing Provided by: RE/MAX GARDEN CITY REALTY INC, BROKERAGE
Board: Niagara Association of REALTORS®
Data provided via CREA DDF®.
Detailed Features
Interior & Systems
- Heating: Forced air, Natural gas
- Cooling: Central air conditioning
- Basement: Finished, Separate entrance, Walk out, N/A, N/A
- Appliances: Washer, Refrigerator, Hot Tub, Central Vacuum, Dishwasher, Stove, Dryer, Garburator, Hood Fan, Window Coverings, Garage door opener remote(s), Water Heater
- Utilities: Sewer, Electricity, Cable
- Security: Smoke Detectors
Exterior & Construction
- Style: Bungalow
- Exterior: Brick
- Foundation: Block
- Sewer: Sanitary sewer
- Water: Municipal water
Lot & Land
- Frontage: 60 ft (18.3 m)
- Features: Wooded area, Carpet Free
Community & Neighbourhood
- Community: School Bus
- Building: Fireplace(s)
- Neighbourhood: 108 - Virgil
Room Details (12 rooms)
Listing Information
Listing History
MLS listing activity for 629 PENNER STREET, Niagara-on-the-Lake (Virgil), Ontario, L0S1T0 — dates reflect when changes were recorded in the DDF
🚗 Travel times
Neighborhood Walkability
Mortgage & Cost Calculators
Nearby Homes ?Nearby Homes — Search CriteriaSearch Radius1 kmPrice Range±5%Match BedroomsYesMatch BathroomsYes

51 HENRY STREET, Niagara-on-the-Lake (Virgil)
House$699,000
$3,771/yr taxListing Courtesy of ROYAL LEPAGE NRC REALTY

80 LORETTA DRIVE, Niagara-on-the-Lake (Virgil)
House$1,099,000
$5,027/yr taxListing Courtesy of RIGHT AT HOME REALTY

99 LORETTA DRIVE, Niagara-on-the-Lake (Virgil)
House$899,000
$5,162/yr taxListing Courtesy of REVEL Realty Inc., Brokerage

14 FISHER Drive, Virgil
House$879,900
$4,965/yr taxListing Courtesy of REALTY ONE GROUP INSIGHT

28 LORETTA DRIVE, Niagara-on-the-Lake (Virgil)
House$1,249,000
$5,565/yr taxListing Courtesy of EXP REALTY

31 HARVEST DRIVE, Niagara-on-the-Lake (Virgil)
House$1,299,000
Listing Courtesy of REVEL Realty Inc., Brokerage

48 HOMESTEAD DRIVE, Niagara-on-the-Lake (Virgil)
House$809,000
$4,800/yr taxListing Courtesy of BOLDT REALTY INC., BROKERAGE

1426 NIAGARA STONE Road, Niagara-on-the-Lake
House$1,560,000
$6,378/yr taxListing Courtesy of RE/MAX Escarpment Golfi Realty Inc.

15 OAKLEY DRIVE, Niagara-on-the-Lake (Virgil)
House$1,399,900
$1/yr taxListing Courtesy of RE/MAX ESCARPMENT REALTY INC.

19 OAKLEY Drive, Niagara-on-the-Lake
House$1,198,900
$6,880/yr taxListing Courtesy of RE/MAX Escarpment Golfi Realty Inc.

21 OAKLEY Drive, Niagara-on-the-Lake
House$1,349,900
$6,880/yr taxListing Courtesy of RE/MAX Escarpment Golfi Realty Inc.

15 OAKLEY Drive, Niagara-on-the-Lake
House$1,399,900
Listing Courtesy of RE/MAX Escarpment Realty Inc.

1439 NIAGARA STONE Road Unit# 18, Virgil
Condo - Row / Townhouse$684,900
$3,239/yr taxListing Courtesy of RE/MAX Escarpment Realty Inc.

12 PINOT Trail, Niagara-on-the-Lake
House$805,000
$4,695/yr taxListing Courtesy of RE/MAX Niagara Realty Ltd.

12 PINOT TRAIL, Niagara-on-the-Lake (Virgil)
House$805,000
$4,695/yr taxListing Courtesy of RE/MAX NIAGARA REALTY LTD, BROKERAGE
Similar Homes ?Similar Homes — Search CriteriaSearch Radius5 kmPrice Range±5%Match Home TypeYesMatch BedroomsYes

47 WINDSOR Circle, Niagara-on-the-Lake
Row / Townhouse$849,999
$5,171/yr taxListing Courtesy of ROYAL LEPAGE SIGNATURE REALTY

47 WINDSOR CIRCLE, Niagara-on-the-Lake (Town)
Row / Townhouse$849,999
$5,171/yr taxListing Courtesy of ROYAL LEPAGE SIGNATURE REALTY

119 - 4 KIMBERLY LANE, Collingwood
Condo - Apartment$849,000
$4,730/yr taxListing Courtesy of Royal LePage Locations North

30 MADSEN CRESCENT, Markham (Markville)
House$849,000
$4,384/yr taxListing Courtesy of CENTURY 21 LEADING EDGE REALTY INC.

4 POST LANE, Seguin
House$849,000
$1,633/yr taxListing Courtesy of RE/MAX Parry Sound Muskoka Realty Ltd

2001 - 71 SIMCOE STREET, Toronto (Bay Street Corridor)
Condo - Apartment$849,000
$4,102/yr taxListing Courtesy of ROYAL LEPAGE TERREQUITY SW REALTY

409 - 81A FRONT STREET E, Toronto (Waterfront Communities)
Condo - Apartment$849,000
$4,502/yr taxListing Courtesy of ROYAL LEPAGE TERREQUITY REALTY

4727 - 28 WIDMER STREET, Toronto (Waterfront Communities)
Condo - Apartment$849,000
Listing Courtesy of REMAX YOUR COMMUNITY REALTY

193 BLOOR STREET W, Oshawa (Lakeview)
House$849,000
$3,445/yr taxListing Courtesy of KELLER WILLIAMS ENERGY REAL ESTATE

370 MARTHA Street Unit# 309, Burlington
Condo - Apartment$849,000
$4,790/yr taxListing Courtesy of RE/MAX Escarpment Realty Inc.

2175 COUNTY ROAD 7, Prince Edward County (North Marysburg Ward)
House$849,000
$3,100/yr taxListing Courtesy of HARVEY KALLES REAL ESTATE LTD.

210 - 99 LOUISA STREET, Kawartha Lakes (Fenelon Falls)
Condo - Apartment$849,000
Listing Courtesy of KIC REALTY

19 VALLEY DRIVE, Parry Sound Remote Area (Golden Valley)
House$849,000
$1,890/yr taxListing Courtesy of eXp Realty

302 - 8302 ISLINGTON AVENUE, Vaughan (Islington Woods)
Condo - Apartment$849,000
$3,473/yr taxListing Courtesy of SOTHEBY'S INTERNATIONAL REALTY CANADA

703 - 374 COOPER STREET, Ottawa
Condo - Apartment$849,000
$6,560/yr taxListing Courtesy of ENGEL & VOLKERS OTTAWA
Similar Properties ?Active Comparables — Search CriteriaSearch Radius2 kmPrice Range±5%Match Home TypeYesMatch BedroomsYes
No active comparables found in this area.
No rental comparables found in this area.
Sold Comparables
Access to sold property data requires a registered and verified account with TRREB DDF integration.
Coming SoonRented Comparables
Access to rented property data requires a registered and verified account with TRREB DDF integration.
Coming SoonBook a Viewing
629 PENNER STREET, Niagara-on-the-Lake (Virgil), Ontario, L0S1T0
