611 - 825 CHURCH STREET, Toronto (Rosedale-Moore Park), Ontario, M4W3Z4
MLS: C12435575 | Apartment (Condo)
$999,900







































Property Description
Stunning, Fully Furnished Corner Suite With Panoramic Views of Rosedale Valley! This Bright and Airy Condo Features Floor-to-Ceiling Windows, Soaring 9FT Ceilings, and a Spacious Split-Bedroom Layout Offering Optimal Privacy. Enjoy a Generously-Sized Balcony Perfect for Morning Coffee or Evening Relaxation. Just a 4-Minute Walk to Yonge & Bloor Station, and Steps to Yorkville, Shopping, Dining, and Groceries. A Beautifully Appointed Urban Oasis in the Heart of the City. Amenities Include Gym, Swimming Pool (Indoor), Jacuzzi, Sauna, Billiards Room, 2 Guest Suits, Library, Visitor Parking, 24H Concierge. (id:64974)
Quick Facts
- Property Type: Apartment (Condo)
- Bedrooms: 2 (2 above)
- Bathrooms: 2
- Ownership: Condo/Strata
- Attached: Yes
- Parking: 1 space (Garage, Underground)
Costs
- Annual Taxes: $4,900.00
- Condo/HOA Fee: $866.00 / monthly
- Corp: Icon Property Management
- Includes: Common Area Maintenance, Heat, Water, Insurance
Listing Provided by: REMAX YOUR COMMUNITY REALTY
Board: Toronto Regional Real Estate Board
Data provided via CREA DDF®.
Detailed Features
Interior & Systems
- Heating: Forced air, Natural gas
- Cooling: Central air conditioning
- Basement: None
- Appliances: Washer, Refrigerator, Barbeque, Dishwasher, Stove, Microwave
- Flooring: Tile, Laminate
Lot & Land
- Features: Balcony, Carpet Free
- Pool: Indoor pool
Community & Neighbourhood
- Community: Community Centre, Pets Allowed With Restrictions
- Building: Storage - Locker, Exercise Centre, Security/Concierge
- Neighbourhood: Rosedale-Moore Park
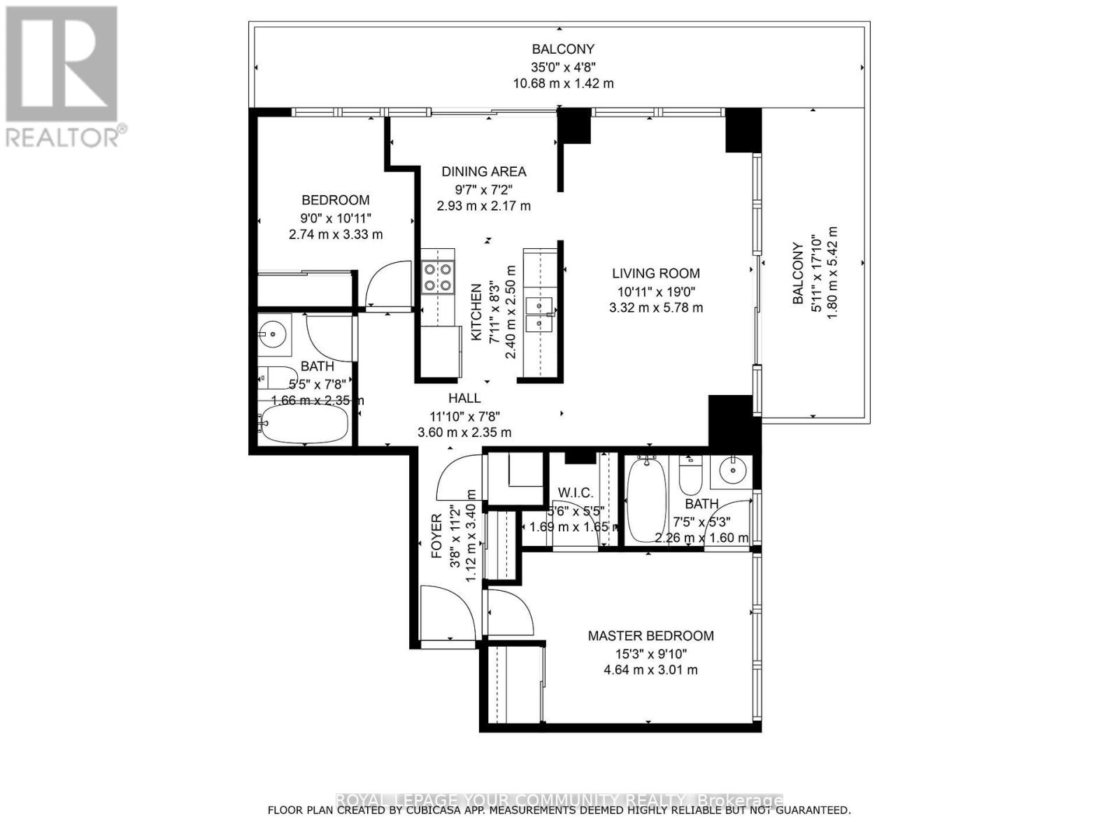
Room Details (5 rooms)
Listing Information
Listing History
Buy/Sell/Terminated/Expired listing history for 611 - 825 CHURCH STREET, Toronto (Rosedale-Moore Park), Ontario, M4W3Z4
Location & Neighborhood
🚗 Travel times
Neighborhood Walkability
Mortgage & Cost Calculators
Nearby Homes (Within 2km)
Similar Homes
Similar Properties
No rental comparables found in this area.
Sold Comparables
Access to sold property data requires a registered and verified account with TRREB DDF integration.
Coming SoonRented Comparables
Access to rented property data requires a registered and verified account with TRREB DDF integration.
Coming Soon


























