610 NEW LAKESHORE Road, Port Dover, Ontario, N0A1N3
MLS: 40799851 | Vacant Land
$199,900











Property Description
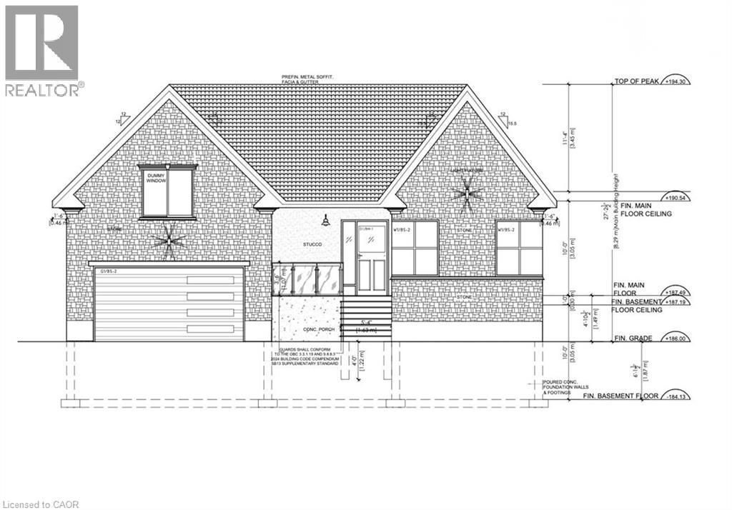
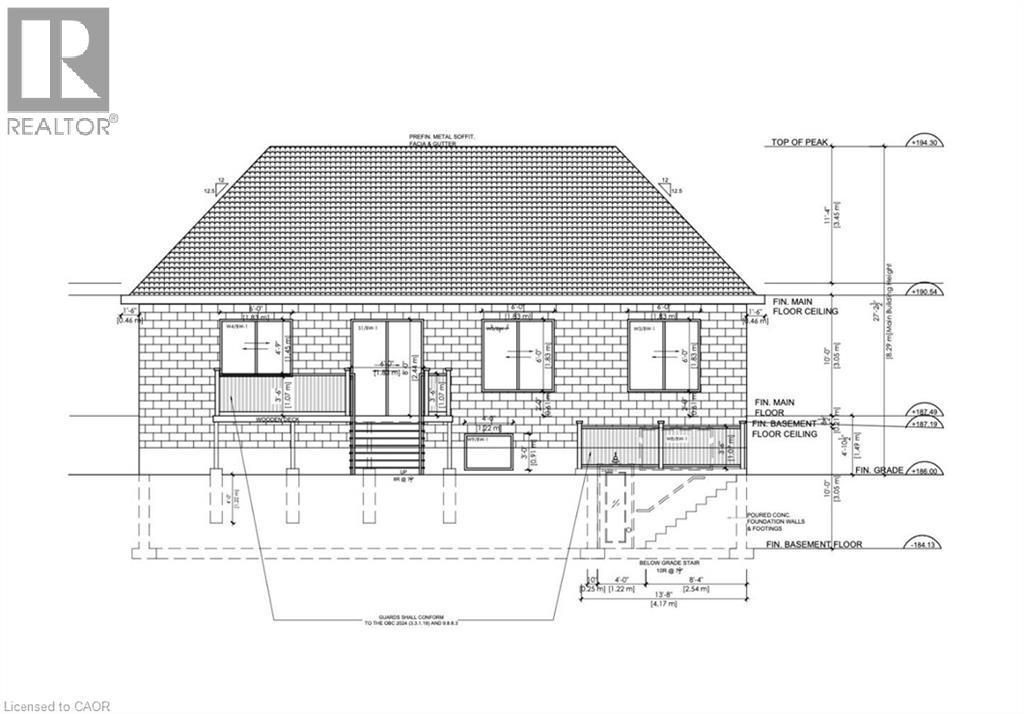
Incredible Port Dover building lot opportunity! Rare shovel-ready lot with approved building permit, paid building permit fees with full drawings, ready for construction. This lot is approved to build a 5 bedroom, 4.5 bathroom, 1,761 square foot bungalow with finished basement for a total of 3562 square feet! Plans come complete with separate entrance to the basement perfect for in-law suite or additional income. Steps the the water you can spend your summers enjoying all the activities a lake provides. Close to downtown Port Dover you will have year round amenities and a community lifestyle perfect for a growing family or downsizers looking for a slower pace of life. Sitting on a large lot, this opportunity will not last! Act fast and build this dream home today! (id:64974)
Quick Facts
- Property Type: Vacant Land
- Bedrooms: None
- Bathrooms: None
- Ownership: Freehold
- Frontage: 70 ft (21.3 m)
Costs
- Annual Taxes: $1,416.00
Listing Provided by: RE/MAX Escarpment Realty Inc.
Board: Cornerstone Association of REALTORS®
Data provided via CREA DDF®.
Detailed Features
Interior & Systems
- Basement: None
Exterior & Construction
- Sewer: No sewage system
- Water: None
Lot & Land
- Frontage: 70 ft (21.3 m)
- Features: Country residential
- Zoning: A
Community & Neighbourhood
- Subdivision: Port Dover
Listing Information
Listing History
Buy/Sell/Terminated/Expired listing history for 610 NEW LAKESHORE Road, Port Dover, Ontario, N0A1N3
Location & Neighborhood
🚗 Travel times
Neighborhood Walkability
Mortgage & Cost Calculators
Nearby Homes (Within 2km)
Similar Homes
Similar Properties
No rental comparables found in this area.
Sold Comparables
Access to sold property data requires a registered and verified account with TRREB DDF integration.
Coming SoonRented Comparables
Access to rented property data requires a registered and verified account with TRREB DDF integration.
Coming Soon











