610 - 455 WELLINGTON STREET W, Toronto (Waterfront Communities), Ontario, M5J2R2
MLS: C12848836 | Apartment (Condo)
$2,275,000














































Property Description
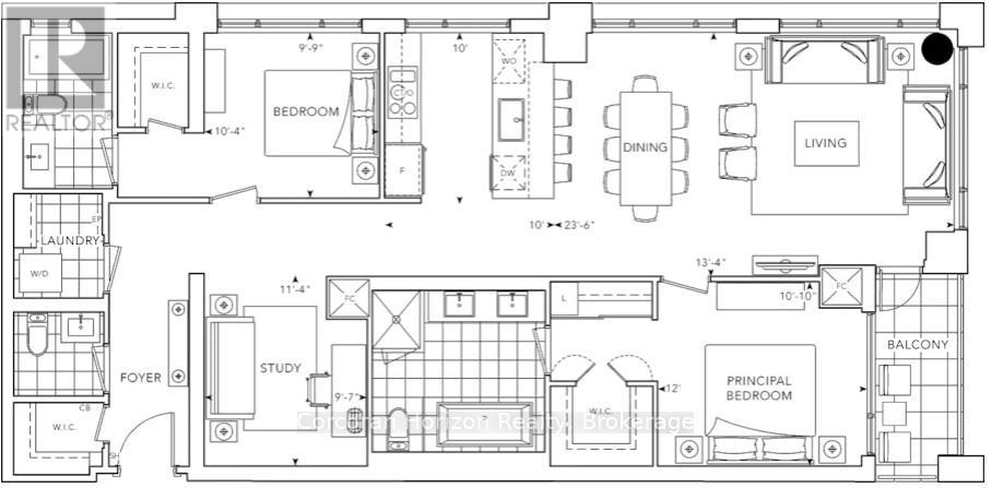
Experience elevated downtown living in the heart of Toronto's vibrant Waterfront Communities. Tridel at The Well is a triumph of design - a luxury boutique condo rising 14 stories on Wellington Street West, overlooking the Grand Promenade below and seamlessly blending modern architectural elegance with the street's historic character. Part of downtown Toronto's most ambitious mixed-use community, this residence offers a lifestyle defined by luxury, convenience, and sophistication. This sun-filled northwest corner suite spans 1,515 sq.ft. and features 2 Bedrooms + Study and 2.5 Bathrooms, with oversized windows that flood the home with natural light and showcase dynamic city views. Thoughtfully designed with a seamless, carpet-free layout, it boasts rich hardwood floors, engineered quartz countertops, and a full suite of premium Miele built-in appliances. The spacious primary retreat is a serene sanctuary, complete with a spa-inspired ensuite and boutique-style his and hers walk-in closets. A generous second bedroom, dedicated study, and beautifully appointed bathrooms provide flexibility and comfort for modern living. Enjoy 24-hour concierge and security along with an exceptional collection of amenities, including a state-of-the-art fitness centre and weight area, private dining room, entertainment lounge, elegant fireplace lounge, and a stunning outdoor pool with tanning deck (seasonal).Complete with 1 parking space and 1 locker, this residence offers a Walk Score of 94 and Transit Score of 100 - placing you steps from world-class dining, shopping, and the energy of Wellington Street West. This is downtown Toronto living at its finest - sophisticated, sunlit, and seamlessly connected to everything the city has to offer. (id:64974)
Quick Facts
- Property Type: Apartment (Condo)
- Bedrooms: 2 (2 above)
- Bathrooms: 3 (1 half)
- Ownership: Condo/Strata
- Attached: Yes
- Parking: 1 space (Garage, Underground, Inside Entry)
Costs
- Condo/HOA Fee: $1,773.00 / monthly
- Corp: Del Property Management Inc.
- Includes: Common Area Maintenance, Heat, Electricity, Insurance
Listing Provided by: Corcoran Horizon Realty
Board: The Oakville, Milton & District Real Estate Board
Data provided via CREA DDF®.
Detailed Features
Interior & Systems
- Heating: Natural gas, Coil Fan
- Cooling: Central air conditioning
- Basement: None
- Appliances: Cooktop, Window Coverings, Garage door opener remote(s)
- Flooring: Hardwood
- Security: Security system, Smoke Detectors, Controlled entry
Exterior & Construction
- Exterior: Concrete
- Foundation: Concrete
Lot & Land
- Features: Elevator, Balcony, Level, Carpet Free, In suite Laundry
- View: City view
- Pool: Outdoor pool
- Zoning: R
Community & Neighbourhood
- Community: Pets Allowed With Restrictions
- Building: Exercise Centre, Security/Concierge
- Neighbourhood: Waterfront Communities C1
Room Details (7 rooms)
Listing Information
Listing History
Buy/Sell/Terminated/Expired listing history for 610 - 455 WELLINGTON STREET W, Toronto (Waterfront Communities), Ontario, M5J2R2
Location & Neighborhood
🚗 Travel times
Neighborhood Walkability
Mortgage & Cost Calculators
Nearby Homes (Within 2km)
Similar Homes
Similar Properties
No rental comparables found in this area.
Sold Comparables
Access to sold property data requires a registered and verified account with TRREB DDF integration.
Coming SoonRented Comparables
Access to rented property data requires a registered and verified account with TRREB DDF integration.
Coming Soon























