61 EAST GLEN DRIVE, Lambton Shores (Arkona), Ontario, N0M1B0
MLS: X12994930 | House (Freehold)
$728,000







Property Description
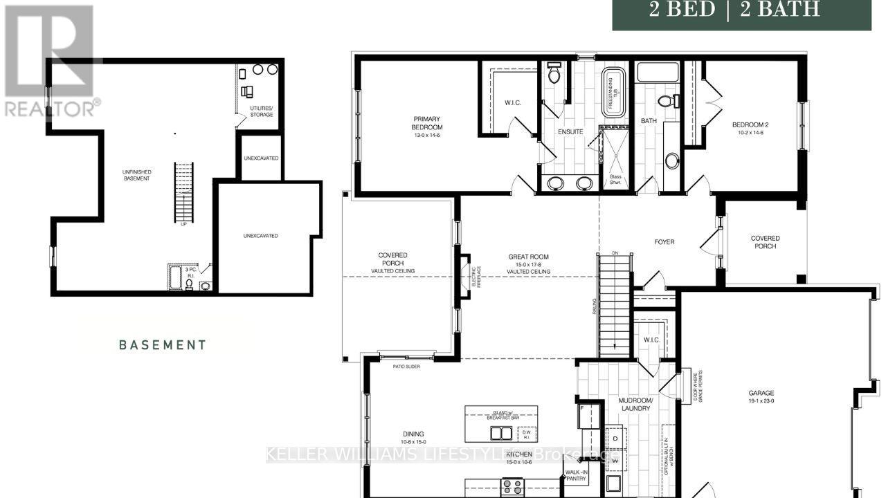
Step into the Ashbrook Model at Crossfield Estates, offering 1,878 sqft of carefully crafted living space. This beautiful 2-bedroom, 2-bath home showcases a bright, open floor plan. The great room features vaulted ceilings and an electric fireplace, creating a warm & inviting space. The kitchen includes sleek quartz countertops, soft-close cabinetry, a walk-in pantry & an island with a breakfast bar for casual dining or entertaining. The primary suite is a tranquil oasis with a walk-in closet & luxurious ensuite, complete with a freestanding tub and glass-enclosed shower. A second bedroom provides flexibility for guests or a home office. Enjoy outdoor relaxation on the covered porch with access through sliding patio doors. Energy-saving amenities include a high-efficiency gas furnace, central air, and a tankless hot water heater. Other models and lots available. Price includes HST. Property tax & assessment not set. Hot water tank is a rental. To be built, being sold from floor plans. Price reflects HST Rebate. (id:64974)
Quick Facts
- Property Type: House (Freehold)
- Style: Bungalow
- Bedrooms: 2 (2 above)
- Bathrooms: 2
- Ownership: Freehold
- Attached: No
- Parking: 4.0 spaces (Attached Garage, Garage)
- Frontage: 72 ft (22 m)
Listing Provided by: KELLER WILLIAMS LIFESTYLES
Board: London and St. Thomas Association of REALTORS®
Data provided via CREA DDF®.
Detailed Features
Interior & Systems
- Heating: Forced air, Natural gas
- Cooling: Central air conditioning
- Basement: Unfinished, N/A
Exterior & Construction
- Style: Bungalow
- Exterior: Brick
- Foundation: Concrete
- Sewer: Sanitary sewer
- Water: Municipal water
Lot & Land
- Frontage: 72 ft (22 m)
- Zoning: R1
Community & Neighbourhood
- Neighbourhood: Arkona
Room Details (5 rooms)
Listing Information
Listing History
MLS listing activity for 61 EAST GLEN DRIVE, Lambton Shores (Arkona), Ontario, N0M1B0 — dates reflect when changes were recorded in the DDF
🚗 Travel times
Neighborhood Walkability
Mortgage & Cost Calculators
Nearby Homes ?Nearby Homes — Search CriteriaSearch Radius1 kmPrice Range±5%Match BedroomsYesMatch BathroomsYes

63 EAST GLEN DRIVE, Lambton Shores (Arkona)
House$763,000
Listing Courtesy of KELLER WILLIAMS LIFESTYLES

65 EAST GLEN DRIVE, Lambton Shores (Arkona)
House$867,000
Listing Courtesy of KELLER WILLIAMS LIFESTYLES

52 EAST GLEN DRIVE, Lambton Shores (Arkona)
House$1,057,000
Listing Courtesy of KELLER WILLIAMS LIFESTYLES

32 ANN STREET, Lambton Shores (Arkona)
House$549,999
$2,278/yr taxListing Courtesy of COLDWELL BANKER POWER REALTY

50 EAST GLEN DRIVE, Lambton Shores (Arkona)
House$857,000
Listing Courtesy of KELLER WILLIAMS LIFESTYLES

29 ALEXANDER GATE, Lambton Shores (Arkona)
House$712,000
Listing Courtesy of KELLER WILLIAMS LIFESTYLES

28 ALEXANDER GATE, Lambton Shores (Arkona)
House$897,000
Listing Courtesy of KELLER WILLIAMS LIFESTYLES

8523 TOWNSEND LINE, Lambton Shores (Arkona)
House$599,900
$2,055/yr taxListing Courtesy of RE/MAX ADVANTAGE SANDERSON REALTY
Similar Homes ?Similar Homes — Search CriteriaSearch Radius5 kmPrice Range±5%Match Home TypeYesMatch BedroomsYes

203 - 91 TOWNSGATE DRIVE, Vaughan (Crestwood-Springfarm-Yorkhill)
Condo - Apartment$728,000
$2,440/yr taxListing Courtesy of SUTTON GROUP-ADMIRAL REALTY INC.

7 - 4045 HICKORY DRIVE, Mississauga (Rathwood)
Condo - Row / Townhouse$728,000
$4,880/yr taxListing Courtesy of BAY STREET INTEGRITY REALTY INC.

55 - 6520 CORFU ROAD, Mississauga (Meadowvale)
Condo - Row / Townhouse$728,000
$3,867/yr taxListing Courtesy of SUTTON GROUP - SUMMIT REALTY INC.

1004 - 200 LETT STREET, Ottawa
Condo - Apartment$728,000
$5,406/yr taxListing Courtesy of ROYAL LEPAGE TEAM REALTY

261 - 23 COX BOULEVARD, Markham (Unionville)
Condo - Apartment$728,000
$3,388/yr taxListing Courtesy of HOMELIFE/BAYVIEW REALTY INC.

713 - 33 COX BOULEVARD, Markham (Unionville)
Condo - Apartment$728,000
$3,311/yr taxListing Courtesy of HOMELIFE BROADWAY REALTY INC.

2904 - 50 O'NEILL ROAD, Toronto (Banbury-Don Mills)
Condo - Apartment$728,000
$3,600/yr taxListing Courtesy of RE/MAX HALLMARK REALTY LTD.

22 LORING DOOLITTLE COURT, Aurora (Aurora Village)
Condo - Row / Townhouse$728,000
$3,531/yr taxListing Courtesy of REAL LAND REALTY INC.

1605 - 85 BLOOR STREET E, Toronto (Church-Yonge Corridor)
Condo - Apartment$728,000
$4,102/yr taxListing Courtesy of TIMES REALTY GROUP INC.

540 REGENT STREET, Strathroy-Caradoc (Mount Brydges)
House$728,300
Listing Courtesy of SAKER REALTY CORPORATION

530 REGENT STREET, Strathroy-Caradoc (Mount Brydges)
House$728,300
Listing Courtesy of SAKER REALTY CORPORATION

32 HELIOS PLACE, Brampton (Heart Lake West)
House$728,800
$4,598/yr taxListing Courtesy of RE/MAX REALTY SERVICES INC.

907 - 200 SUDBURY STREET, Toronto (Little Portugal)
Condo - Apartment$728,800
$3,959/yr taxListing Courtesy of RARE REAL ESTATE

13 - 7035 REXWOOD ROAD, Mississauga (Malton)
Row / Townhouse$728,888
$4,084/yr taxListing Courtesy of EXP REALTY

94 WILLIAM CURTIS CIRCLE, Newmarket (Gorham-College Manor)
Condo - Row / Townhouse$728,888
$3,553/yr taxListing Courtesy of RE/MAX HALLMARK REALTY LTD.
Similar Properties ?Active Comparables — Search CriteriaSearch Radius2 kmPrice Range±5%Match Home TypeYesMatch BedroomsYes
No active comparables found in this area.
No rental comparables found in this area.
Sold Comparables
Access to sold property data requires a registered and verified account with TRREB DDF integration.
Coming SoonRented Comparables
Access to rented property data requires a registered and verified account with TRREB DDF integration.
Coming SoonBook a Viewing
61 EAST GLEN DRIVE, Lambton Shores (Arkona), Ontario, N0M1B0
