602 - 225 VETERANS DRIVE, Brampton (Northwest Brampton), Ontario, L7A5L7
MLS: W12829850 | Apartment (Condo)
$2,250.00 / monthly


















Property Description
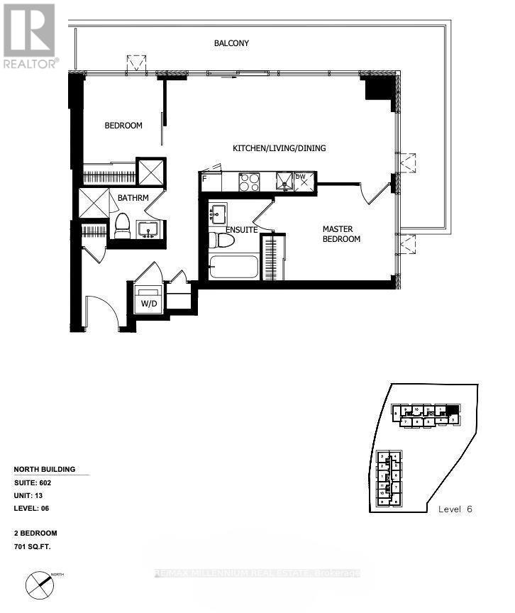
Welcome to this bright and well-designed 1-bedroom + den condo offering the perfect blend of comfort and convenience for first-time buyers, professionals, or investors. The functional layout features a spacious den with a closet that is large enough to be used as a second bedroom or private home office. The modern kitchen is equipped with stainless steel appliances and ample prep space, flowing into an open-concept living area ideal for everyday living and entertaining. This unit includes 1 parking space and a locker for added value and storage. Ideally located a few minutes from the GO Station and public transit, commuting is effortless, with shopping, restaurants, and cafés all nearby. Residents enjoy access to excellent building amenities including a fitness room, games room, party room, and Wi-Fi lounge. An excellent opportunity to rent a versatile, move-in ready condo in a highly accessible, amenity-rich location. (id:64974)
Quick Facts
- Property Type: Apartment (Condo)
- Bedrooms: 2 (1 above, 1 below)
- Bathrooms: 2
- Ownership: Condo/Strata
- Attached: Yes
- Parking: 1 space (Garage, Underground)
Listing Provided by: RE/MAX MILLENNIUM REAL ESTATE
Board: Toronto Regional Real Estate Board
Data provided via CREA DDF®.
Detailed Features
Interior & Systems
- Heating: Forced air, Natural gas
- Cooling: Central air conditioning
- Basement: None
- Security: Smoke Detectors
Exterior & Construction
- Exterior: Concrete
Lot & Land
- Features: Balcony, Carpet Free, In suite Laundry
Community & Neighbourhood
- Community: Pets Allowed With Restrictions
- Building: Storage - Locker, Exercise Centre, Party Room, Security/Concierge, Visitor Parking
- Neighbourhood: Northwest Brampton
Listing Information
Listing History
Buy/Sell/Terminated/Expired listing history for 602 - 225 VETERANS DRIVE, Brampton (Northwest Brampton), Ontario, L7A5L7
Location & Neighborhood
🚗 Travel times
Neighborhood Walkability
Mortgage & Cost Calculators
Nearby Homes (Within 2km)
Similar Homes
Similar Properties
Sold Comparables
Access to sold property data requires a registered and verified account with TRREB DDF integration.
Coming SoonRented Comparables
Access to rented property data requires a registered and verified account with TRREB DDF integration.
Coming Soon


































