602 - 141 CHURCH STREET, St. Catharines (Downtown), Ontario, L2R7L7
MLS: X12719606 | Apartment (Condo)
$374,900



















































Property Description
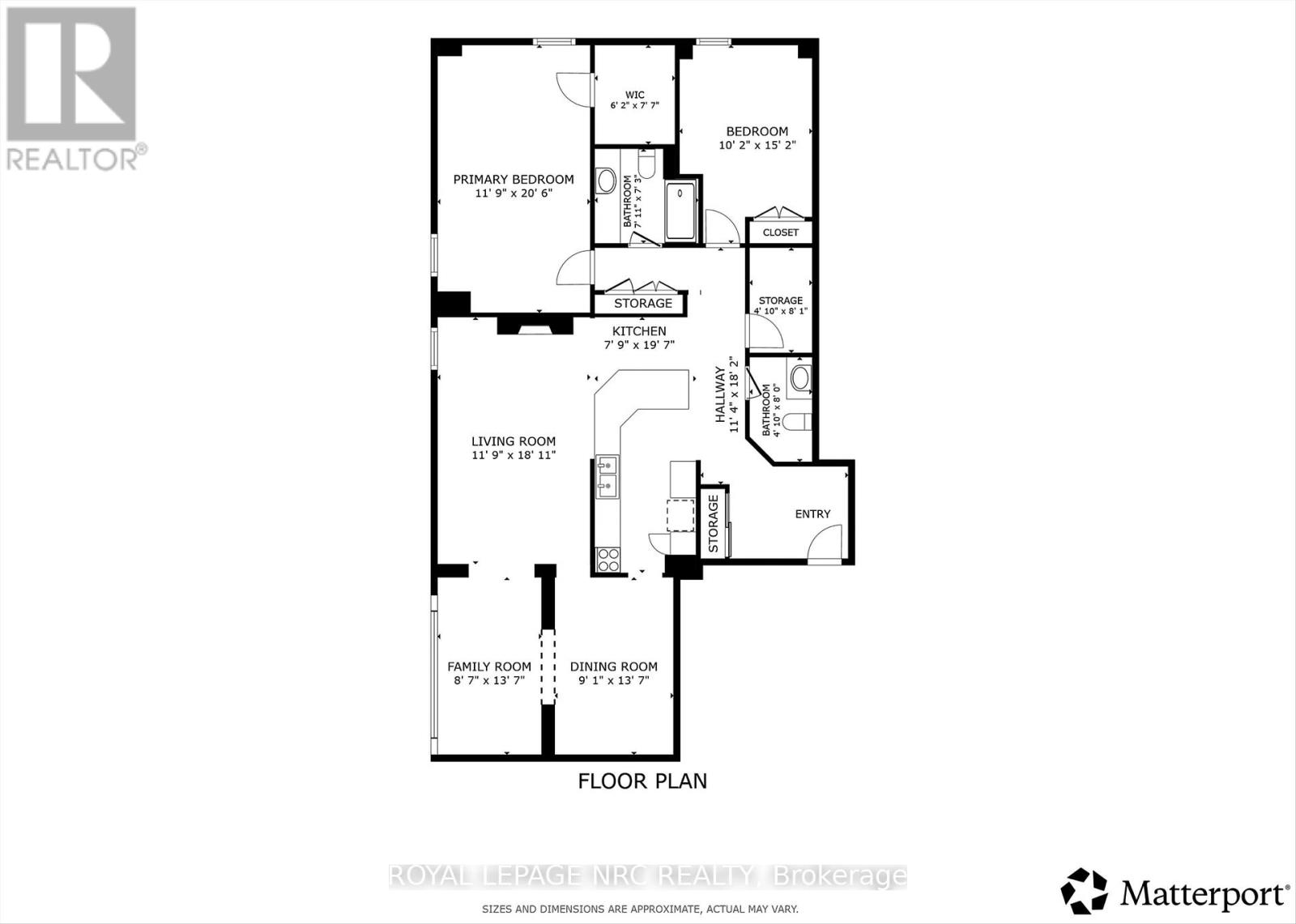
Style, Space & Affordability. This spacious 1400+ sq ft condo has numerous features that will check all the boxes for the discerning buyer. Having only 4 units on each floor gives the complex that exquisite boutique hotel feel. This corner unit offers two large bedrooms, (primary bedroom measures 19' x 11 1/2' & has a walk in closet), renovated main bathroom with accessible shower with glass doors, a powder room for guests, formal dining room opens to the extra sitting room where both rooms benefit from an abundance of natural light. Panoramic views can be enjoyed from the many windows of this 6th floor unit. The owner has recently installed a fireplace in the living room adding to the overall ambience of this elegant room. The modern black & white kitchen has newer appliances, open breakfast bar with plenty of seating, stylish ceramic backsplash, Quartz counters and white cabinetry with some glass feature doors. Conveniently located, the utility closet has built in cabinetry perfect for storage of sundries. Improvements throughout include upgraded baseboards, trim, interior passage & closet doors, laminate flooring, built in cabinetry in many areas, custom blinds, etc. Included in the condo fees: hydro, heat, TV, Wifi, parking, laundry, water, common areas & more. Building amenities include: gym, sauna, open deck with use of BBQ, pergolas, outdoor furniture, community gardens, lounge/library, elevator, covered parking & more. Convenient Downtown location is convenient to dining, Performing Arts Centre, Meridian Centre, Farmer's Market, shopping, Hwy access & so much more. (id:64974)
Quick Facts
- Property Type: Apartment (Condo)
- Bedrooms: 2 (2 above)
- Bathrooms: 2 (1 half)
- Ownership: Condo/Strata
- Attached: Yes
- Fireplaces: 1
- Parking: 1 space (Garage, Other, Inside Entry)
Costs
- Annual Taxes: $3,162.00 (2025)
- Condo/HOA Fee: $1,147.22 / monthly
- Corp: Wilson Blanchard
- Includes: Common Area Maintenance, Cable TV, Heat, Electricity, Water, Insurance, Parking
Listing Provided by: ROYAL LEPAGE NRC REALTY
Board: Niagara Association of REALTORS®
Data provided via CREA DDF®.
Detailed Features
Interior & Systems
- Heating: Radiant heat, Natural gas
- Cooling: Wall unit
- Basement: None
- Appliances: Refrigerator, Barbeque, Intercom, Dishwasher, Stove, Microwave, Window Coverings, Garage door opener remote(s)
- Security: Smoke Detectors, Controlled entry
Exterior & Construction
- Exterior: Brick
Lot & Land
- Features: Level lot, Elevator, Balcony, Level, Sauna
- Zoning: M2
Community & Neighbourhood
- Community: Pets not Allowed
- Building: Exercise Centre, Party Room, Sauna, Fireplace(s)
- Neighbourhood: 451 - Downtown
Room Details (11 rooms)
Listing Information
Listing History
Buy/Sell/Terminated/Expired listing history for 602 - 141 CHURCH STREET, St. Catharines (Downtown), Ontario, L2R7L7
Location & Neighborhood
🚗 Travel times
Neighborhood Walkability
Mortgage & Cost Calculators
Nearby Homes (Within 2km)
Similar Homes
Similar Properties
No rental comparables found in this area.
Sold Comparables
Access to sold property data requires a registered and verified account with TRREB DDF integration.
Coming SoonRented Comparables
Access to rented property data requires a registered and verified account with TRREB DDF integration.
Coming Soon
























