602 - 1350 ELLESMERE ROAD, Toronto (Bendale), Ontario, M1P0G6
MLS: E12818696 | Apartment (Condo)
$415,900















Property Description
Welcome to this brand new, never occupied suite offering modern finishes and functional design in a prime location. Featuring an open concept layout, contemporary kitchen with premium cabinetry and stainless steel appliances, spacious bedroom, and floor to ceiling windows providing abundant natural light. Enjoy the benefits of a brand new Tarion Warranty and the opportunity to own in a well managed building with excellent amenities. Ideal for first time buyers, downsizers, or professionals seeking turnkey living. Conveniently located just minutes from Ellesmere Station, providing direct access to TTC transit, and 2 min drive to Scarborough Town Centre for shopping, dining, and everyday amenities. Quick access to Highway 401 makes commuting throughout the GTA seamless. (id:64974)
Quick Facts
- Property Type: Apartment (Condo)
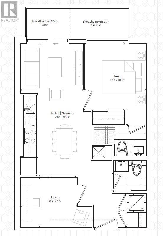
- Bedrooms: 2 (1 above, 1 below)
- Bathrooms: 2 (1 half)
- Ownership: Condo/Strata
- Attached: Yes
Costs
- Condo/HOA Fee: $347.70 / monthly
- Corp: FirstServiceResidential
- Includes: Common Area Maintenance, Heat
Listing Provided by: KELLER WILLIAMS REALTY CENTRES
Board: Toronto Regional Real Estate Board
Data provided via CREA DDF®.
Detailed Features
Interior & Systems
- Heating: Forced air, Natural gas
- Cooling: Central air conditioning
- Basement: None
- Appliances: Water meter, Water Heater
Exterior & Construction
- Exterior: Concrete, Concrete Block
Lot & Land
- Features: Balcony
- View: City view
Community & Neighbourhood
- Community: Pets Allowed With Restrictions
- Neighbourhood: Bendale
Room Details (3 rooms)
Listing Information
Listing History
Buy/Sell/Terminated/Expired listing history for 602 - 1350 ELLESMERE ROAD, Toronto (Bendale), Ontario, M1P0G6
Location & Neighborhood
🚗 Travel times
Neighborhood Walkability
Mortgage & Cost Calculators
Nearby Homes (Within 2km)
Similar Homes
Similar Properties
No rental comparables found in this area.
Sold Comparables
Access to sold property data requires a registered and verified account with TRREB DDF integration.
Coming SoonRented Comparables
Access to rented property data requires a registered and verified account with TRREB DDF integration.
Coming Soon
























