60 HILTZ AVENUE, Toronto (South Riverdale), Ontario, M4L2N5
MLS: E12767636 | House (Freehold)
$2,888,000


















































Property Description
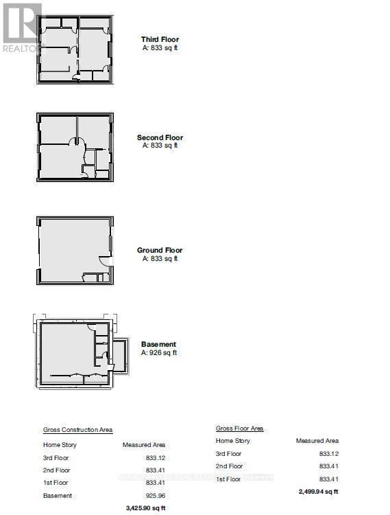
Featured by BlogTO as "Like Living in the Future." 60 Hiltz is a custom-built, all-electric home on a wide, quiet, tree-lined street steps from Greenwood Park and Queen East. 3+1 bed, 5 bath, 7 Juliet balconies, covered carport with EV rough-in, over 3,000 sf. Step inside to ~10' ceilings and a bright open kitchen-dining-family room anchored by a honed marble fireplace. Scavolini kitchen with 8-foot quartz island, Gaggenau fridge and induction cooktop, Monogram wall oven, Bosch dishwasher, Faber hood. Up to the second floor: two large bedrooms with two full baths and Scavolini closets, dedicated office, and laundry. The third-floor primary suite opens to CN Tower views, 5-pc ensuite with stone soaking tub, and gorgeous dressing area with custom millwork. Below grade: open-concept 900+ sf level with full bath and 8-foot ceilings - guest suite, media room, gym, or play space. Built for health and comfort: all-electric means zero combustion, no indoor air pollution. HEPA-filtered fresh air 24/7 via backed-up ERV. Passive House-certified triple-pane floor-to-ceiling windows flood every room with light and retain 3X more heat than standard glass. Heated floors throughout. Motorized Hunter Douglas blinds. Built to save: High Performance building envelope and cold-climate heat pump cuts heating and cooling costs vs. code-built homes. German heat pump hot water tank uses 3X less energy than conventional. 16 solar panels power the home and sell surplus to the grid. Rare islanding keeps solar running during outages. 20 kWh battery backs up sump pump, fridge, ERV, WiFi, lighting, HWT, and plug loads. Carport ready for 10 more panels. Built to protect: Bone Structure steel frame, non-combustible brick and metal exterior, laminated security glazing, 7-point locking windows, steel security door. Climate-resilient and break-in resistant. You cannot replicate this build at this price. Riverdale CI and Duke of Connaught catchments. 10 min by bike to the Beaches. Come see it. (id:64974)
Quick Facts
- Property Type: House (Freehold)
- Bedrooms: 4 (3 above, 1 below)
- Bathrooms: 5 (1 half)
- Ownership: Freehold
- Attached: No
- Fireplaces: 1
- Parking: 1 space (Garage, Carport)
- Frontage: 36 ft (11 m)
Costs
- Annual Taxes: $10,293.28
Listing Provided by: HARVEY KALLES REAL ESTATE LTD.
Board: Toronto Regional Real Estate Board
Data provided via CREA DDF®.
Detailed Features
Interior & Systems
- Heating: Heat Pump, Electric
- Cooling: Central air conditioning, Air exchanger, Ventilation system
- Basement: Finished, Full
- Appliances: Washer, Refrigerator, Water meter, Dishwasher, Range, Oven, Dryer, Oven - Built-In, Hood Fan, Blinds, Water Heater
- Flooring: Tile, Hardwood
- Utilities: Sewer, Electricity, Cable
- Security: Smoke Detectors
- Fireplace Features: Insert
Exterior & Construction
- Exterior: Steel, Brick
- Foundation: Concrete
- Fencing: Fenced yard
- Sewer: Sanitary sewer
- Water: Municipal water
Lot & Land
- Frontage: 36 ft (11 m)
- Features: Conservation/green belt, Carpet Free, Sump Pump, Solar Equipment
- View: City view
Community & Neighbourhood
- Building: Canopy, Separate Electricity Meters, Separate Heating Controls
- Neighbourhood: South Riverdale
Room Details (16 rooms)
Listing Information
Listing History
Buy/Sell/Terminated/Expired listing history for 60 HILTZ AVENUE, Toronto (South Riverdale), Ontario, M4L2N5
Location & Neighborhood
🚗 Travel times
Neighborhood Walkability
Mortgage & Cost Calculators
Nearby Homes (Within 2km)
Similar Homes
Similar Properties
No rental comparables found in this area.
Sold Comparables
Access to sold property data requires a registered and verified account with TRREB DDF integration.
Coming SoonRented Comparables
Access to rented property data requires a registered and verified account with TRREB DDF integration.
Coming Soon

























