60 CHARLES STREET, North Stormont, Ontario, K0A1R0
MLS: X12992746 | House (Freehold)
$469,900







































Property Description
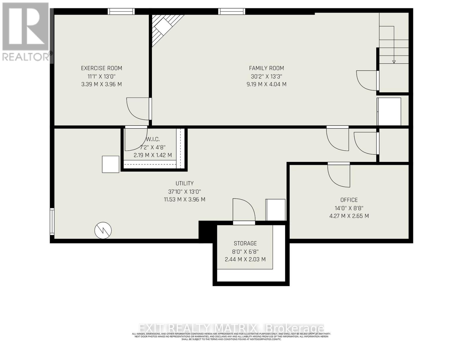
**OPEN HOUSE Sun Ap 19, 2-4pm** Escape to the peace and beauty of country living with this charming 3 bedroom bungalow, perfectly set in a tranquil setting that truly captures country living at its finest. Offering the convenience of an attached garage with inside entry, this home welcomes you with an inviting foyer that leads into a bright, open-concept main level designed for both comfort and functionality. The spacious kitchen features ample cabinetry and generous counter space, flowing seamlessly into the eating area and sun-filled living room, where a cozy fireplace and stunning floor-to-ceiling windows create a warm and inviting atmosphere with an abundance of natural light. The main floor also offers a well-appointed primary bedroom, an additional bedroom, and a 4-piece bathroom. A practical laundry area with patio doors provides direct access to the backyard, blending indoor and outdoor living effortlessly. The fully finished lower level expands your living space with a large family room complete with a second fireplace, perfect for relaxing or entertaining. You'll also find a spacious bedroom with a walk-in closet, a versatile office ideal for working from home, along with plenty of storage and a utility room. Step outside to your private backyard oasis featuring a garden shed and a hot tub (as is), the perfect spot to unwind and enjoy the serenity of the countryside. This is a rare opportunity to experience peaceful living while still enjoying all the comforts of home. (id:64974)
Quick Facts
- Property Type: House (Freehold)
- Style: Bungalow
- Bedrooms: 3 (2 above, 1 below)
- Bathrooms: 1
- Ownership: Freehold
- Attached: No
- Fireplaces: 2
- Parking: 7.0 spaces (Attached Garage, Garage)
- Frontage: 110 ft (33.6 m)
Costs
- Annual Taxes: $2,485.28 (2025)
Listing Provided by: EXIT REALTY MATRIX
Board: Ottawa Real Estate Board
Data provided via CREA DDF®.
Detailed Features
Interior & Systems
- Heating: Forced air, Natural gas
- Cooling: Central air conditioning
- Basement: Partially finished, Full
- Appliances: Washer, Refrigerator, Dishwasher, Stove, Dryer
- Utilities: Sewer, Electricity, Cable
Exterior & Construction
- Style: Bungalow
- Exterior: Brick
- Foundation: Poured Concrete
- Sewer: Sanitary sewer
- Water: Municipal water
Lot & Land
- Frontage: 110 ft (33.6 m)
Community & Neighbourhood
- Community: School Bus, Community Centre
- Building: Fireplace(s)
- Neighbourhood: 711 - North Stormont (Finch) Twp
Room Details (11 rooms)
Listing Information
Listing History
MLS listing activity for 60 CHARLES STREET, North Stormont, Ontario, K0A1R0 — dates reflect when changes were recorded in the DDF
Location & Neighborhood
🚗 Travel times
Neighborhood Walkability
Mortgage & Cost Calculators
Nearby Homes ?Nearby Homes — Search CriteriaSearch Radius1 kmPrice Range±5%Match BedroomsYesMatch BathroomsYes

B - 24 CHAMPAGNE STREET W, North Stormont
House$2,175/mo
Listing Courtesy of CENTURY 21 SYNERGY REALTY INC

23 CHARLES STREET, North Stormont
House$380,000
$1,910/yr taxListing Courtesy of EXIT REALTY MATRIX

8 BRITTANY STREET, North Stormont
House$508,000
$2,975/yr taxListing Courtesy of ROYAL LEPAGE PERFORMANCE REALTY

8 BRITTANY STREET, North Stormont
House$498,000
$2,975/yr taxListing Courtesy of ROYAL LEPAGE PERFORMANCE REALTY

4 PROVOST STREET, North Stormont
House$749,900
$4,456/yr taxListing Courtesy of EXP REALTY

21 HELEN STREET, North Stormont
Row / Townhouse$454,867
Listing Courtesy of CENTURY 21 SYNERGY REALTY INC

27 HELEN STREET, North Stormont
Row / Townhouse$454,806
Listing Courtesy of CENTURY 21 SYNERGY REALTY INC

29 HELEN STREET, North Stormont
Row / Townhouse$444,059
Listing Courtesy of CENTURY 21 SYNERGY REALTY INC

31 HELEN STREET, North Stormont
Row / Townhouse$444,059
Listing Courtesy of CENTURY 21 SYNERGY REALTY INC

LOT 00 HELEN STREET, North Stormont
House$596,460
Listing Courtesy of CENTURY 21 SYNERGY REALTY INC

LOT 00 HELEN STREET, North Stormont
House$631,858
Listing Courtesy of CENTURY 21 SYNERGY REALTY INC

64 HELEN STREET, North Stormont
House$583,186
Listing Courtesy of CENTURY 21 SYNERGY REALTY INC

68 HELEN STREET, North Stormont
House$621,080
Listing Courtesy of CENTURY 21 SYNERGY REALTY INC
Similar Homes ?Similar Homes — Search CriteriaSearch Radius5 kmPrice Range±5%Match Home TypeYesMatch BedroomsYes

21 HELEN STREET, North Stormont
Row / Townhouse$454,867
Listing Courtesy of CENTURY 21 SYNERGY REALTY INC

27 HELEN STREET, North Stormont
Row / Townhouse$454,806
Listing Courtesy of CENTURY 21 SYNERGY REALTY INC

80 MACGREGOR BAY TRAIL, Petawawa
House$469,900
$1,811/yr taxListing Courtesy of RE/MAX PEMBROKE REALTY LTD.

624 - 10 GIBBS ROAD, Toronto (Islington-City Centre West)
Condo - Apartment$469,900
$1,976/yr taxListing Courtesy of EXECUTIVE REAL ESTATE SERVICES LTD.

2111 - 75 QUEENS WHARF ROAD, Toronto (Waterfront Communities)
Condo - Apartment$469,900
$2,639/yr taxListing Courtesy of JOYNET REALTY INC.

2604 - 4099 BRICKSTONE MEWS, Mississauga (City Centre)
Condo - Apartment$469,900
$2,626/yr taxListing Courtesy of HOMELIFE LANDMARK REALTY INC.

1508 - 485 RICHMOND ROAD, Ottawa
Condo - Apartment$469,900
$4,761/yr taxListing Courtesy of ENGEL & VOLKERS OTTAWA

614 - 2450 OLD BRONTE ROAD, Oakville (WM Westmount)
Condo - Apartment$469,900
$2,149/yr taxListing Courtesy of RE/MAX ESCARPMENT REALTY INC.

609 - 304 ESSA ROAD, Barrie (0 West)
Condo - Apartment$469,900
$3,967/yr taxListing Courtesy of REAL BROKER ONTARIO LTD.

3609 - 395 BLOOR STREET E, Toronto (North St. James Town)
Condo - Apartment$469,900
$2,519/yr taxListing Courtesy of REMAX YOUR COMMUNITY REALTY

916 - 2489 TAUNTON ROAD, Oakville (RO River Oaks)
Condo - Apartment$469,900
$2,087/yr taxListing Courtesy of INTERNATIONAL REALTY FIRM, INC.

765 CHURCHILL LANE, Georgina (Historic Lakeshore Communities)
House$469,900
$2,847/yr taxListing Courtesy of REMAX YOUR COMMUNITY REALTY

200 MANNING ROAD Unit# 110, Tecumseh
Condo - Apartment$469,900
Listing Courtesy of REMAX CAPITAL DIAMOND REALTY

2308 - 1410 DUPONT STREET, Toronto (Dovercourt-Wallace Emerson-Junction)
Condo - Apartment$469,900
$2,036/yr taxListing Courtesy of RE/MAX ULTIMATE REALTY INC.

E2 - 1665 NASH ROAD, Clarington (Courtice)
Condo - Row / Townhouse$469,900
$3,017/yr taxListing Courtesy of RE/MAX ROUGE RIVER REALTY LTD.
Similar Properties ?Active Comparables — Search CriteriaSearch Radius2 kmPrice Range±5%Match Home TypeYesMatch BedroomsYes

21 HELEN STREET, North Stormont
Row / Townhouse$454,867
Listing Courtesy of CENTURY 21 SYNERGY REALTY INC

27 HELEN STREET, North Stormont
Row / Townhouse$454,806
Listing Courtesy of CENTURY 21 SYNERGY REALTY INC
No rental comparables found in this area.
Sold Comparables
Access to sold property data requires a registered and verified account with TRREB DDF integration.
Coming SoonRented Comparables
Access to rented property data requires a registered and verified account with TRREB DDF integration.
Coming SoonBook a Viewing
60 CHARLES STREET, North Stormont, Ontario, K0A1R0
