6 CHURCH STREET W, Norwich (Burgessville), Ontario, N0J1C0
MLS: X12250385 | House (Freehold)
$149,999











Property Description
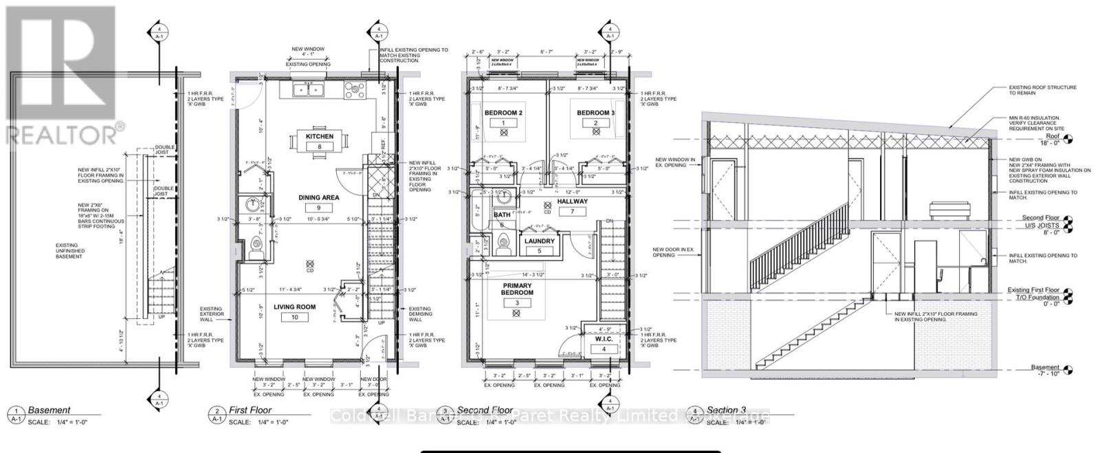
Investor & Renovators Dream! This attached home in the heart of Burgessville has been completely gutted, offering a blank slate for your vision. Whether you're an investor looking to build instant equity or a buyer ready to create your dream home, this property presents an incredible opportunity. With the right plan and execution, the potential here is massive. Properties like this, once completed, can yield substantial returns either as a flip, a rental, or an affordable entry into homeownership. Opportunities like this don't come often. Take advantage of the chance to bring this property back to life! Property being sold "As Is". No warranties by Sellers. (id:64974)
Quick Facts
- Property Type: House (Freehold)
- Bedrooms: 3 (3 above)
- Bathrooms: 2 (1 half)
- Ownership: Freehold
- Attached: Yes
- Frontage: 28 ft (8.4 m)
Costs
- Annual Taxes: $1,272.55 (2024)
Listing Provided by: Coldwell Banker G.R. Paret Realty Limited Brokerage
Board: Woodstock Ingersoll Tillsonburg and Area Association of REALTORS® (WITAAR)
Data provided via CREA DDF®.
Detailed Features
Interior & Systems
- Heating: Other
- Cooling: None
- Basement: Unfinished, Full
Exterior & Construction
- Exterior: Vinyl siding
- Foundation: Poured Concrete
- Sewer: Septic System
- Water: Shared Well
Lot & Land
- Frontage: 28 ft (8.4 m)
- Features: Carpet Free
- Zoning: R1
Community & Neighbourhood
- Neighbourhood: Burgessville
Room Details (2 rooms)
Listing Information
Listing History
Buy/Sell/Terminated/Expired listing history for 6 CHURCH STREET W, Norwich (Burgessville), Ontario, N0J1C0
Location & Neighborhood
🚗 Travel times
Neighborhood Walkability
Mortgage & Cost Calculators
Nearby Homes (Within 2km)
Similar Homes
Similar Properties
No rental comparables found in this area.
Sold Comparables
Access to sold property data requires a registered and verified account with TRREB DDF integration.
Coming SoonRented Comparables
Access to rented property data requires a registered and verified account with TRREB DDF integration.
Coming Soon















