6 - 2139 STRASBURG ROAD, Kitchener, Ontario, N2L0C7
MLS: X12693810 | Apartment (Condo)
$525,990




Property Description
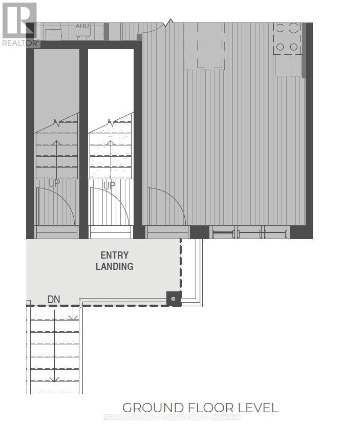
New price - LIMITED TIME EXCLUSIVE PRICING - Now $50,000 off the original builder's price. This limited-time pre-construction offer (available until March 15, 2026) includes FREE ASSIGNMENT/NO OCCUPANCY FEE/6 APPLIANCES /ZERO DEVELOPMENT LEVY/NO TARION ENROLLMENT FEE. Expected occupancy closing for the complex is between late 2026 and late 2027, making this an excellent opportunity for first-time home buyers and investors looking to enter the market or expand their portfolio. This brand-new stacked NET ZERO READY condominium community located in a highly desirable area , offers LOW condo fees and outstanding convenience. The Carlyle B is 2 floor layout with a large main level offering an open concept layout with a powder room, living room with balcony access and L shaped kitchen. Second floor offers a large primary suite with ensuite bath and second balcony, additional bedroom, laundry room and main 4pc bath. HEAT PUMP AND FREE APPLIANCES. Enjoy easy access to Highway 401, walking distance to schools, and proximity to Conestoga College, shopping, dining, and the new RBJ Schlegel Park and sports complex. Surrounded by Brigadoon Woods, the community offers surface parking and transit stops right outside the complex. (id:64974)
Quick Facts
- Property Type: Apartment (Condo)
- Bedrooms: 2 (2 above)
- Bathrooms: 3 (1 half)
- Ownership: Condo/Strata
- Attached: Yes
- Parking: 1 space (No Garage)
Costs
- Condo/HOA Fee: $166.51 / monthly
- Corp: TBD
Listing Provided by: RE/MAX TWIN CITY REALTY INC.
Board: Toronto Regional Real Estate Board
Data provided via CREA DDF®.
Detailed Features
Interior & Systems
- Heating: Heat Pump, Forced air, Not known, Electric, Electric
- Cooling: Central air conditioning
- Basement: None
Exterior & Construction
- Exterior: Brick, Vinyl siding
Lot & Land
- Features: Balcony, In suite Laundry
Community & Neighbourhood
- Community: Pets Allowed With Restrictions
Room Details (4 rooms)
Listing Information
Listing History
Buy/Sell/Terminated/Expired listing history for 6 - 2139 STRASBURG ROAD, Kitchener, Ontario, N2L0C7
Location & Neighborhood
🚗 Travel times
Neighborhood Walkability
Mortgage & Cost Calculators
Nearby Homes (Within 2km)
Similar Homes
Similar Properties
No rental comparables found in this area.
Sold Comparables
Access to sold property data requires a registered and verified account with TRREB DDF integration.
Coming SoonRented Comparables
Access to rented property data requires a registered and verified account with TRREB DDF integration.
Coming Soon



















