5977 NINTH LINE, Whitchurch-Stouffville, Ontario, L4A7X4
MLS: N12681222 | Vacant Land
$1,199,000




Property Description
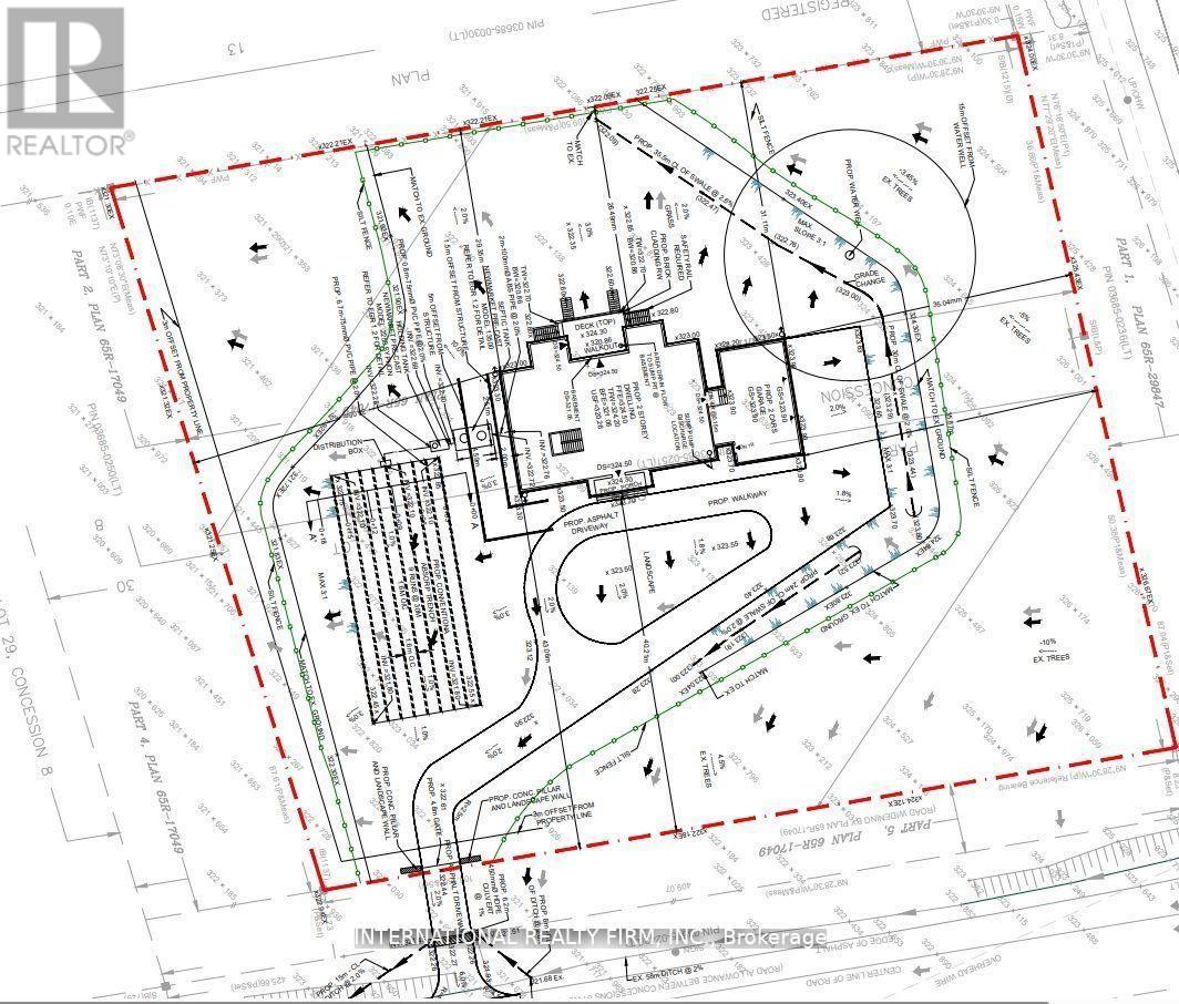
A Beautiful double wide Estate Lot on a hilltop in scenic Vivian Forest - offering 338ft of frontage. Exclusive area consisting of significant estates yet close to urban conveniences of Newmarket, Stouffville, Major Highways, GO train and Southlake regional health Centre. Seller has completed various studies required to apply for a building permit including Topographic survey, Natural heritage evaluation, Site Grading plan, Septic plan, Butter nut assessment (no preserved butternuts on site) saving months of time and expense for the buyer. Two different concepts of building plans are also available to carry forward if desired. VTB financing available. (id:64974)
Quick Facts
- Property Type: Vacant Land
- Bedrooms: None
- Bathrooms: 0
- Frontage: 338 ft (103 m)
Costs
- Annual Taxes: $4,500.00
Listing Provided by: INTERNATIONAL REALTY FIRM, INC.
Board: Toronto Regional Real Estate Board
Data provided via CREA DDF®.
Detailed Features
Interior & Systems
- Utilities: Electricity, Cable
Lot & Land
- Frontage: 338 ft (103 m)
- Zoning: Residential
Community & Neighbourhood
- Neighbourhood: Rural Whitchurch-Stouffville
Listing Information
Listing History
Buy/Sell/Terminated/Expired listing history for 5977 NINTH LINE, Whitchurch-Stouffville, Ontario, L4A7X4
Location & Neighborhood
🚗 Travel times
Neighborhood Walkability
Mortgage & Cost Calculators
Similar Homes
Similar Properties
No rental comparables found in this area.
Sold Comparables
Access to sold property data requires a registered and verified account with TRREB DDF integration.
Coming SoonRented Comparables
Access to rented property data requires a registered and verified account with TRREB DDF integration.
Coming Soon



















