59 WESTFIELD DRIVE, Whitby (Lynde Creek), Ontario, L1P0E9
MLS: E12769662 | House (Freehold)
$5,500.00 / monthly






































Property Description
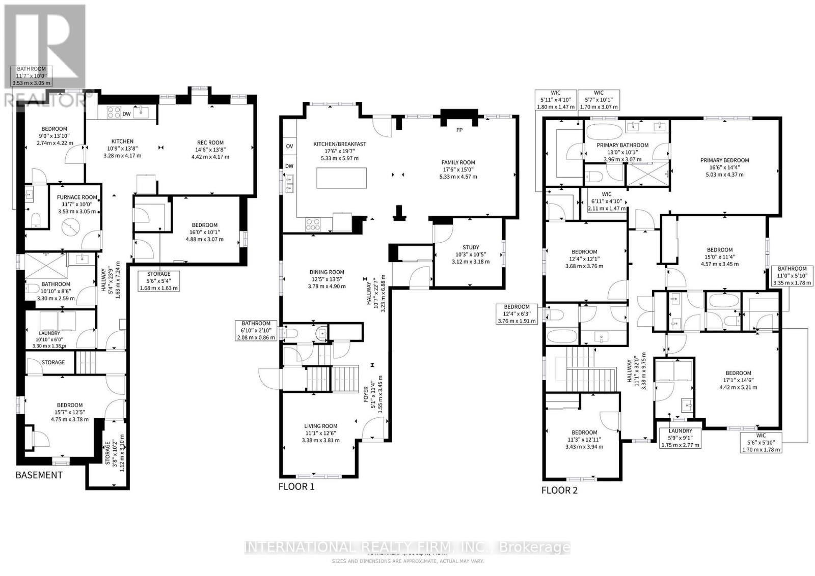
Step into luxury and comfort in this stunning detached home featuring a legal basement apartment with its own private side entrance - perfect for large families, in-law suite or nanny suite. Thoughtfully designed, the upper level features 5 large bedrooms, 3 full bathrooms, and a second-floor laundry room. The primary suite boasts a spa-like 5-piece ensuite and dual walk-in closets. Two bedrooms share a stylish Jack & Jill bathroom, one enjoys a semi-ensuite and another is sunlit with front yard views. The main floor features a private office, formal living and dining rooms with oversized windows, a 2-piece powder room, and a family room with a gas fireplace overlooking the backyard. The chefs kitchen offers quartz countertops, stainless steel appliances, a large island with breakfast bar and a sunlit breakfast area with walkout to the yard. The fully finished legal basement apartment features 2 bedrooms, a kitchen, a separate laundry room, a 3-piece bathroom, a private 2-piece ensuite, pot lights, large windows and open-concept living. A large cold room adds extra storage. Located minutes from Highways 401 and 412, schools, shopping, restaurants, and Des Newman WhitBEE Park. Listing photos were taken before the current tenant's occupancy. (id:64974)
Quick Facts
- Property Type: House (Freehold)
- Bedrooms: 7 (5 above, 2 below)
- Bathrooms: 6 (2 half)
- Ownership: Freehold
- Attached: No
- Fireplaces: Yes
- Parking: 4 spaces (Attached Garage, Garage)
- Frontage: 43 ft (13.1 m)
Listing Provided by: INTERNATIONAL REALTY FIRM, INC.
Board: Toronto Regional Real Estate Board
Data provided via CREA DDF®.
Detailed Features
Interior & Systems
- Heating: Forced air, Natural gas
- Cooling: Central air conditioning
- Basement: Apartment in basement, Separate entrance, N/A, N/A
- Flooring: Hardwood, Laminate, Carpeted, Ceramic
Exterior & Construction
- Exterior: Brick, Stone
- Foundation: Poured Concrete
- Sewer: Sanitary sewer
- Water: Municipal water
Lot & Land
- Frontage: 43 ft (13.1 m)
- Features: In suite Laundry, In-Law Suite
Community & Neighbourhood
- Neighbourhood: Lynde Creek
Room Details (15 rooms)
Listing Information
Listing History
Buy/Sell/Terminated/Expired listing history for 59 WESTFIELD DRIVE, Whitby (Lynde Creek), Ontario, L1P0E9
Location & Neighborhood
🚗 Travel times
Neighborhood Walkability
Mortgage & Cost Calculators
Nearby Homes (Within 2km)
Similar Homes
Similar Properties
Sold Comparables
Access to sold property data requires a registered and verified account with TRREB DDF integration.
Coming SoonRented Comparables
Access to rented property data requires a registered and verified account with TRREB DDF integration.
Coming Soon





























