5895 ELLIS STREET Unit# 201, LaSalle, Ontario, N9H0R2
MLS: 26006107 | Apartment
$2,155 / monthly




























Property Description
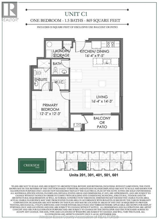
A spectacular 1 bed, 1.5 bath unit by Valente Development in our newest Gianni Remo building, with all the upgraded conveniences you have come to expect from this builder. One of the best locations in LaSalle for shopping, doctors, banks, etc., dog park, walking trails and parks. Open plan design, kitchen with quartz countertops, undermount lighting, pantry, in suite laundry. Spacious p/b with tray ceiling, ensuite with sparkling glass and tile walk in shower, main bathroom with tub. Luxury upgraded vinyl plank flooring throughout except for bathrooms which porcelain floor. Linen closet. Garbage chute, social/party room for tenants use with kitchenette and rest room. Unassigned surface parking included. Garages to lease. On Site Manager, service department. Includes 5 S/S appliances. All heating equipment and hot water tank not subject to any rental fees. 1 year lease. Proof of employment and credit check required with application. Tenant pays utilities, water, gas, hydro. All Showings by appointment or Sun & Thurs 1-3. (id:64974)
Quick Facts
- Property Type: Apartment
- Bedrooms: 1 (1 above)
- Bathrooms: 2 (1 half)
- Living Area: 869 sq ft (80.7 m²)
- Above Grade: 869 sq ft (80.7 m²)
- Year Built: 2025
- Attached: Yes
Listing Provided by: REMO VALENTE REAL ESTATE (1990) LIMITED
Board: Windsor-Essex County Association of REALTORS®
Data provided via CREA DDF®.
Detailed Features
Interior & Systems
- Heating: Forced air, Natural gas, Furnace
- Cooling: Central air conditioning
- Appliances: Washer, Refrigerator, Dishwasher, Stove, Dryer, Microwave Range Hood Combo
- Flooring: Laminate, Ceramic/Porcelain
Exterior & Construction
- Exterior: Brick
- Foundation: Concrete
Lot & Land
- Zoning: RES
Room Details (6 rooms)
Listing Information
Listing History
MLS listing activity for 5895 ELLIS STREET Unit# 201, LaSalle, Ontario, N9H0R2 — dates reflect when changes were recorded in the DDF
🚗 Travel times
Neighborhood Walkability
Mortgage & Cost Calculators
Nearby Homes ?Nearby Homes — Search CriteriaSearch Radius1 kmPrice Range±5%Match BedroomsYesMatch BathroomsYes

5895 ELLIS STREET Unit# 201, LaSalle
Condo - Apartment$2,155/mo
Listing Courtesy of REMO VALENTE REAL ESTATE (1990) LIMITED

5895 ELLIS STREET Unit# 102, LaSalle
Condo - Apartment$2,475/mo
Listing Courtesy of REMO VALENTE REAL ESTATE (1990) LIMITED

5895 ELLIS STREET Unit# 102, LaSalle
Apartment$2,475/mo
Listing Courtesy of REMO VALENTE REAL ESTATE (1990) LIMITED

5895 ELLIS STREET Unit# 604, LaSalle
Condo - Apartment$2,595/mo
Listing Courtesy of REMO VALENTE REAL ESTATE (1990) LIMITED

5895 ELLIS STREET Unit# 604, LaSalle
Apartment$2,595/mo
Listing Courtesy of REMO VALENTE REAL ESTATE (1990) LIMITED

5885 ELLIS STREET Unit# 104, LaSalle
Condo - Apartment$1,995/mo
Listing Courtesy of REMO VALENTE REAL ESTATE (1990) LIMITED

5885 ELLIS STREET Unit# 108, LaSalle
Condo - Apartment$2,495/mo
Listing Courtesy of REMO VALENTE REAL ESTATE (1990) LIMITED

5885 ELLIS STREET Unit# 108, LaSalle
Apartment$2,495/mo
Listing Courtesy of REMO VALENTE REAL ESTATE (1990) LIMITED

5885 ELLIS STREET Unit# 104, LaSalle
Apartment$1,995/mo
Listing Courtesy of REMO VALENTE REAL ESTATE (1990) LIMITED

5885 ELLIS STREET Unit# 404, LaSalle
Condo - Apartment$2,465/mo
Listing Courtesy of REMO VALENTE REAL ESTATE (1990) LIMITED

5885 ELLIS STREET Unit# 404, LaSalle
Apartment$2,465/mo
Listing Courtesy of REMO VALENTE REAL ESTATE (1990) LIMITED

2105 SUZANNE, LaSalle
House$1,099,900
Listing Courtesy of REMO VALENTE REAL ESTATE (1990) LIMITED

5995 ELLIS STREET Unit# 109, LaSalle
Condo - Apartment$2,395/mo
Listing Courtesy of REALTY ONE GROUP ICONIC BROKERAGE

2230 SUZANNE, LaSalle
House$1,100,000
Listing Courtesy of REMO VALENTE REAL ESTATE (1990) LIMITED

1740-A SPRUCEWOOD Unit# 206, LaSalle
Condo - Apartment$575,000
Listing Courtesy of REMAX CAPITAL DIAMOND REALTY
Similar Homes ?Similar Homes — Search CriteriaSearch Radius5 kmPrice Range±5%Match Home TypeYesMatch BedroomsYes

5895 ELLIS STREET Unit# 201, LaSalle
Condo - Apartment$2,155/mo
Listing Courtesy of REMO VALENTE REAL ESTATE (1990) LIMITED

529 ELM Street Unit# 16, Port Colborne
Apartment$2,050/mo
Listing Courtesy of eXp Realty

16 - 529 ELM STREET, Port Colborne (Main Street)
Condo - Other$2,050/mo
Listing Courtesy of EXP REALTY

4305 - 950 PORTAGE PARKWAY, Vaughan (Vaughan Corporate Centre)
Condo - Apartment$2,050/mo
Listing Courtesy of HOMELIFE LANDMARK REALTY INC.

2801 - 155 BEECROFT ROAD, Toronto (Willowdale West)
Condo - Apartment$2,050/mo
Listing Courtesy of SUTTON GROUP QUANTUM REALTY INC.

5306 - 5 BUTTERMILL AVENUE, Vaughan (Vaughan Corporate Centre)
Condo - Apartment$2,050/mo
Listing Courtesy of RE/MAX PREMIER INC.

3105 - 36 ELM DRIVE, Mississauga (City Centre)
Condo - Apartment$2,050/mo
Listing Courtesy of ROYAL LEPAGE SIGNATURE REALTY

911 - 100 DALHOUSIE STREET, Toronto (Church-Yonge Corridor)
Condo - Apartment$2,050/mo
Listing Courtesy of HOMELIFE LANDMARK REALTY INC.

2708 - 20 THOMAS RILEY ROAD, Toronto (Islington-City Centre West)
Condo - Apartment$2,050/mo
Listing Courtesy of VALERY REAL ESTATE INC.

1016 - 87 PETER STREET, Toronto (Waterfront Communities)
Condo - Apartment$2,050/mo
Listing Courtesy of CENTURY 21 PERCY FULTON LTD.

5113 - 197 YONGE STREET, Toronto (Church-Yonge Corridor)
Condo - Apartment$2,050/mo
Listing Courtesy of HOMELIFE LANDMARK REALTY INC.

3309 - 5105 HURONTARIO STREET N, Mississauga (Hurontario)
Condo - Apartment$2,049/mo
Listing Courtesy of PMA BRETHOUR REAL ESTATE CORPORATION INC.

10B - 100 LIBERTY STREET N, Clarington (Bowmanville)
Row / Townhouse$2,049/mo
Listing Courtesy of HOMEWISE REAL ESTATE

2011 - 2550 SIMCOE STREET N, Oshawa (Windfields)
Condo - Apartment$2,049/mo
Listing Courtesy of HOMELIFE LANDMARK REALTY INC.

709 - 931 WONDERLAND ROAD S, London South (South M)
Condo - Apartment$2,049/mo
Listing Courtesy of SUTTON GROUP - SELECT REALTY
Similar Properties ?Active Comparables — Search CriteriaSearch Radius2 kmPrice Range±5%Match Home TypeYesMatch BedroomsYes

5895 ELLIS STREET Unit# 201, LaSalle
Condo - Apartment$2,155/mo
Listing Courtesy of REMO VALENTE REAL ESTATE (1990) LIMITED

529 ELM Street Unit# 16, Port Colborne
Apartment$2,050/mo
Listing Courtesy of eXp Realty

16 - 529 ELM STREET, Port Colborne (Main Street)
Condo - Other$2,050/mo
Listing Courtesy of EXP REALTY

4305 - 950 PORTAGE PARKWAY, Vaughan (Vaughan Corporate Centre)
Condo - Apartment$2,050/mo
Listing Courtesy of HOMELIFE LANDMARK REALTY INC.

2801 - 155 BEECROFT ROAD, Toronto (Willowdale West)
Condo - Apartment$2,050/mo
Listing Courtesy of SUTTON GROUP QUANTUM REALTY INC.

5306 - 5 BUTTERMILL AVENUE, Vaughan (Vaughan Corporate Centre)
Condo - Apartment$2,050/mo
Listing Courtesy of RE/MAX PREMIER INC.

3105 - 36 ELM DRIVE, Mississauga (City Centre)
Condo - Apartment$2,050/mo
Listing Courtesy of ROYAL LEPAGE SIGNATURE REALTY

911 - 100 DALHOUSIE STREET, Toronto (Church-Yonge Corridor)
Condo - Apartment$2,050/mo
Listing Courtesy of HOMELIFE LANDMARK REALTY INC.

2708 - 20 THOMAS RILEY ROAD, Toronto (Islington-City Centre West)
Condo - Apartment$2,050/mo
Listing Courtesy of VALERY REAL ESTATE INC.

1016 - 87 PETER STREET, Toronto (Waterfront Communities)
Condo - Apartment$2,050/mo
Listing Courtesy of CENTURY 21 PERCY FULTON LTD.

5113 - 197 YONGE STREET, Toronto (Church-Yonge Corridor)
Condo - Apartment$2,050/mo
Listing Courtesy of HOMELIFE LANDMARK REALTY INC.

3309 - 5105 HURONTARIO STREET N, Mississauga (Hurontario)
Condo - Apartment$2,049/mo
Listing Courtesy of PMA BRETHOUR REAL ESTATE CORPORATION INC.

10B - 100 LIBERTY STREET N, Clarington (Bowmanville)
Row / Townhouse$2,049/mo
Listing Courtesy of HOMEWISE REAL ESTATE

2011 - 2550 SIMCOE STREET N, Oshawa (Windfields)
Condo - Apartment$2,049/mo
Listing Courtesy of HOMELIFE LANDMARK REALTY INC.

709 - 931 WONDERLAND ROAD S, London South (South M)
Condo - Apartment$2,049/mo
Listing Courtesy of SUTTON GROUP - SELECT REALTY
Sold Comparables
Access to sold property data requires a registered and verified account with TRREB DDF integration.
Coming SoonRented Comparables
Access to rented property data requires a registered and verified account with TRREB DDF integration.
Coming SoonBook a Viewing
5895 ELLIS STREET Unit# 201, LaSalle, Ontario, N9H0R2
