58 AMALIA CRESCENT, Centre Wellington (Belwood), Ontario, N0B1J0
MLS: X12747748 | House (Freehold)
$4,200,000



















































Property Description
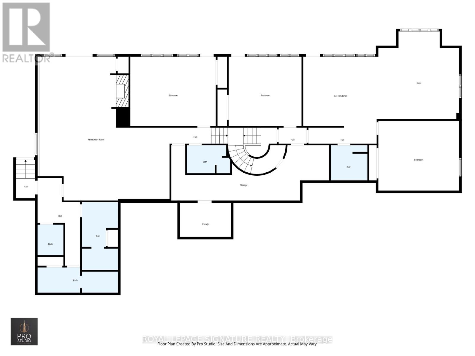
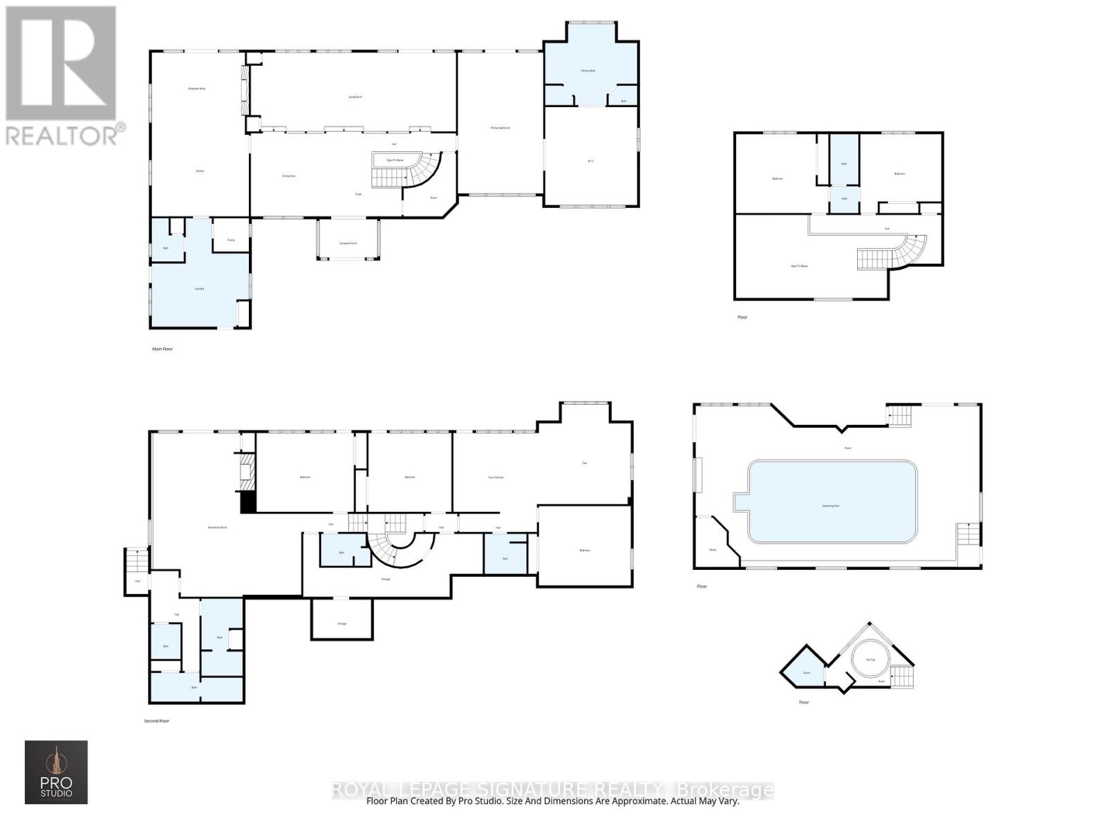
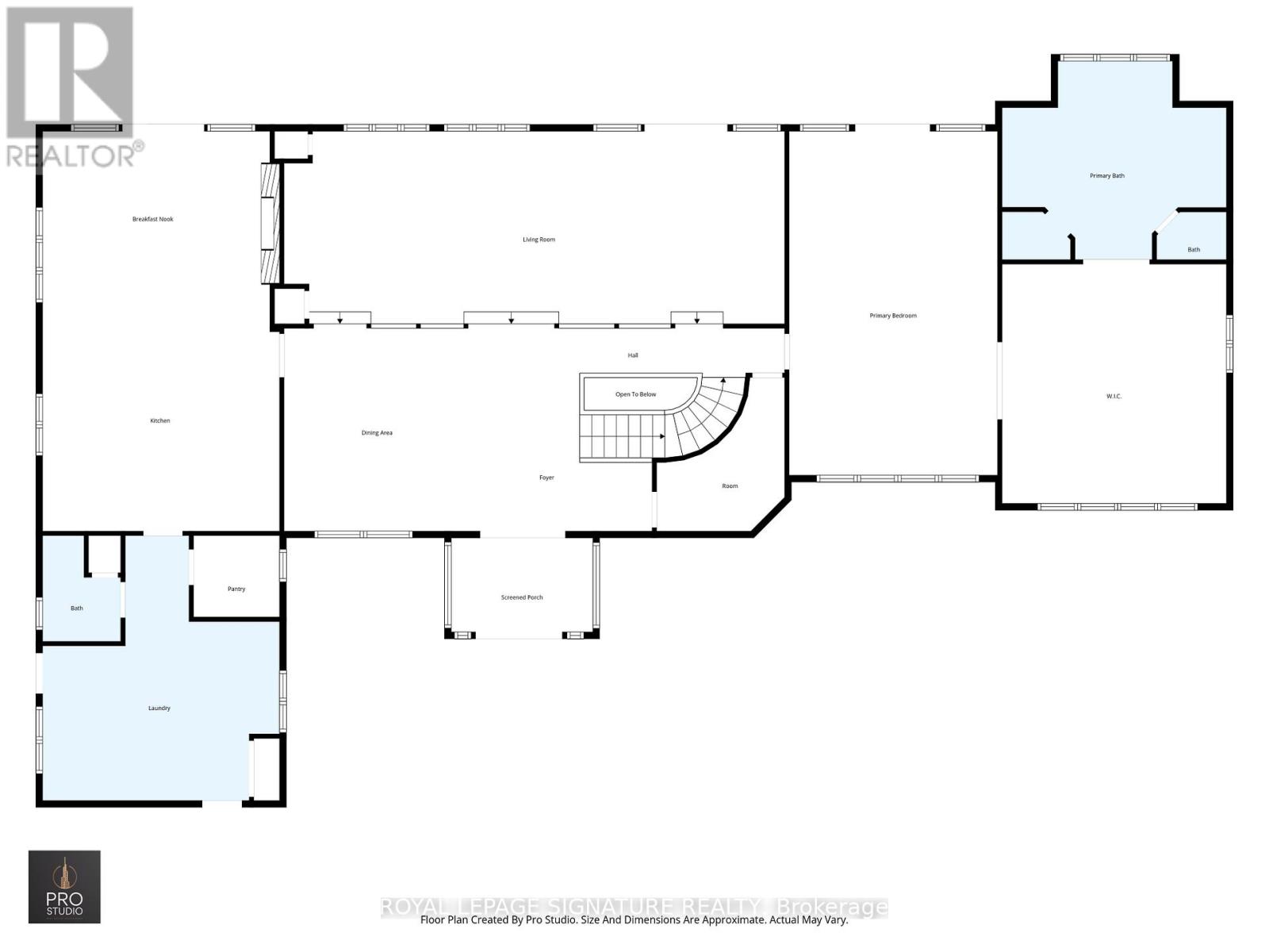
Set on nearly 2.5 acres of beautifully landscaped waterfront grounds, this fully renovated lakeside estate offers over 9,200 sq. ft. of luxurious living space. Thoughtfully designed for both entertaining and everyday living, the home features 6 bedrooms and 6 bathrooms, including a private guest, nanny, or in-law suite. The stunning 19' x 32' chef-inspired kitchen opens to expansive living and dining areas, all capturing breathtaking lake views. A resort-style indoor pool wing provides year-round enjoyment with a 16' x 32' concrete saltwater pool, Dectron Dry-O-Tron dehumidification system, cedar ceiling, textured concrete walls, custom lighting, hot tub, and sauna. Exceptional craftsmanship is evident throughout, with 18'-21' vaulted ceilings on the main level, 10'-11' ceilings on the lower walkout, custom plaster crown mouldings, architrave-trimmed millwork, a Mediterranean-style metal roof, and two waterproof decks overlooking the lake. The property offers a 3-car attached garage plus an oversized 2-car detached garage, ideal for vehicles, boats, or recreational equipment. Energy efficiency and reliability are delivered through two ground-source heat pumps with 14 drilled wells, a 35 kW whole-home standby generator, propane backup pool heater, multi-zone forced-air heating and cooling, and in-floor radiant heating. Enjoy four-season waterfront living with boating, fishing, waterskiing, snowmobiling, and nature trails at your doorstep. Ideally located minutes to Fergus, Elora, and Guelph, this is a rare offering combining refined luxury with serene lakeside living. See attached feature sheet for full details. (id:64974)
Quick Facts
- Property Type: House (Freehold)
- Bedrooms: 6 (3 above, 3 below)
- Bathrooms: 6
- Ownership: Freehold
- Attached: No
- Fireplaces: Yes
- Parking: 18 spaces (Garage, Other)
- Frontage: 220 ft (67.1 m)
Costs
- Annual Taxes: $12,822.00
Listing Provided by: ROYAL LEPAGE SIGNATURE REALTY
Board: Toronto Regional Real Estate Board
Data provided via CREA DDF®.
Detailed Features
Interior & Systems
- Heating: Heat Pump, Electric
- Cooling: Central air conditioning, Air exchanger
- Basement: Finished, Full, Separate entrance, Walk out, N/A, N/A
- Appliances: Washer, Refrigerator, Water softener, Central Vacuum, Dishwasher, Wine Fridge, Stove, Range, Oven, Dryer, Microwave, Cooktop, Freezer, Garage door opener remote(s), Water Heater - Tankless, Water Heater
- Electrical: Generator
Exterior & Construction
- Exterior: Brick
- Foundation: Poured Concrete
- Sewer: Septic System
Lot & Land
- Frontage: 220 ft (67.1 m)
- Features: In-Law Suite
- Pool: Indoor pool, Salt Water Pool
Community & Neighbourhood
- Neighbourhood: Belwood
Room Details (13 rooms)
Listing Information
Listing History
Buy/Sell/Terminated/Expired listing history for 58 AMALIA CRESCENT, Centre Wellington (Belwood), Ontario, N0B1J0
Location & Neighborhood
🚗 Travel times
Neighborhood Walkability
Mortgage & Cost Calculators
Nearby Homes (Within 2km)
Similar Homes
Similar Properties
No rental comparables found in this area.
Sold Comparables
Access to sold property data requires a registered and verified account with TRREB DDF integration.
Coming SoonRented Comparables
Access to rented property data requires a registered and verified account with TRREB DDF integration.
Coming Soon



















