5728 GILMORE ROAD, Clarington, Ontario, L0A1J0
MLS: E12956164 | House (Freehold)
$1,799,999


















































Property Description
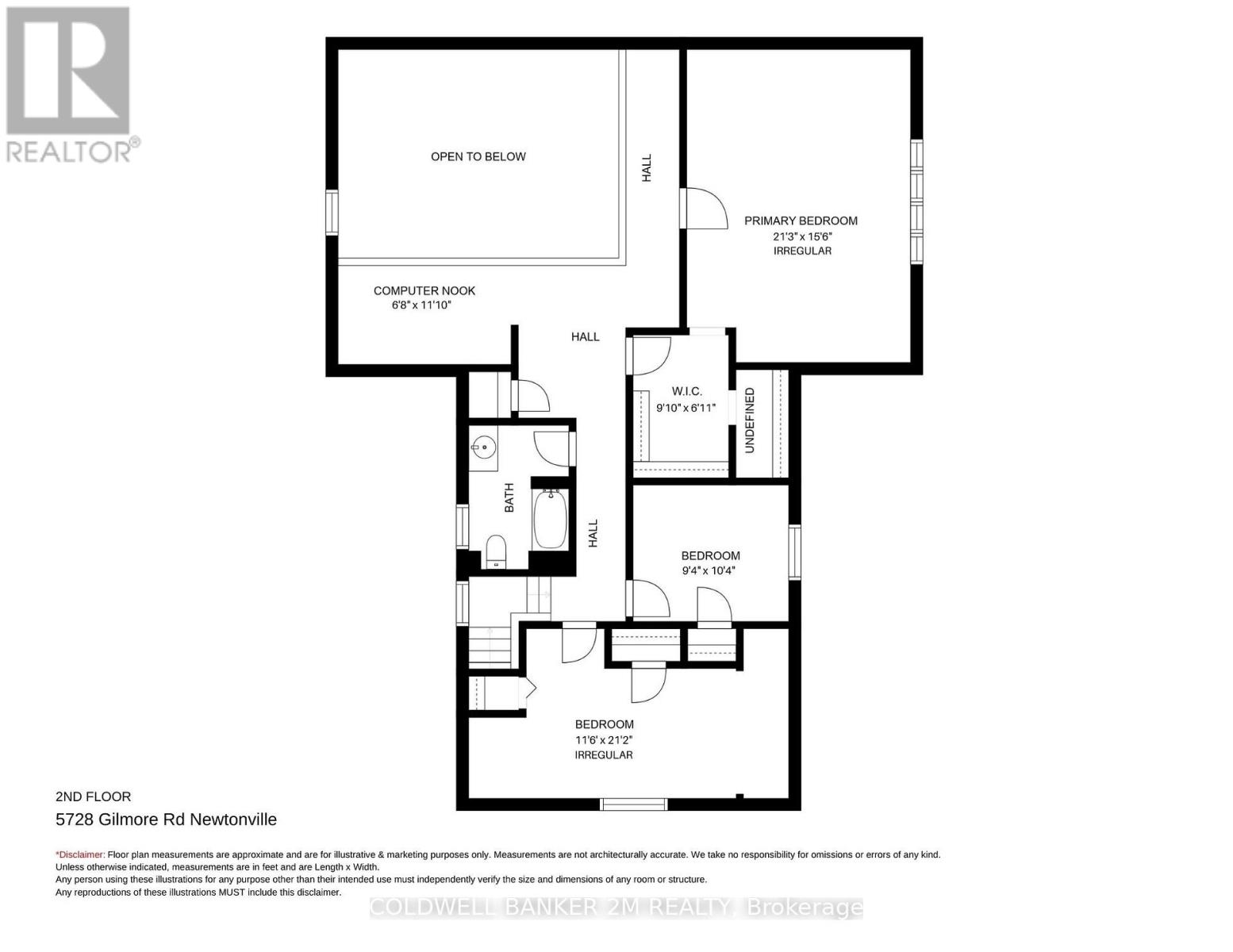
Exceptional equestrian estate sitting on over 61 acres of serene countryside, conveniently close to Hwy 401, 407, 115/35, shopping, schools, and amenities. Spread out in a spacious 2,924 sq ft home featuring 4 bedrooms and large principal rooms overlooking the farm. The sun-filled main floor boasts two walkouts, a large family kitchen with breakfast bar and pantry, bright breakfast area, cozy living room with fireplace, formal dining room, and huge family room with vaulted ceilings. Main floor laundry adds convenience. Upstairs, a grand hallway with computer nook overlooks the main floor. Retreat to the large primary bedroom with walk-in closet and two additional bedrooms. Finished lower level includes a 4th bedroom, rec room, utilities, and workshop. This turnkey property offers a well-established, high-level boarding operation with instant income and opportunity to expand revenue. The property grows its own hay and offers multiple pastures, large fenced paddocks, and three horse shelters (2015, 2017, 2022). Equestrian facilities include a 30 x 90 ft 5-stall barn with hay storage and wall-to-wall matting, 40 x 120 ft covered training arena, 100 x 200 ft outdoor riding arena, 60 ft round pen, 16 x 40 ft shop, and on-property trail. Recent updates include main floor windows and doors (2026), front and patio French doors (2023), kitchen update (2026) entryway and main floor bath flooring (2026), roof (house & garage) (2022), kitchen & appliances (2021), flooring (2022), bedroom window (2019), paint (2022), and lighting (2022). Exterior improvements include barn siding (2017), horse stalls (2017), and over 5,000 ft of wood fencing (2015-2018).Extras: See attached Features List and Floor Plan - plus so much more to see! (id:64974)
Quick Facts
- Property Type: House (Freehold)
- Bedrooms: 4 (3 above, 1 below)
- Bathrooms: 2
- Ownership: Freehold
- Attached: No
- Fireplaces: Yes
- Parking: 13.0 spaces (Detached Garage, Garage)
- Frontage: 62 ft (18.8 m)
Costs
- Annual Taxes: $4,531.40
Listing Provided by: COLDWELL BANKER 2M REALTY
Board: Central Lakes Association of REALTORS®
Data provided via CREA DDF®.
Detailed Features
Interior & Systems
- Heating: Forced air, Oil
- Cooling: Window air conditioner
- Basement: Partially finished, Separate entrance, N/A, N/A
- Appliances: Washer, Refrigerator, Dishwasher, Stove, Dryer, Water Treatment, Window Coverings, Water Heater
- Flooring: Hardwood
Exterior & Construction
- Exterior: Aluminum siding
- Foundation: Block, Concrete
- Sewer: Septic System
- Water: Dug Well
Lot & Land
- Frontage: 62 ft (18.8 m)
- Features: Open space, Level
Community & Neighbourhood
- Neighbourhood: Rural Clarington
Room Details (14 rooms)
Listing Information
Listing History
MLS listing activity for 5728 GILMORE ROAD, Clarington, Ontario, L0A1J0 — dates reflect when changes were recorded in the DDF
🚗 Travel times
Neighborhood Walkability
Mortgage & Cost Calculators
Similar Homes ?Similar Homes — Search CriteriaSearch Radius5 kmPrice Range±5%Match Home TypeYesMatch BedroomsYes

8 KING BOULEVARD, King (King City)
House$1,799,999
$9,107/yr taxListing Courtesy of REMAX YOUR COMMUNITY REALTY

8378 WELLINGTON ROAD 22, Centre Wellington
House$1,799,999
$7,950/yr taxListing Courtesy of Keller Williams Home Group Realty

388 OAKWOOD AVENUE, Toronto (Oakwood Village)
House$1,799,999
$7,073/yr taxListing Courtesy of HOMELIFE/MIRACLE REALTY LTD

262 OAKWOOD Crescent, Oakville
House$1,799,999
$7,904/yr taxListing Courtesy of Century 21 Miller Real Estate Ltd.

2178 HIGHWAY 6, Hamilton
House$1,799,999
$5,510/yr taxListing Courtesy of RE/MAX REALTY SERVICES INC.

262 OAKWOOD CRESCENT, Oakville (CO Central)
House$1,799,999
$7,904/yr taxListing Courtesy of CENTURY 21 MILLER REAL ESTATE LTD.

6092 CEDAR SPRINGS ROAD, Burlington
House$1,799,999
$7,161/yr taxListing Courtesy of EXP REALTY

6092 CEDAR SPRINGS Road, Burlington
House$1,799,999
$7,161/yr taxListing Courtesy of eXp Realty

303 SUNNYBRAE AVENUE, Innisfil (Stroud)
House$1,799,999
$9,458/yr taxListing Courtesy of RE/MAX REAL ESTATE CENTRE INC.

263 HART Avenue, Burlington
House$1,799,999
$6,436/yr taxListing Courtesy of Royal LePage Burloak Real Estate Services

263 HART AVENUE, Burlington (Roseland)
House$1,799,999
$6,436/yr taxListing Courtesy of ROYAL LEPAGE BURLOAK REAL ESTATE SERVICES

4231 DUNVEGAN ROAD, Burlington (Shoreacres)
House$1,799,999
$8,919/yr taxListing Courtesy of ROYAL LEPAGE ESTATE REALTY

50 LILLY VALLEY CRESCENT, King (King City)
House$1,799,999
$8,700/yr taxListing Courtesy of RE/MAX EXPERTS

21 AVEENA ROAD N, Brampton (Bram East)
House$1,799,999
Listing Courtesy of ROYAL LEPAGE FLOWER CITY REALTY

14 ALEXANDER HUNTER PLACE, Markham (Wismer)
House$1,799,999
$5,954/yr taxListing Courtesy of CENTURY 21 LEADING EDGE REALTY INC.
Similar Properties ?Active Comparables — Search CriteriaSearch Radius2 kmPrice Range±5%Match Home TypeYesMatch BedroomsYes
No active comparables found in this area.
No rental comparables found in this area.
Sold Comparables
Access to sold property data requires a registered and verified account with TRREB DDF integration.
Coming SoonRented Comparables
Access to rented property data requires a registered and verified account with TRREB DDF integration.
Coming SoonBook a Viewing
5728 GILMORE ROAD, Clarington, Ontario, L0A1J0
