5728 GILMORE ROAD, Clarington, Ontario, L0A1J0
MLS: E12956162 | Unknown
$1,799,999



















































Property Description
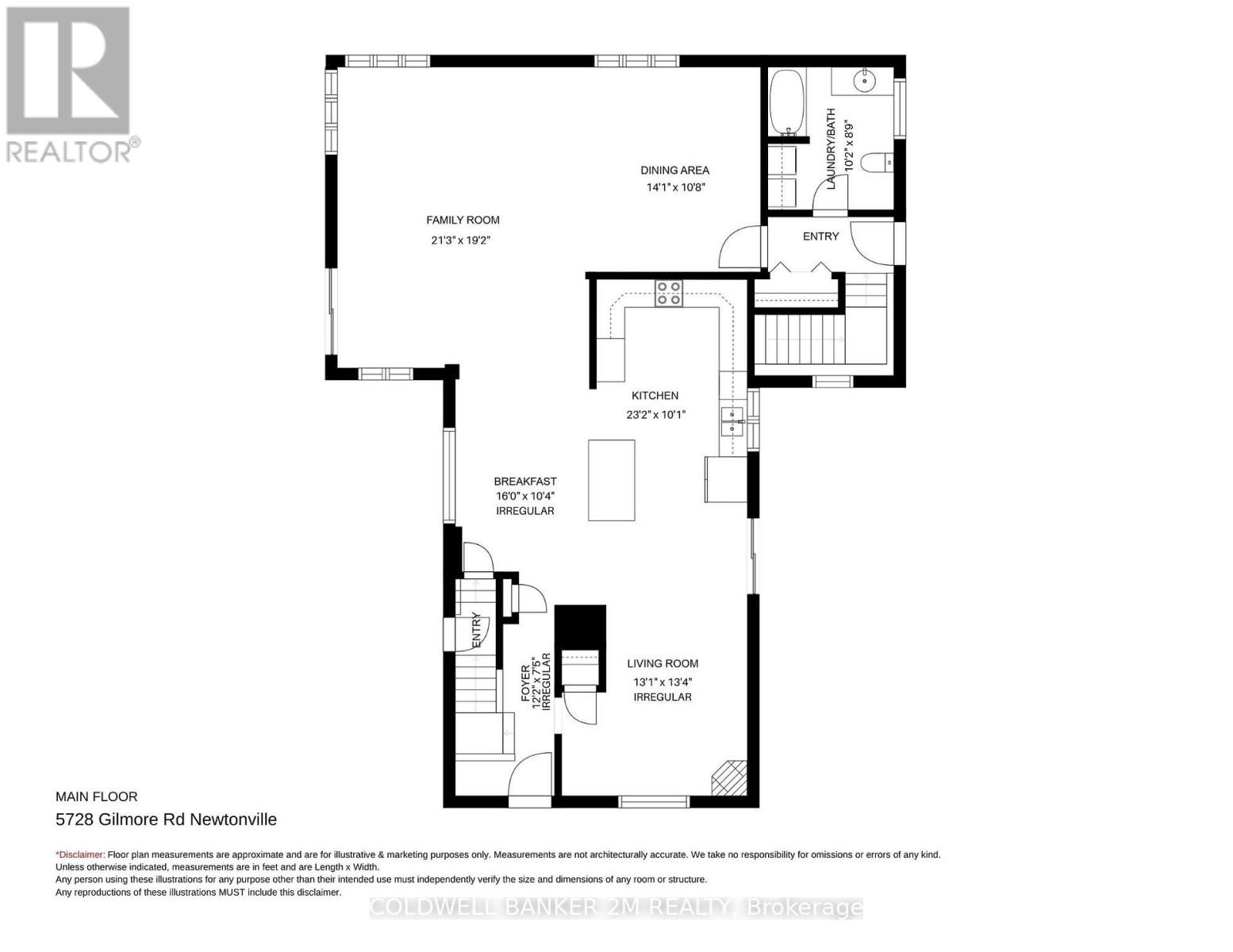
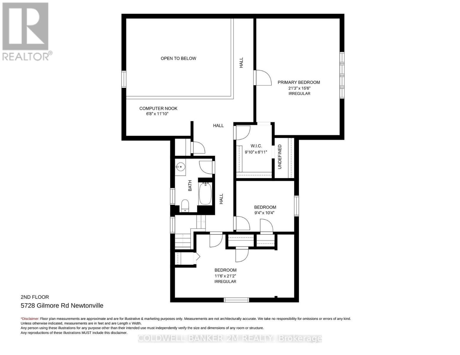
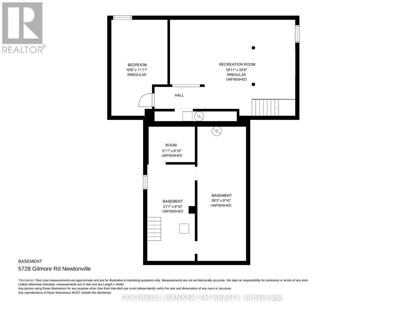
Exceptional turnkey equestrian estate offering a well-established, high-level boarding operation with instant income and opportunity to expand revenue. Over 61 acres of tranquil countryside, conveniently close to Hwy 401, 407, 115/35, shopping, schools, and amenities.The property grows its own hay and offers multiple pastures, large fenced paddocks, and three horse shelters (2015, 2017, 2022). Equestrian facilities include a 30 x 90 ft 5-stall barn with hay storage and wall-to-wall matting, 40 x 120 ft covered training arena, 100 x 200 ft outdoor riding arena, 60 ft round pen, 16 x 40 ft shop, and on-property trail. Spacious 2,924 sq ft home features 4 bedrooms, 2 bathrooms, and large principal rooms overlooking the farm. The sun-filled main floor boasts two walkouts, a large family kitchen with breakfast bar and pantry, bright breakfast area, cozy living room with fireplace, formal dining room, and huge family room with vaulted ceilings. Main floor laundry adds convenience. Upstairs, a grand hallway with computer nook overlooks the main floor. Retreat to the large primary bedroom with walk-in closet and two additional bedrooms. Finished lower level includes a 4th bedroom, rec room, utilities, and workshop. Recent updates include main floor windows and doors (2026), front and patio French doors (2023), kitchen update (2026) entryway and main floor bath flooring (2026), roof (house & garage) (2022), kitchen & appliances (2021), flooring (2022), bedroom window (2019), paint (2022), and lighting (2022). Exterior improvements include barn siding (2017), horse stalls (2017), and over 5,000 ft of wood fencing (2015-2018).Extras: See attached Features List and Floor Plan - plus so much more to see! (id:64974)
Quick Facts
- Property Type: Unknown
- Bedrooms: 4
- Bathrooms: None
- Living Area: 62 sq ft (5.8 m²)
- Parking: 10.0 spaces
- Lot Size: 61.5500 acres (24.91 ha)
- Frontage: 62 ft (18.8 m)
Costs
- Annual Taxes: $4,531.40
Listing Provided by: COLDWELL BANKER 2M REALTY
Board: Central Lakes Association of REALTORS®
Data provided via CREA DDF®.
Detailed Features
Interior & Systems
- Cooling: Fully air conditioned
- Appliances: Washer, Dishwasher, Dryer, Window Coverings
Exterior & Construction
- Sewer: Septic System
Lot & Land
- Lot Size: 61.5500 acres (24.91 ha)
- Frontage: 62 ft (18.8 m)
- Zoning: A1-EP
Community & Neighbourhood
- Neighbourhood: Rural Clarington
Listing Information
Listing History
MLS listing activity for 5728 GILMORE ROAD, Clarington, Ontario, L0A1J0 — dates reflect when changes were recorded in the DDF
🚗 Travel times
Neighborhood Walkability
Mortgage & Cost Calculators
Similar Homes ?Similar Homes — Search CriteriaSearch Radius5 kmPrice Range±5%Match Home TypeYesMatch BedroomsYes

725 Mersea Rd 6 East, Leamington
House$1,800,000
Listing Courtesy of REMAX PREFERRED REALTY LTD. - 588

655 TOWNLINE Road W, Cayuga
Agriculture$1,799,900
$3,276/yr taxListing Courtesy of RE/MAX Escarpment Realty Inc.

1353 CHARLOTTEVILLE ROAD 8, Simcoe
Agriculture$1,799,900
$3,607/yr taxListing Courtesy of RE/MAX Erie Shores Realty Inc. Brokerage

6128 HIGHWAY 3, Canfield
Agriculture$1,799,900
$4,036/yr taxListing Courtesy of Royal LePage State Realty Inc.

955 ST GUILLAUME ROAD, Russell
Unknown$1,799,000
$4,987/yr taxListing Courtesy of POWER MARKETING REAL ESTATE INC.

1631 RIVER Road, Cayuga
Agriculture$1,795,000
$3,754/yr taxListing Courtesy of RE/MAX Escarpment Realty Inc.

116826 GREY ROAD 3, Chatsworth
Unknown$1,795,000
$3,693/yr taxListing Courtesy of eXp Realty

1052 LONGWOODS ROAD, Southwest Middlesex
Unknown$1,790,000
$2,711/yr taxListing Courtesy of JUST FARMS REALTY

225 ETWELL ROAD, Huntsville (Stisted)
Agriculture$1,790,000
$3,490/yr taxListing Courtesy of CV Real Estate

PT LT 35 FRONT, Caledonia
Agriculture$1,840,000
$1,193/yr taxListing Courtesy of RE/MAX Escarpment Realty Inc.

PT LT 34 FRONT, Caledonia
Agriculture$1,840,000
$1,193/yr taxListing Courtesy of RE/MAX Escarpment Realty Inc.

3088 CONCESSION 7 ROAD, Clarington
Agriculture$1,849,900
$2,850/yr taxListing Courtesy of Royal LePage Our Neighbourhood Realty

890 WOODVILLE ROAD, Kawartha Lakes (Mariposa)
Agriculture$1,750,000
$6,529/yr taxListing Courtesy of ROYAL LEPAGE KAWARTHA LAKES REALTY INC.

21298 SPRINGFIELD ROAD, Southwest Middlesex
Agriculture$1,850,000
$16,236/yr taxListing Courtesy of THRIVE REALTY GROUP INC.

997 NIAGARA STONE ROAD, Niagara-on-the-Lake (Lakeshore)
Agriculture$1,749,900
$3,124/yr taxListing Courtesy of RE/MAX GARDEN CITY REALTY INC, BROKERAGE
Similar Properties ?Active Comparables — Search CriteriaSearch Radius2 kmPrice Range±5%Match Home TypeYesMatch BedroomsYes
No active comparables found in this area.
No rental comparables found in this area.
Sold Comparables
Access to sold property data requires a registered and verified account with TRREB DDF integration.
Coming SoonRented Comparables
Access to rented property data requires a registered and verified account with TRREB DDF integration.
Coming SoonBook a Viewing
5728 GILMORE ROAD, Clarington, Ontario, L0A1J0
