5687 FERRY STREET, Niagara Falls (Hospital), Ontario, L2G1S5
MLS: X12589834 | Vacant Land
$4,050,000




Property Description
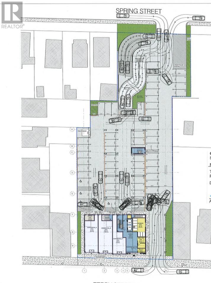
Client RemarksAttention Investors/Builders. Lot Is Located In Prime Location In Downtown Niagara Falls. Walking Distance To The Casinos, Restaurants All The Attractions In The Fallsview Tourist Area. Plans for 77 units Site plan approval pending the deposit. Priced at $59,000 per unit. (id:64974)
Quick Facts
- Property Type: Vacant Land
- Bedrooms: None
- Bathrooms: None
- Living Area: 1 sq ft (0.1 m²)
- Lot Size: 0.8700 acres (0.35 ha)
- Frontage: 140 ft (42.7 m)
Costs
- Annual Taxes: $16,350.64
Listing Provided by: ROYAL LEPAGE REAL ESTATE SERVICES PHINNEY REAL ESTATE
Board: Toronto Regional Real Estate Board
Data provided via CREA DDF®.
Detailed Features
Exterior & Construction
- Water: Municipal water
Lot & Land
- Lot Size: 0.8700 acres (0.35 ha)
- Frontage: 140 ft (42.7 m)
- Zoning: Gc P R2
Community & Neighbourhood
- Neighbourhood: 215 - Hospital
Listing Information
Listing History
Buy/Sell/Terminated/Expired listing history for 5687 FERRY STREET, Niagara Falls (Hospital), Ontario, L2G1S5
Location & Neighborhood
🚗 Travel times
Neighborhood Walkability
Mortgage & Cost Calculators
Nearby Homes (Within 2km)
Similar Homes
Similar Properties
No rental comparables found in this area.
Sold Comparables
Access to sold property data requires a registered and verified account with TRREB DDF integration.
Coming SoonRented Comparables
Access to rented property data requires a registered and verified account with TRREB DDF integration.
Coming Soon



























